
辉耀居家装饰永存“利人之心”,做一个有良知、有社会责任感的公司!
现代简约主义源于20世纪初期的西方现代主义,
具有造型简洁、功能性强、无过多装饰等特点,
推崇科学合理的构造工艺,
强调室内空间形态和物件的单一性、抽象性。

此次为大家带来的是125平-丽景嘉园的家装效果图,设计师通过简约流畅的线条,对比强烈的色彩,营造了简约实用,又富有朝气的家居环境。
▼▼▼
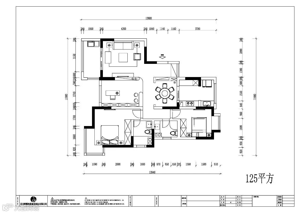
【户型面积】 125㎡
【户 型】 3室2厅1厨2卫2阳台
【风 格】 现代简约
【设 计 师】 曹军
【项目经理】 徐素庆
现代简约以强调功能为设计的中心和目的,不再以形式为设计的出发点,讲究设计的科学性,重视设计实施时的科学性与方便性。

平面布置图
现代简约在形式上提倡非装饰的简单几何造型,推广六面建筑和幕墙架构,提倡标准化原则、中性色彩计划与反装饰主义立场。室内常选用简洁的工业产品,家具和日用品多采用直线。

▲客厅
现代简约大量使用钢化玻璃、不锈钢等新型材料作为辅材,给人带来前卫、不受拘束的感觉。以黄、橙色等轻快明亮的色系为主,搭配一些绿色植物为衬托,使居室充满惬意、轻松气氛。

▲餐厅
对比是现代简约装修中惯用的方式,通过把两个明显对立的元素放在同一空间中,经过设计,使其既对立又和谐;既矛盾又统一,在强烈反差中获得鲜明对比,求得互补和满足的效果。

▲门厅
现代简约重视设计对象的费用和开支,把经济问题放到设计中加以考虑规划,从而达到实用、经济的目的。

如果对上文介绍的装修效果感兴趣的话,那就赶快来关注小辉家的微信号,我们会从专业的角度解答您的疑惑,满足您个性化的家装需求!
▼▼▼
长按、关注我们吧!

