

项目区位

项目位置概况
“财富中心二期”项目是继“财富中心”一期后的又一商业与高端住宅综合体项目。该项目位于眉山市主城区干道——东坡大道商业核心地段十字路口,紧邻眉山地标建筑远景楼及眉山CBD财富中心。周边聚集了众多大企业、银行、保险公司、高端小区及多家高端商务酒店和综合商场等,周边商圈成熟,配套完善,区域位置的优越性和独特性不言而喻!

项目详情概况
商业楼为三层独栋建筑,外立面采用LOW-E中空玻璃幕墙和灰色石材组成,具有高透、隔热、隔音、节能的特性,完全独立使用,独立管理,可有独立冠名权!
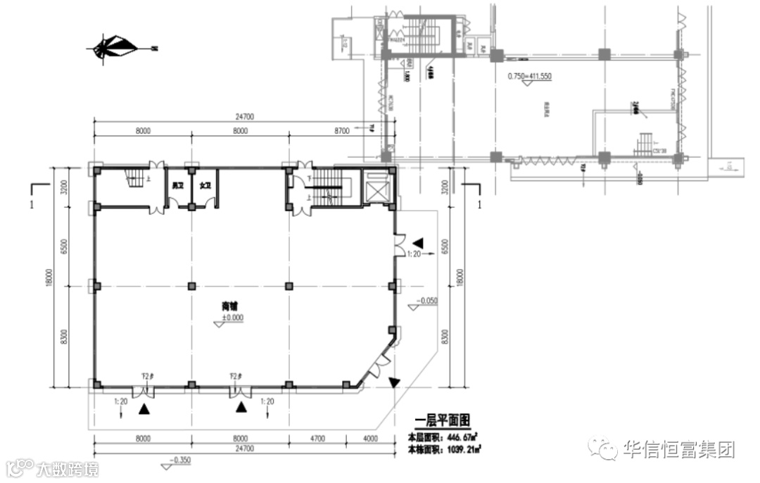
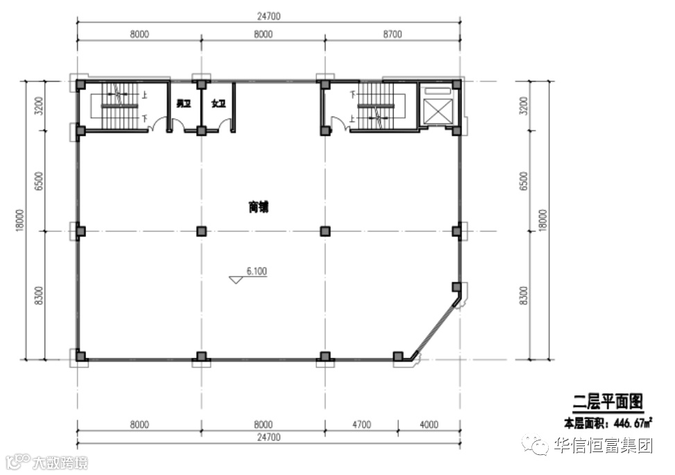
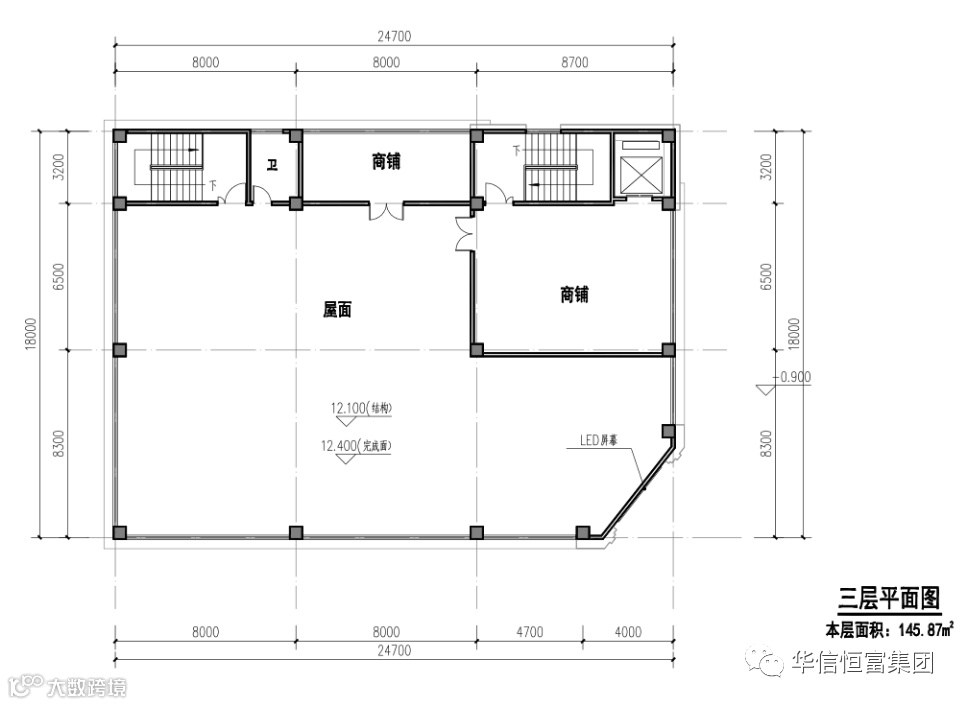
商业楼总面积1561㎡,其中一层层高为6.1米,面积为446㎡,可隔为两层使用;二层层高为6米,面积为446㎡,可隔为两层使用;三层层高为3.6米,面积为145㎡,可加建为整层使用。实际改造后商业楼为6层(地下一层、地上五层),实际商业楼使用面积为2754㎡,大楼配备独立地面、地下停车场,方便客户、员工停车。
商业楼可设置包括大厅、办公室、会议培训室、库房、员工食堂等,能满足多功能使用要求!专用电梯由地下室直达屋顶,方便户内改造!临东坡大道十字路口另配置约30㎡大LED超清户外广告牌,给您绝佳广告形象。
项目位于中心城区核心十字路口,从上到下独栋办公,独立管理!是提高您商务形象的最佳选择!
地下一层平面图

一层平面图

二层平面图

三层平面图



