时代潮前,居住潮流亦不断变迁。纵观全国,随着精英阶层对品质生活需求的不断提升,豪宅的定义也被一次次打破重构。如今,一场豪宅革命正掀起狂潮,大平层作为北上广深成一线城市里全新的居住形态,开始取代别墅,执掌城市豪宅的话语权。
不同于别墅阶梯居住性,大平层更多把别墅所有的功能区放于一个平面上,使感官和视野都更加开阔舒适,不仅更容易用大尺度打造豪宅奢华感,还免去了蚊虫动物的干扰,及上下楼的不便利性,更适合三代同堂居住。由于大平层在一定程度上具有“别墅式居住体验”,但却又优于别墅的人居体验,从而备受青睐。


隐庐观邸敏锐地扣住了这一时代脉搏,于眉山眼球位置——财富中心旁,推出24席建面约226平典藏版大平层,聚集全资源配套、人性化空间尺度、高定圈层于一身的优质基因,打造出眉山高阶人群备受瞩目与青睐的人居范本。其不以量产为出发点,只以城市优越的地段,以独一无二的选材、工艺,赋予产品卓然超群的尊贵基因,而难以复制的优越地段、景观、风格与品牌更是让产品拥有恒久的珍稀价值。

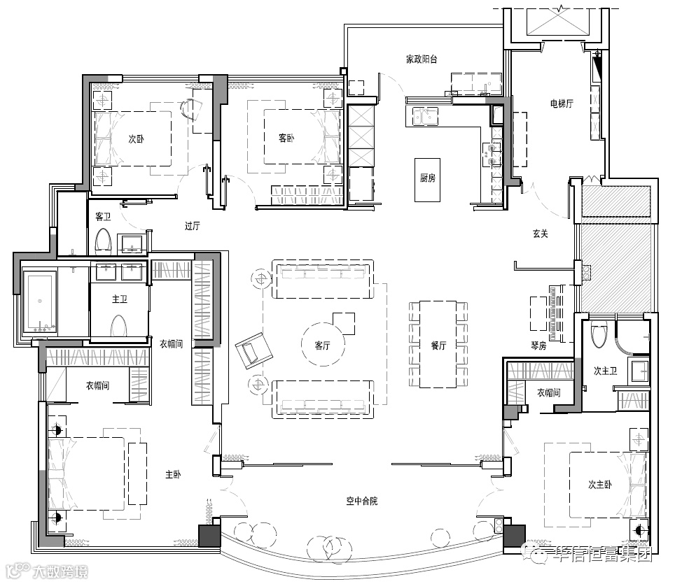
既然自带“豪宅”基因,隐庐观邸的产品打造,自是不凡。项目总占地10亩,仅修建24席,容积率仅1.0,如此低的容积率,不仅意味着对土地资源的占有,也意味着居住密度更低、居住舒适度更高。在产品设计上,考虑到高端改善业主对生活空间的尺度及私密度等需求,以动静分区多卧套房设计,让家庭成员间既能互动又可互不打扰;超出市场标准的3.55米震撼层高, 270°超开阔观景庭院,保障空间质感和通透性,约30平米空中庭院,50公分覆土花园,足不出户畅享自然绿氧,正对远景楼这一风水极佳的文昌塔,与湿地公园的绝佳黄金席位,观湖瞰江放眼千亩绿肺,盎然绿意拥簇眼前,如此黄金比例空间完美兑现大平层的舒奢属性。

在精装考量上,隐庐观邸实现了真正意义的精装,让业主免去装修监工与选材的烦恼,每一个细节都从人性化使用考究,从而做到面面俱到,让业主真正可以拎包入住,省时省心。同时在精装材料的采选上,隐庐观邸更是毫不吝啬,将品质体现到“骨子”里。项目外墙采用价格6倍于一般住宅涂料面砖的弧形铝单板和花岗石幕墙,效果高端立体,耐候性强不易褪色;外墙门窗也是隐庐观邸不得不提的一抹亮色,不同于市场其他项目所通用的约500元/平米,造价低廉的普通工程门窗,隐庐观邸采用了2000元/平米高端定制的罗兰西尼豪华系统门窗,中空惰气,隔热降噪,且水密性气密性俱佳,业主无需再二次改造,放眼整个眉山市场,如此大手笔配置,堪称独此一家;室内由历久弥新的进口天然大理石或岩板铺陈,欧缇莎无缝墙布装饰墙面,一间房只用完整的一张布,美观环保不易起翘破损;还搭配了进口阿尔贝娜乳胶漆、大艺树实木地板等。除此之外,还配备了一系列大牌电器,比如厨房全系电器品牌:西门子;卫浴德国一线进口品牌:汉斯格雅、唯宝;集全屋中央空调,地暖,新风于一体的“恒温 · 恒湿 · 恒氧 · 恒净 · 恒静”,五恒去霾空气净化系统:丹特卫顿……目之所及之处,皆是高配阵容,这种感觉一如你原本只要求一棵绿树,却突然得到了一整片森林般的惊喜。


而作为一家有私人管家式服务的高端豪宅,隐庐观邸的每层每户均独享私家电梯指纹、刷卡入户,电梯入户,每层每户独享10平米私家电梯厅,业主归家无需等待;外卖快递均由私人管家送至业主私家电梯厅,生活垃圾也由专属管家专人处理,私密之上更彰显安全感与尊崇感。社区园林景观更是特邀国内一流景观打造团队操刀设计,旨在为业主打造出于城市喧闹中唯一一片世外隐密的诗意园林级享受,真正诠释隐庐而居。


另有让人惊叹的一点,隐庐观邸的地下室为全精装交付,在地下室更做了多处造景,将整个产品的美感延伸到每一处细节,让业主在开车归家的那一刻感受到的再也不是冰冷与黑暗,而是舒适与仪式感,停车位数量更是开眉山先例,1:3的阔绰尺度,令人安心,同时贴心为每位业主配备了10—30平米不等的地下储藏室(酒窖),让业主储物无忧。

隐庐观邸整个产品都透露出一种精巧的奢华感,让人处处都能感受到建造者的用心与诚意,将人文关怀与居家实用都巧妙的融合在每一处细节中,例如产品的一楼,并没有将它像市场上其他产品一样,作为带花园赠送的户型来售卖,提高收益,而是将整个一层架空5.4米,前后连通中庭景观与屋后花园,打造了儿童游乐区、公共阅读区、公共健身区、咖啡会客区等共享空间,还在屋后花园为每一户业主精心预留了一块2平米的私家菜地,让全家一起感受播种与收获的快乐,全龄化有温度的圈层社交,打造出融洽的邻里关系,让豪宅回归生活本真;

△架空层——儿童游乐区

△架空层——阅读区
另外屋顶整体打造为仅供业主使用的私家会所,配备有将远景楼与湿地公园一览无遗的天际泳池、汗蒸房、露天烧烤区、茶艺室、酒水吧、宴会厅等(可容纳40人左右),让业主可以随时尽享与亲朋欢聚,伙伴畅聊的欢乐。

△专属业主的私家会所

△无边天际泳池
事实上,虽然整个眉山市场高端改善大行其道,但遍观区域产品,还是会发现有豪宅尺度和仪式感的户型,缺少对生活的思考;而充分注重功能空间的户型,又丧失了豪宅的尺度与仪式感。
正是因为以上种种,在住宅改善浪头四起的今天,隐庐观邸成为改善产品都必须仰望的“塔尖”,其所拥有的城芯占位、奢阔空间布局,不仅是一种奢享,更是一种专属。
话到此处,豪宅是否意味着高价?抑或高不可攀?NO!
隐庐观邸全豪装上阵,匹配国际品牌金鞍,价格却恰到好处,总价仅300万/套起,与菁英邻里高谈阔论,风云际会间共享成功之道。
当你繁华阅尽,在事业上纵横捭阖,在生活上也要追求一席高端居所,隐庐观邸江景大平层让你对“豪宅”不再望而却步,纵观整个眉山市场,隐庐观邸就像是一只孤傲的鹤,它用它的绝版黄金地段、绝佳观景视野、五星酒店标准中庭景观、全龄化公区活动空间配置、全中空玻璃与石材的现代外立面、尺度阔绰极度优化的套内布局、户户豪奢精装的大手笔,都在无形却掷地有声地告诉全眉山人,这是一场可遇而不可求的盛宴,是一个不可再复制的经典!24席绝版精致之美,只为懂得生活且有品位的人典藏!

VIP:38190 988
项目地址:眉山市东坡大道28号(财富中心旁)

