
【案例信息】
项目地址:深圳龙岗麟恒中心广场
面积:158㎡
项目户型:平层户型
设计风格:中式风格
设计方:戴为·家

▲原始户型图

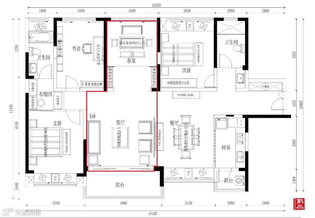
▲改造后 平面布置图
无论选择哪两间,都会在一定程度上影响空间整体效果。我们决定将原本正对着客厅的次卧,改造成一间茶室;而较为远离家庭活动中心的房间改造成书房。
之所以选择这一间改造成茶室,是因为客厅和茶室可以形成空间的联动和交流。
这样,两个空间不仅有了联系,活动的休闲区域范围增大,也让空间视野拓宽了起来,让空间在原来的基础上变得更加通透、宽敞、明亮。贯通后的客厅茶室,让两个空间不仅形成整体联动,融入的自然光线也更加充沛,气流也更为通畅。

本次案例中,我们主要运用白色来进行搭配、布置一个家。纯净的白色可以营造舒适、洁净的空间氛围。


梳化上放置着清新色调的抱枕,让空间的色彩丰富起来,增添一股清爽之气。
简洁的吊顶不做过多的装饰元素,在白色背景下,用最朴素的黑色线条框架,选择的吊灯是精致的,烘托一整个空间的中式氛围。


餐厅是温暖的,是家人围坐分享美食的地方,精美好看的餐台,可增添用餐食欲,令人感到愉悦。

隔断下的君子莲花餐边柜,上面放置着精美的工艺摆件,立于屏风之下,也不乏为一处好看的景色。

另一面墙黑色线条装饰下有两盏壁灯,刚好与吊灯的造型相互呼应。
百福临门玻璃柜的收纳功能不错,可以陈设很多家中美酒。重要的是,玻璃柜是古典地设计,原来,古典家具也有时尚韵味。


书房需要一个宁静的氛围,这里所用到的家具是蓝山系列的写字台和书柜,家具设计简约,铜元素作为装饰。

我们特地归置出这间书房,它是浅色的墙壁,挂画的图案颜色与圈椅靠背的颜色一致的。
为了统一整体空间效果用黑色线条做简单装饰,墙面是让人感觉舒缓的设计,让书房空间沉静了下来,便于屋主办公、学习。

茶室也是特地改造出来的,选择的家具是简洁明了的乐水禅台。禅台是光身设计,无装饰,在茶室这样的空间显得刚好合适。

我们将先前的墙体舍掉,把入口处进行布置,放置丹青条案和工艺品,营造了一处景致。这里直接连接客厅和茶室,是他们之间的桥梁。
屋主可以从客厅梳化起身直接走进茶室喝茶,两者之间是相连的,如果有朋友上门做客,也不会显得拥挤。
茶室和客厅同为休闲之地,在这次案例中,两者做到了一个很好的结合。
茶室空间的面积不大,但设计上仍然需要花心思。
中式斜顶多了一些线条的装饰,是用榫卯连接成类似于房梁结构,相对来说,中式气息也浓郁很多。
茶室主打装饰还是黑色线条,品茶之地不需要太过复杂,这股“韵味”出来就好。墙体不能过于简单,一幅可以诠释意境的挂画,让自己心仪。
点击:进入戴为微店
点击:识别戴为视频号二维码

以上部分图片资料来源互联网,若有侵权行为请及时告知公众号,我们将尊重版权所属,配合删除相关内容。
欢迎转载,请注明原作者,如果您喜欢请记得关注我!
经典,是对经典的传承和超越;
传承中式艺术,引领时尚尊贵,领略现代气息;
戴为红木,弘扬国粹,美化家园;
戴为尤品,遇见东方,遇见尤品。
全国服务热线:4008-199-660/4008-893-886
微信号:戴为集团
新浪微博:http://weibo.com/hongkaitaiwai
官方网站:www.taiwai.net
戴为生活馆地址:深圳市龙华区福城街道福民社区人民路233号楼房15101



