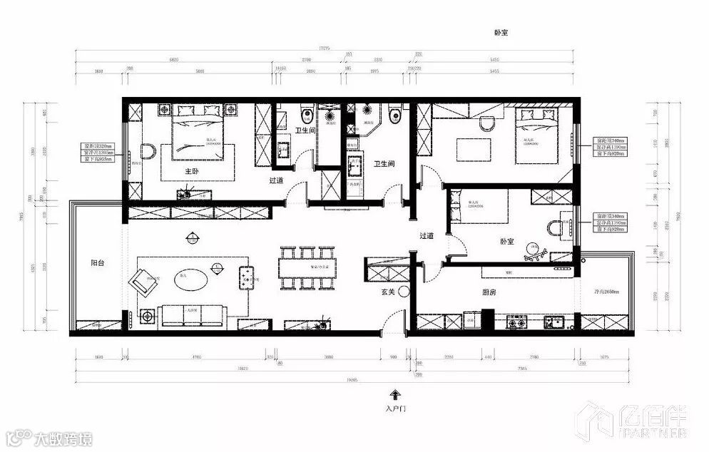
▲ 平面布置图
▲ 建筑面积130平,总造价35万,玄关木作嵌入式鞋柜,搭配穿衣镜与换鞋凳,满足入户机能
▲ 开门见山式的餐厅布局,在除去用餐时间之外,还是很好的工作台
▲ 复古绿色桌布,搭配高低不同的温莎椅成为了浓重色彩中的一缕清新
▲ 蓝绿色圆形小挂钟跟墨绿色的背景墙形成绝佳视觉体验,木色餐边柜化解拥堵感,厚重与轻盈间,穿梭自如
▲ 餐厅望向客厅
▲ 客厅地面通铺木质地板,极简顶面无过多修饰,点缀吊灯与明装射灯
▲ 一整面墨绿色墙是整个房子的点睛之笔也奠定整体风格的基调,让人耳目一新
▲ 绿色墙面搭配暖棕色主沙发,背景主画是女业主亲自画的,主题和颜色与整体风格很搭
▲ 定制款电视柜,胡桃木的柜体与水泥墙面很般配,且具强大的储物功能
▲ 客厅与阳台的地面采用不同材质划分场域,设计置顶柜体,增加储物空间
▲ 按户型狭长特点,设计双一型厨房,一边是料理和烹饪区,另一边放置厨房用品
▲ 客卫,灰色地砖搭配浅色墙砖,架空台盆柜延伸地面空间,木色柜门与绿色浴帘呼应
▲ 客卧,以清澈的月白蓝为基调,墙体设计突出的台面,搭配白色长条凳,充当传统的墙头柜,还可以摆放装饰画
▲ 床头的装饰画是女业主自己画的,圆形储物柜搭配绿植、金属吊灯,打造高颜值艺术感次卧
▲ 主卧整体以藕粉色为基调,运用莫兰迪色系,营造舒缓自然的暖调氛围
▲ 床尾,一组多斗柜与木色框架,绿植与水泥花盆大概是最文艺的组合,呈现粗犷又安静的雅致
▲ 主卫,墙面通铺卡其色瓷砖,白色卫浴家具搭配黑色五金,简约干净
亿佰伴家装集团 🏡 实用装修指南



















