
本方案设计公司:庆峰装饰
本方案设计师:赵斌
电话:1863507066
设计类型:整体家装+欧派定制

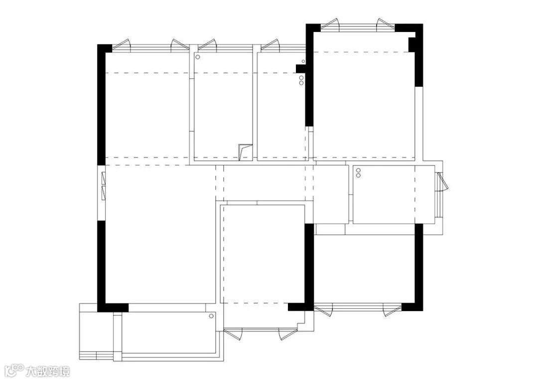
本案原始结构为三房两厅两卫,目前只有夫妻俩居住,父母偶尔来小住,两三年之内不会考虑小孩,偶尔会在家办公,喜欢阅读的氛围。根据以上要求,设计师对空间进行如下改造:














联系电话 : 孟俊文 18635070035
地址:朝阳西街218号自来水公司旁边(阳光100小区对面)
推荐阅读
不做隔断、不做玄关,我家多挤出一间房和花园,没有人相信这才130平

山西庆峰公司官微
本方案设计公司:庆峰装饰
本方案设计师:赵斌
电话:1863507066
设计类型:整体家装+欧派定制

本案原始结构为三房两厅两卫,目前只有夫妻俩居住,父母偶尔来小住,两三年之内不会考虑小孩,偶尔会在家办公,喜欢阅读的氛围。根据以上要求,设计师对空间进行如下改造:














联系电话 : 孟俊文 18635070035
地址:朝阳西街218号自来水公司旁边(阳光100小区对面)
推荐阅读
不做隔断、不做玄关,我家多挤出一间房和花园,没有人相信这才130平
