

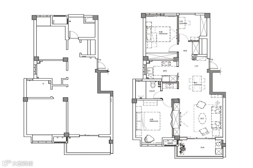
平 面 图

女主是一位追求自由的独立女性,热爱并享受生活,向往北欧设计对小众的贴心关怀。在整个接触过程中,女主独立、自信的形象让人印象深刻,这种从内在流露出来的气质经由设计师捕捉,交织在空间中,让每一个细节都精准传达屋主理想的生活状态。
门 厅

浅系藕粉色鞋柜精巧,线条纤细却有力,足够安放进出门的鞋履;右侧柜体内部特别设计了衣架,让“隔夜衣”有了很好的去处。新式大理石面板的时钟极具创意,配上设计师灵感乍现DIY的装饰画,清新淡雅,是初遇的时刻。
餐 厅

餐厅,少见的散逸着浪漫自由的气息。门厅面积不够,设计师大胆地把全身镜融入移动轨道安置在餐厅墙面上,可根据实际生活中的使用需要随意移动,强电箱刚好被完美遮挡。

轨道在保证安全和质量的前提下,特别定制了细线条以求统一设计风格。轨道一侧DIY了三个挂衣钩,挂上衣物和包包又是一番风景。

镜面的反射,借用光学原理让处于中部的餐厅亮堂起来,让视线所及之处更通透,心情也随之变得开阔明朗起来。一盏暖橘色的吊灯以最明媚欢快的光辉,点亮一家人美好的餐桌时光。
客 厅

全屋色系采用浅灰色,用特有的明度和柔光缓解疲惫。优雅是成熟女性追求的方向,用浅灰色的温柔缱绻包容年少的率真,既要成长也要守住初心。

米色短绒几何图案地毯清爽整洁,且不易藏污垢和灰尘。皮质坐凳、黑白撞色金属框茶几、青葱的绿植、抽象的装饰画,每一个细节都饱含对生活的热情和对艺术的欣赏。


北欧风中最不容易出错的当然是灰色沙发!亚麻材质透气性、舒适度都非常可靠,价格也适中,是年轻人装饰家居环境的一个不错选择!


追求高品质的生活却被空间束缚住手脚?设计,让我们可以在有限的空间内做出无限的遐想。在整体温柔优雅的气质中张扬着年轻女性的青春活力,自成一派又相互交融,更切合女主追求的自由生活。

磨砂玻璃移门的设计将室内自然采光做到极致,同时保证用户隐私,更添朦胧意境之美。用小小的细节给平凡的生活增添灵动之美,北岩,始终坚持走在这条路上。

电视背景墙延续简约的风格设计,内嵌式蓝色储物柜特意设计成对称样式,达到平衡整个区域重心的目的。纯色以其特有的明亮和澄净,给人一目了然的舒心。

女主热爱旅行,玩转全球的她当然少不了买买买。半开放的层板和储物柜,让旅行过程中淘到的宝物们有了妥帖的安排。

浅灰色调柔和淡雅,和顶端的白色及天花板在光影的作用下让人产生一种空间错觉,放大、塑造立体空间,让层高不再是难题!

踢脚线?当然有,人家只是藏起来啦!设计师特意设计了隐形踢脚线和隐形门套的细节,源于设计师对单身女性私密生活的细致考虑,进而发展成为对空间视觉的追求,让大美者隐于无形。

暖色的灯带带来明与暗、光与影的效果,在视觉上使得整个空间的立体感爆棚,拉高层高,放大空间。暖色光给室内空间披上了一件柔和的外衣,给回家的人宽广温暖的怀抱。
主 卧

卧室,还是以舒适为原则。


床头做了特别的硬包处理,绒布材质更易于日常打理,而且价格实惠。


优雅的蓝色散发着恬静的气息,将身心投入沙发的柔软怀抱,清风落在窗前,愈静心愈净心。


无处不在的色调呼应,极其纯净的色彩组合,为这个私人空间注入了契合身心的温柔、安心,造就静止的温情时光。
老 人 房

每一位女性对于梳妆台都有一种执念,爱美是天性。在灵巧的梳妆台前,女儿手执木梳,理顺母亲渐渐泛白的青丝,不用过多的言语把感恩寄托在温情的一刻。

特别设计了一整面的衣柜,有足够的空间来收纳父母的恋旧和回忆,舍不得扔的纪念和时光。

贴心选购的原木、纱幔、刺绣、绿植、雪兔,每一处原生自然的元素都是饱含着女儿对父母的温暖关爱,希望长辈永远保持健康,保持活力和一颗年轻的心。
书 房

无论是自己看书办公,还是未来教导孩子一笔一画的练习写字,书房作为一个家庭成长的重要之地,当然要更加用心。

在蓝紫和橘黄的冷暖色碰撞下,是精致与活力的并存,就连书桌上的装饰画也在悄悄倾诉着这两种颜色的细节。
厨 房

认真生活的人,对美食绝不辜负!设计师特别设计了U形厨房,为美食爱好者准备了充足的空间,尽力为客户呈现理想的效果。
干 区

隐藏镜子的处理为每一位爱美的女性贴心地增加了存放洁面和护肤品的空间。舍去过多的装饰,只延续主调色彩,让整体空间舒适整洁、纤尘不染。将颜值、功能性与创造性三者结合,少即是多。
阳 台

阳台,更注重实用性。经过设计师特别设计铺贴的六角地砖,把思绪带回记忆中万花筒的画面,是童年的回忆散发出来的光芒,亦是随心而来的洒脱。


