
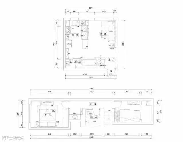
这是一套面积为90平米的简约休闲复式案例,虽然两层的面积仅90平米,但功能规划合理。半包装修花了8万,加上家具家电,总造价21万。

一点没有局促感,一楼餐厅与厨房开放式的设计,宽敞透亮,还有楼梯、过道的空间都得到的合理的利用,储物空间充足,小复式也可以住得很舒适惬意。
| 玄关 |

玄关处以马赛克彩绘玻璃作为隔断,色彩绚丽,又增加的空间采光与通透性。

一面木质格栅屏风,化解入户直面客厅和窗户的问题,保护了隐私,也解决了风水问题。
| 客厅 |

客厅与厨房开放式的设计,整体简约敞亮。通铺木地板,搭配清新朴素的家具,与窗外的景致一样宜人。

沙发背景墙错落的文化石装饰,搭配简约的木质隔板,摆放上装饰画,与一旁的工业风落地灯相佐,个性文艺感倍浓。

蓝色双人沙发搭配绿色单人沙发,清新朴实。

白色北欧风茶几组,错落相依,轻便实用。

木作半高隔断柜,兼具电视背景与橱柜机能,左侧延伸小吧台作为简餐区,暖木色和亮黄吧台椅提亮空间色彩。

木作黑色隔断框架,分隔客厅与开放式厨房场域,并创造一种框景效果。

吧台两侧的餐椅似有镜相的效果。
| 厨房 |

开放式的厨房设计,U型橱柜,实现在储物功能的最大化。

从厨房空间看向走廊。
| 客卫 |

网红款谷仓门作为客卫门,入门处的墙面增添储物空间,或开放或封闭的柜子,灵活以层次感。
| 楼梯 |

设计师利用楼梯下方的空间,打造了一组嵌入式书柜,放孩子看的绘本,高度刚好合适!

入户的七彩马赛克与楼梯的色彩形成鲜明的对比,楼梯的灯光也是别具艺术感的。

黑色楼梯步搭配黑色扶手,装几盏壁灯形成夜灯效果,光与影的结合,安全又美观。
| 衣帽间 |

二楼长条形户型,长长的走廊延伸至独立衣帽间,置顶储物柜有着超强的收纳功能。
| 主卧 |

主卧以素色背景搭配木作家具,木作床头柜与床一体设计,整体简约大方,温馨宁静宜于营造舒适的睡眠环境。

床头两侧的暖光吊灯,可做阅读台灯之用。

由于过道中已有独立的衣帽间,主卧床侧没有打造传统的衣柜,做了开放式的收纳空间,收纳功能不亚于衣帽间。

床尾的角落增设了梳妆台,满足女主人的梳妆需求,简洁轻便不占地方,盖上盖子还可做书桌使用。
| 主卫 |

主卫花砖地面搭配北欧风小白砖,清新文艺。以浴帘进行干湿分区,入墙式马桶,简约省空间。
庆峰“整装”新时代
给你一个完美的家
1对1设计服务,免费量房,
18项全包服务,从毛坯到精装,
10大品牌建材,工厂直供,
实景体验,看到即得到,
详情请到店咨询。


