

▲ 项目面积260平,造价200万,这是一套老房改造的项目,将老房重新定义,赋予新的生命,从原来的棕色系改为莫兰迪色系,更加轻快明亮,进门左手边做小件收纳区,右手边利用楼梯下方空间打造鞋柜

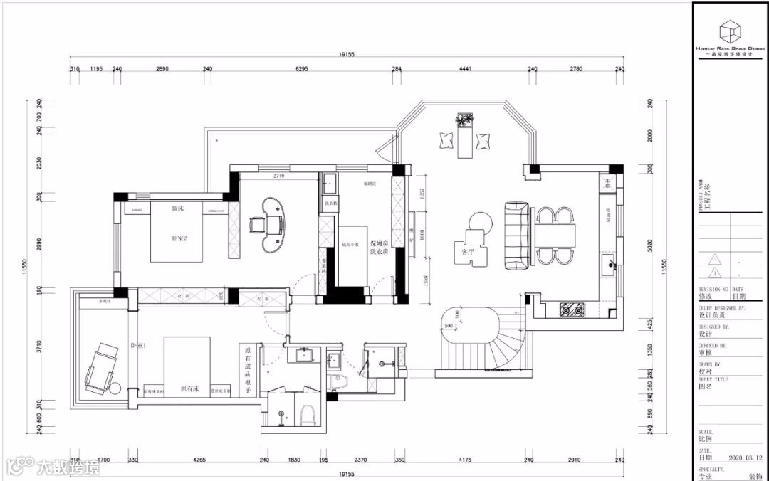
▲ 一层平面布置图

▲ 客厅以奶油色为主,墙顶面加入雕花石膏线条勾勒,将空间精致度提升一个档次

▲ 简约的家具布置出自然舒适的氛围,经久耐看,简单且温柔

▲ 客厅与餐厨之间通过弧形垭口过渡,奠定空间优雅格调

▲ 新建一堵矮墙作隔断,同时兼具小吧台功能,选用木质餐桌和藤编餐椅,自带中古气息

▲ 开放式厨房,浅色系的橱柜与墙砖结合,好看又亮堂

▲ 黄铜水龙头搭配陶瓷水槽,成为厨房最独特的装饰

▲ 进入次卧先来到书房

▲ 睡眠区,低饱和度空间加入深色家具,沉稳不失雅致,床尾是整排顶天立地大衣柜

▲ 主卧,把原来家里喜爱的家具保留了下来,天然的旧物感增加了岁月的痕迹,让家变得更温馨

▲ 靠窗打造休憩一角

▲ 构造优美的弧形楼梯是家中的一道别开生面的风景线

▲ 垂落的吊灯组增添层次和艺术感

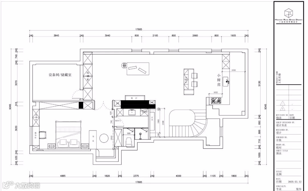
▲ 阁楼平面布置图

▲ 布置成品边柜和装饰画丰富过道

▲ 阁楼新增吧台休闲区,角落摆放复古小冰箱,既实用又能把它当作一件装饰品

▲ 往里走是小厨房,解决阁楼喝水泡茶的需求

▲ 利用过道打造起居室,壁炉两侧墙面内凹增设隔板,用于摆件展示与书籍收纳

▲ 一方小小的阅读空间

▲ 卧室,弧形门洞+双开门设计,仪式感满满

▲ 卧室做了充足的收纳区,床头背景护墙与收纳柜和谐统一,自带高级感

▲ 沿窗下方打造梳妆台,左侧是开放格,右侧是抽屉柜

▲ 摇臂灯可以根据需求调节照明位置,灵活实用
庆峰“整装”新时代
给你一个完美的家
1对1设计服务,免费量房,
18项全包服务,从毛坯到精装,
10大品牌建材,工厂直供,
实景体验,看到即得到,
详情请到店咨询。


