
客厅
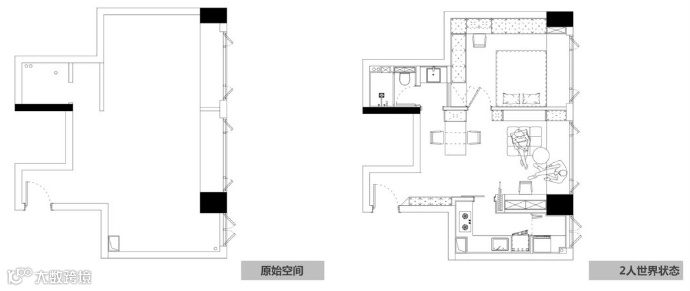
公共空间,同时满足了客厅、餐厅、书房的多重需求,采用定制活动家具来完成空间布局,以适合空间的“小”尺寸需求,打造灵活、轻便、可移动的空间。飘窗设计给予了更时尚的视觉感,而灵动的百叶帘,让空间可吸纳足够的自然光。
小户型装修选择折叠式家具,简直再合适不过了,不仅实用还节省空间。比如图中的餐桌,展开便可以满足日常用餐需求,收拢就是储物柜模样,一点也不影响空间美感。
进门后为了保有开阔空间感,与横梁齐平打造顶天立地的鞋柜,充足的收纳空间,可以满足屋主一年四季的储鞋量。鞋柜无明装门把手设计,减少了视觉突兀感,更显平滑美观。
鞋柜延伸部分,利用空间结构,打造了简易书房,日常居家办公还是非常不错的。整体采用温润的木质建材打造,在灵动百叶窗映衬下,更加自然舒适。书桌悬挂式设计,让日常清洁也更简单。
这套小户型装修最大的亮点,莫过于空间重叠利用,可变性带来了最大的包容度。客厅除了满足日常会客、居家办公外,还多了一个客房的功能,将空间利用最大化。墙壁折叠床设计非常的巧妙,开合之间满足了不同的使用场景。
展开就是卧室、合并就是客厅、书房。
为了保证空间私密性,加入了一道窗帘隔断设计,需要的时候展开,不需要的时候收合在空间缝隙中,一点不影响美观。
厨房
小户型厨房,不比大户型那么开阔大气,装修尽可能考虑到备餐合理性。L型的厨房设计,让洗、切、炒动线更流畅,整体便利且安全。木质橱柜搭配白色石英石台面,加上橱柜吊柜无门把手设计,整体视感更加自然整洁。
卫生间
在印象中,大部分小户型卫生间都采用一体布局,不仅空间拥挤,日常生活也多有不便。而分离式卫生间设计,却很好地解决了卫生间一体布局的不足。盥洗台放置在过道,储物柜和镜柜结合,让收纳变得更简单。
盥洗台和卫浴分离后,空间稍显宽松,布置起来也相对容易很多。壁挂式马桶小空间也是比较推荐的,实用节省空间。墙排上方做一组储物柜,作为卫浴收纳的补充。淋浴区以灰色瓷砖定调,为了减少突兀感,除了花洒外,收纳以壁龛取代。
卧室
卧室以灰白木色定调,营造自然舒适且静谧的空间氛围。
功能上,L型大面积储物柜设计,为主卧提供了足够多的储物空间,并且储物柜内部也都进行了合理的划分,以满足屋主对不同物品的收纳。
储物柜延续了无门把手设计,平滑的表面更适应卧室定调,整洁舒适不突兀。
一面纯白柜门,一面纯木色柜门,现代元素与自然元素相结合,让空间更轻松随性。
卧室靠近盥洗区,为了空间采光及通透,墙面切割一道1.2米高的窗口,利用长虹磨砂玻璃和百叶帘隔断,灵活调节光线,又增加空间私密性。
给你一个完美的家
1对1设计服务,免费量房,
18项全包服务,从毛坯到精装,
10大品牌建材,工厂直供,
实景体验,看到即得到,
详情请到店咨询。

