每天被写字楼的玻璃幕墙晃眼,被早晚高峰的喇叭声追着跑,谁不想推开家门,就一头扎进木头的清香里?
今天跟大家分享的由设计公司@成都璞珥空间设计 改造的一套自然风原木住宅,这个家像从城市褶皱里抠出来的一块留白,日式现代简约的氛围,原木家具带着温润的纹路,没什么花哨装饰,却处处透着舒服。
不如我们一起感受把自然揉进了日子里的家吧~
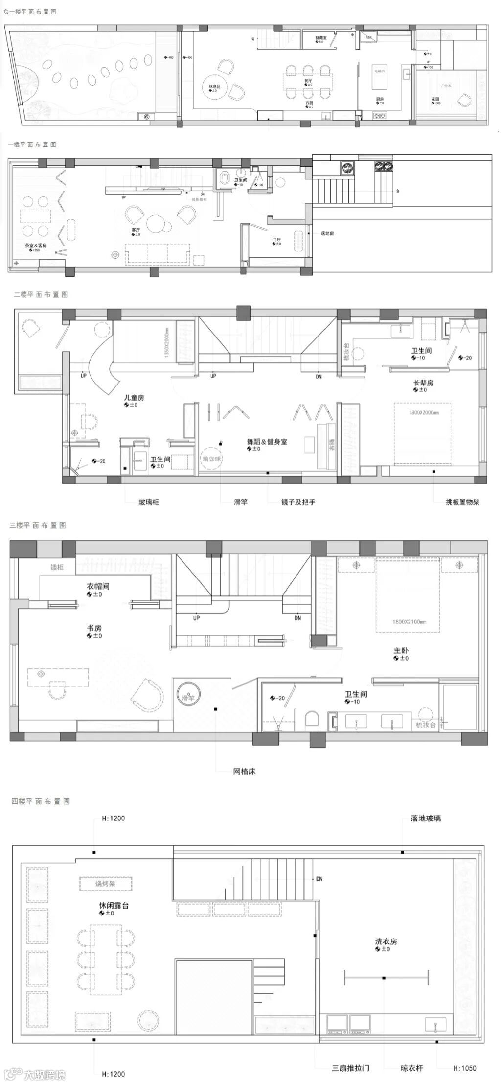
面积 350㎡ 户型 别墅
坐标 成都 设计 成都璞珥空间设计
踏入玄关,便能感知日式现代简约自然风的独特魅力。可开合的互动空间,能够带动空间产生联系和功能上的联动。关上门围合成独立的静谧空间,打开便与客厅合为一体。
透过木格栅,隐约可见客厅的皮沙发与绿植,空间似隔非隔,营造出含蓄的层次感。脚下的木质地板温润舒适,无声诉说着自然的低语,让人一进门,就仿佛卸下了满身疲惫。
原木屏风带着自然纹理立在中央,圆形窗洞像个小画框,框住客厅一角的温馨。浅白石面长凳简洁利落,搭配古朴陶罐,添了几分拙趣。
暖光漫进来,远处沙发、绿植朦胧成画,空间在隔与透间,把日式自然风的含蓄与松弛都稳稳接住。
推开木格栅,庭院的绿意直接漫进客厅。纸灯笼垂下暖光,把原木推拉门的纹理衬得更温柔。藤椅、棉麻沙发裹着浅棕调,草编地毯踩上去带着沙沙的呼吸感。
最绝是透过木格,庭院的石径、绿植成了天然挂画,连风穿过的声音都变得清晰。空间里没有多余装饰,却靠木头、藤麻的质朴,把城市喧嚣隔绝在外。
浅棕皮沙发泛着时光沁润的柔润,与粗粝草编地毯、温润原木茶几碰撞出奇妙平衡。藤编屏风半掩,将庭院绿意滤成朦胧画片。
纸灯晕染暖黄光晕,植物影子在墙上游走,整个客厅似被自然轻拥,每一寸都透着“松弛到骨子里”的静谧张力 。
转角藏着空间的「呼吸感」!木格栅半透光影,台阶灯带温柔分层,原木收纳柜静静陈列着素朴器物。
窗边藤编椅搭木纹桌,复古吊灯晕开暖黄,磨砂玻璃滤过的绿意朦胧如纱。这里没有刻意设计,只是把木的温润、藤的松弛、光的暧昧,都妥帖收进日常里,连阅读都沾了层自然的静谧滤镜。
阳光透过植物,在墙面上投下清晰的影子。浅棕色皮沙发质感温润,抱枕、藤编地毯呼应自然调。
角落绿植添了生机,烛火微微亮着,木屏风缝隙间,光影和原木气息交融,营造出自然又松弛的氛围,满是生活的宁静感。
原木餐桌沉稳质朴,搭配线条简洁的木椅,坐感舒适又贴合整体风格 。一盏纸艺吊灯悬于餐桌上方,暖光倾洒,营造出温馨氛围。
透过木质格栅窗,隐约可见户外绿意。一旁的壁灯散发柔和光芒,与挂画相映成趣。地面铺陈的材质与客厅相呼应,整个餐厅在简洁中透着宁静。
负一楼的空间,把日式自然风玩出了新境界。木格栅推拉门半掩,将庭院的山石、绿植框成动态画。圆形纸灯垂落,柔和光晕铺满藤编地毯。
矮几上的小物件,与窗外的禅意庭院呼应,阳光漫进来,让这里既有下沉空间的静谧,又藏着与自然对话的松弛感,像把山林间的茶室搬回了家。
负一楼的餐厨区延续自然原木风,玻璃移门将厨房与餐厅巧妙分隔,既保证通透感,又让空间功能清晰。
阳光透过百叶窗洒入,照亮原木橱柜与岛台,一株绿植点缀其间,把自然意趣揉进烟火日常,每一寸都透着治愈的松弛感 。
踏入书房,原木风的松弛感扑面而来。长桌线条利落,搭配藤编椅与原木凳,质朴又自在。一侧壁炉燃着暖火,窗边望远镜望向远方,墙上搁架摆着小物。
百叶窗滤进柔光,木地板泛着温润,在这里,既能伏案深耕,又能透过窗与自然、借望远镜与星空对话,把静谧与浪漫融成日常。
浅木色铺满整个书房,温润又治愈。墙面层架简约,摆着小物件与复古音箱,藏着屋主的喜好。移门让空间可开可合,小窗洒进柔和光线,角落望远镜透着对远方的好奇。
在这里,工作、阅读都成了与自然和自我对话的温柔时刻,满是原木风的松弛与诗意。
二楼空间把自然原木风玩出童趣,浅木墙面延伸至地板,温润又统一。藏在挑空区的滑杆超吸睛,搭配网格设计,成了连接上下层的纽带。
阳光透过小窗洒下,孩子攀爬玩耍时,影子在镜面墙跳跃,把自然松弛感与生活趣味狠狠拿捏,让家不止是居所,更是藏着惊喜的成长乐园。
镜面墙延伸视觉,让舞蹈、瑜伽等活动更自在。角落阅读角,嵌入式木架藏着书籍器物,暖光点亮静谧时光。
从运动嬉戏到阅读静思,这里用自然材质,把多元功能悄悄融进日常,让家成为成长与生活的活力场。
阳台区域是自然与生活的温柔衔接,原木柜体收纳日常,竹帘半掩,滤进轻柔光线。坐在榻榻米上,或阅读、或静望庭院,城市喧嚣被绿植与木格栅阻隔。
推拉门敞开,室内外交融,家人围坐品茶,看光影在绿植间游移,把日式自然风的松弛,变成触手可及的生活日常 。
庭院藏着日式自然风的灵魂,苔藓覆石、蕨草丛生,乔木与灌木错落,把四季绿意都收进这方小天地。
砾石小径蜿蜒,与木平台衔接,茶席随意摆放,人走在其间,像融进一幅鲜活的植物长卷。透过推拉门,庭院是家的延伸,用原生绿植的野趣与生机,把松弛感焊在生活里。
卧室把日式自然风的“静”做到极致,原木床头、地板连起温润底色,浅米色墙面像一层薄纱,滤掉所有繁杂。
大窗藏着绿意,百叶帘让光线变得轻柔。 没有多余装饰,却靠材质的质朴、光影的细腻,营造出能“沉下来”的睡眠空间。
卫生间延续原木风的松弛感,浅调墙地搭配温润木色,百叶帘柔化了光线。浴缸嵌在空间里,小凳、绿植点缀,消解卫浴的冰冷。
洗手台石材与木柜碰撞,镜子带暖光,营造出自然又精致的氛围。在这里,洗漱泡澡都成了与自己对话的治愈时刻,把家的松弛感延伸到每一处日常。
儿童房洋溢着温馨与童趣,木质高低床巧妙设计,床下抽屉、侧边置物架,满足收纳需求,还摆放着可爱玩偶 。
窗边书桌宽敞明亮,方便孩子学习创作。柔和灯光从吸顶灯洒下,搭配原木地板,营造出温暖舒适的氛围。房门上的圆形孔洞设计,又增添了几分俏皮。
庆峰“整装”新时代
给你一个完美的家
1对1设计服务,免费量房,
18项全包服务,从毛坯到精装,
10大品牌建材,工厂直供,
实景体验,看到即得到,
详情请到店咨询。

