大数跨境

装修风格 | 绝美的气度与质感,这才是适合小户型的绝美法式风格

装修风格 | 绝美的气度与质感,这才是适合小户型的绝美法式风格 山西庆峰公司官微
2025-09-16
2
设计始终来自对自身生活的觉察。谈及一室一角的安排,本案以壁炉为主轴,因为窝在柴火前,放松独处一直是屋主的向往”,于是利用“2+1”房格局,盼能在都市丛林中拥有一处专属休憩所。
放眼望去,少了法式华丽气息,却是完美承袭了一份从容自如,正因设计上淡化了古典风过于奢华、冷冽之气,留住轻盈简约调性;只取线板与金属配件局部装饰细节,现代语境则交由灰色调涂料及四种天然石材铺陈。
设计不只是撷取风格里经典的符码,还要真正切合习惯,尤其住在大楼中,天地墙是彼此共享的。加强隔音之余,也针对环境湿气以硅藻土确保屋内干爽舒适,甚至运用无缝、耐磨、易清洁建材,让优雅真正付诸于日常。
“半弧简化了古典雕花线板,衍伸出带有现代感法式风韵,成为本案琴房拱门的重要象征。”整体为了强化主景、试图扩大柔美意象,也将弧线用于修饰横梁或转角,如同玄关转角处穿鞋椅,以柔和笔触贯穿全屋。

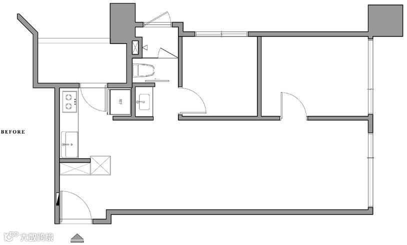
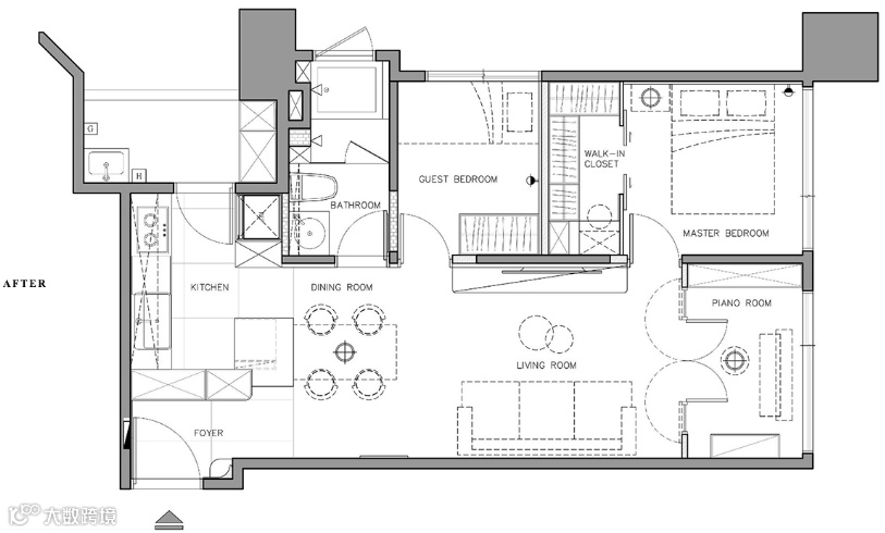
户型图



原始户型,套内60㎡,两房一厅格局,常住一人一狗。现有格局,不符合屋主对居住环境的期待。


< 屋主需求 >


• 偏好简约法式风格,喜欢大理石和线板;
• 一定要有更衣室、浴缸和壁炉;
• 需要一间单独的书房,作为个人专属空间;
• 重视收纳机能,偏好画面简洁的封闭柜;
• 选用宠物友善、好整理维护的建材。



玄关设计


推门而入,雕花线板随着视线层层迭高,摊开精美无暇的迎宾之景。为了给予厨房更大使用空间,挪移鞋柜重塑玄关尺度,以窄长落尘区,同石纹地砖延展回家进程。
此外,玄关柜采用双面柜形式,利用柜体中段延伸出厨房L型料理台,而于鞋柜一侧则覆上烤漆玻璃,当作留言板,巧用地利优势,不忘在穿脱鞋子之际,再次提醒自己一日的待办事项。


餐厨设计



当天花随著顶梁落下一道分界,地坪也相继划分了餐厨,奠定出中岛与餐桌的所在之位。此时,顶级翡冷翠大理石纹接受目光焦点,与一座兼具电器柜的中岛拉近餐厨互动。
循着梁下灯线看去,巧妙地结合自己爱喝茶、收集杯子的兴趣,以茶柜将冰箱量体藏于无形,并佐以直纹半弧饰板,呼应线板元素之余,亦添入现代语境。
考虑到使用需求与清洁便利性,决定全面汰换开发商所附厨具,分别置入L型料理台面与中岛,腾出电器容身之所,此举也将料理区扩大了2倍之多;同步选用易清理的可乐石,一体成型拉开台面、防溅板和洗手槽,以无缝表面使油渍脏污一擦即拭。
当餐厅倚着石材中岛展开,木桌恰似重述了地面之界,而用餐时刻便随着月球灯而落下,以幽微之光,点亮一桌自煮好料。


客厅设计



暖灰烤漆墙从玄关连绵推出沙发背墙,并在天花收圆修饰里,随光渲染一片纯净的客厅之景,只为彰显出琴房的拱门。
隐藏门抚平原本破碎电视墙,灵活延展了厅区篇幅,安哥拉石材则像是从墙内探身而出,适切投放收纳机能,连绵纯粹无染画面。
因居住人数单纯,琴房大多是敞开门的,因此玻璃门采取180度双开设计,以大器框景捕捉着日常片段,留下写意的法式光影。


琴房/书房设计


随着木地板一路延伸至窗边,无界领域关系一改原本房屋的定位只以通透的欧式拱门界定了屋主的独处之地,让心随光浮沉,自处一方。
壁炉主景宛如交织了时空,以银狐大理石利落裹住电壁炉,另于墙面抹上义大利艺术涂料,任简朴肌理弥漫时代感;转眼间,如入欧洲乡间大宅。


主卧设计


转往卧室,天花的倒弧勾勒,为睡眠区抛出了相对开阔感,银狐白大理石则接续铺展出床头亮点;为使维护不费力,床头在120公分高之上外推出段差,让珪藻土接手展开屋高、缓解屋内湿气。
床边拣选一盏苹果吊灯,透过玻璃与不锈钢的折射光效,映上轻透柔光。
步入式衣帽间运用了部分客房空间,以对称双开滑门+开放式衣柜将所有衣物完整陈列;70公分宽的梳妆台则适度利用转角畸零,加上展示柜收齐保养瓶罐,更以L形磁吸镜面,满足日常使用需求。


卫浴设计


基于使用习惯,扩增了泡澡浴缸;化缺点为优势,由横向扩张管道间量体,拓出壁龛式收纳,使淋浴间、浴缸旁都有摆放沐浴用品、香氛蜡烛的地方,让所有安排都贴合日常仪式感。
为了放大了空间感,刻意选以纯白石纹砖,再揉入玫瑰金卫浴设备、木百叶窗体现古典美学,局部混搭石纹或马赛克砖,拉开深浅端景层次。


次卧设计


以和室为雏形,刻意架高10公分地面,往后无论是接待父母、好友或做瑜伽,都能弹性转换;房内更借清水模涂料的粗朴表现,呼应石材率性之美。


庆峰“整装”新时代

给你一个完美的家

1对1设计服务,免费量房,

18项全包服务,从毛坯到精装,

10大品牌建材,工厂直供,

实景体验,看到即得到,

详情请到店咨询。



【声明】内容源于网络
0
0
山西庆峰公司官微
有这么一个平台,可以像你的装修管家一样,从硬装、吊顶、家居、厨卫、软装帮你一次搞定,而且还能替你量身打造装修方案。 庆峰给你这样的生活方式,让繁忙的你,也能享受一站式家居装修,让您省心、省力、更省钱。
内容 0
粉丝 0
山西庆峰公司官微 有这么一个平台,可以像你的装修管家一样,从硬装、吊顶、家居、厨卫、软装帮你一次搞定,而且还能替你量身打造装修方案。 庆峰给你这样的生活方式,让繁忙的你,也能享受一站式家居装修,让您省心、省力、更省钱。
总阅读0
粉丝0
内容0