这是一套建筑面积89平米的简约风案例,房子原本的格局是二房,为了满足屋主一家人的使用需求,设计师把它改成了三房的格局,而且还做了很多的储物空间,让这个小窝变得更加宽敞实用和舒适。

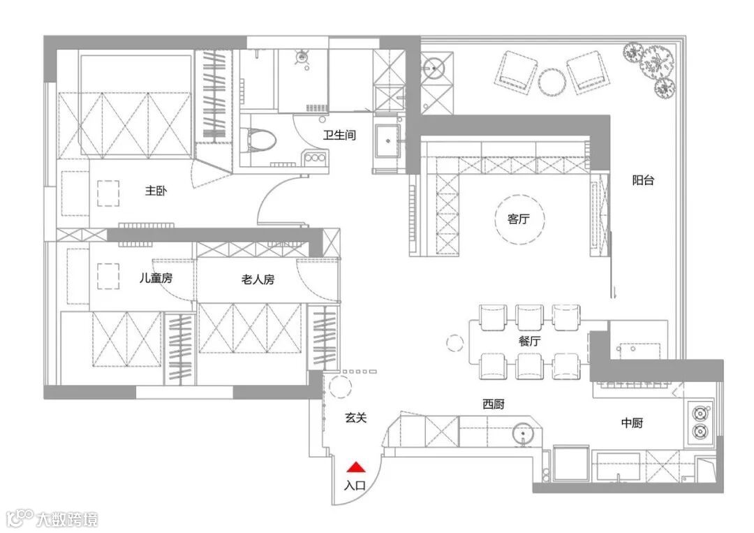
平面布置图

入户的玄关走廊对着卫生间,所以设计师加上了一个木栅栏隔断来进行遮掩。玄关的地面铺贴六边砖,和木地板拼接起来非常好看。

在玄关的另一侧是厨房和餐厅空间,玄关鞋柜和橱柜结合在一起。木质与大理石结合的餐桌和地面的双拼设计相互呼应。

厨房内部的空间还是比较宽敞的,L型的橱柜布局,淡青色的橱柜搭配灰色调六边砖和白色的墙砖,构造出一个清新文艺的烹饪空间。

客厅和餐厅之间没有做隔断,客厅的沙发用一个L型的卡座来代替,茶几被省略掉了。电视摆放在推拉门的前方,可转动角度的电视方便平时观看。

阳台是一个L型的空间,全包黑框玻璃的设计让阳台的光线变得更加充足。在阳台的角落里也做了储物柜,方便平时摆放一些零碎杂物和晾晒的衣架等。

主卧室被设计成了榻榻米床组合书桌柜的设计,在床尾抬高一部分的地方做书桌面,增强了可操作空间,也方便日常使用。

老人房和儿童房是连在一起的,老人房做在外面,榻榻米床和柜子之间作为通道,在柜子里还嵌入了电视,开放式的格子也方便老人平时拿取东西。

儿童房内部同样是榻榻米床组合衣柜和书桌的设计,衣柜底部还加上了藏光的设计,显得更为明亮。整个家就靠这些榻榻米床来扩容储物空间,布局也更加紧凑。

卫生间处做了双洗手台的设计,方便日常的使用,两者之间还加上了浴帘作为隔断,洗衣机也被嵌入在了洗手台下方,更为节约空间。

