FPV-3020 高速天车式龙门加工中心,是RAMBAUDI RC-270高架桥式五轴高速加工中心的国产化,实现了欧洲高端技术及设备的运用落地,进一步助力企业降本增效。
FPV-3020 具有高速度、高效率、高柔性、环保等特点。产品经模块化设计,可以按市场需求进行系列化、客制化生产供货,其良好的性能和价格比是国内外客户的最佳选择。
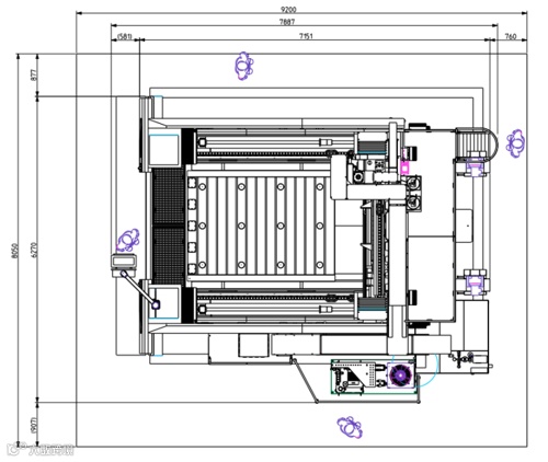
机床结构
亮点推荐
「机床结构布局]
机床采用固定拼接式 U 型床身底座总成,横梁顶置移动的高架天车动梁式布局结构;
标配有 A、C 轴万向铣头,可以多角度、多方位、多视角进行切削加工;
基础大件均采用优质树脂砂造型、高强度铸铁材料铸造而成,使机床得到高刚性和稳定的精度;
主要铸件均经过有限元素分析,筋格布置合理,充分满足机床高扭矩切削的需要。
「主传动]
采用高刚性方滑枕主轴箱,欧系先进的大扭矩偏置式 AC 轴铣头,能满足复杂铝材大中型零件的高效加工要求,实现铣削、钻孔、镗孔等加工;
电主轴采用精密高刚性主轴组合轴承,油脂润滑合理工况下轴承寿命较长,可有效节约使用维护成本。保证主轴具有更大的动、静刚度和更佳的切削性能。
「进给传动]
X、Y、Z 三个进给轴均采用 SIEMENS 进给电机驱动,稳定性好,运行可靠;
双电机同步驱动,实现平稳高速运行。
「机床导轨]
采用进口重载精密滚柱直线导轨,摩擦力小、承载能力强、高速振动小、低速无爬行、定位精度高;
横梁导轨(Y 轴)交叉布置组合,运动灵敏性、承载能力表现出色。
「其他]
采用液氮气平衡装置,能有效平衡克服主轴箱的重量,确保主轴箱上下运动灵活平稳、安全可靠、精度稳定并且保持性好;
主轴采用水冷机恒温冷却,有效控制机床在切削过程中主轴轴承产生的温升,减小主轴热变形对加工精度的影响;
五轴铣头 A、C 轴采用水冷机恒温冷却,有效控制机床在切削过程中 A、C 轴力矩电机产生的温升,减小五轴铣头热变形对加工精度的影响;
床身两侧配有链板式排屑器,可将切屑输送到床身端部的积屑车内,再集中运走,确保机床连续工作不卡屑。
应用领域
左右滑动查看更多
工作台尺寸
左右滑动查看更多
基本参数
机床配置
有关 友嘉集团 的最新消息
欢迎随时关注我们的微信公众号
关注 友嘉集团 公众号
点击卡片,期待您的关注!

