

项目名称:深圳观澜湖科技创新中心人才公寓项目
项目城市:广东深圳
项目团队:朗哥总部团队
项目简介:
创新中心为区科技主管部门促进龙华区产业发展的又一重大举措,该项目位于观澜北侧紧挨观澜湖高尔夫球场,总建筑面积约24935平方米,共三栋,每栋17层。与传统意义上的科技园区不同,为了打造具有特色的产业园区,创新中心将主要面向符合龙华区产业发展导向的优质研发机构、科技企业,重点引入新一代信息技术、智能制造、生物医药等产业领域的科技企业,并合理规划引进高质量科技教育普及机构和科技服务机构。
设计理念:
朗哥家具根据深圳观澜湖科技创新中心人才公寓的具体需求来打造生活住宿环境,在设计生活家居时对其舒适性、安全耐用性与功能性等方面都是有着较高要求,确保生活家居的配置能够有效为创新人才带来足够舒适便利,带来优质生活体验。
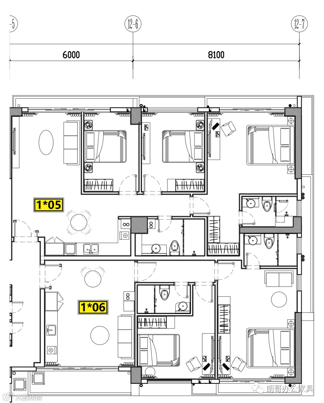
1、
户型平面图:

两房一厅户型实景图:






单人间户型实景图:



一房一厅户型实景图:





广东朗哥家具实业有限公司专注提供优质产品与优质服务,本着以人为本的设计理念,确保给客户带来足够的用户体验!如想了解更多,欢迎咨询朗哥家具,都将一一为您解答。

