点击标题下「蓝色微信名」可快速关注

2015年12月04日,在我们大业美家的领导和工程部经理、设计师等相关项目工作人员陪同下,为业主举行了一场简单而隆重的开工仪式典礼。东莞装修公司大业美家装饰热烈祝贺业主开工大吉!下面大家一起来和小编感受一下吧!
现场环境保护



全方位现场环境保护,大业美家文明施工,不破坏现场及周围环境,让你免遭不必要烦恼!
文明施工标牌


文明施工标牌提醒你,工地严禁烟火,关爱环境,微笑服务,文明施工!
开工仪式布置


装修开工仪式,准备祭拜的材料因地域而有所差别。按照广东的拜神礼俗,水果和酒都是必备的哦。当然,鲜花、礼炮、礼锤也是开工仪式必不可少的。
开工仪式正式开始

先倒香槟……

设计师给业主献上鲜花一束,恭喜业主开工大吉!

怎么能少得了合照呢!呵呵……

礼炮响起,一起举杯相庆。举觞称庆,朝气蓬勃,祝福满满~装修是构筑新家的开始,施工顺利,业主的新家就能早日建好,为了这个美好的祝愿,大家一起“干杯!”
在开工仪式上,在场人员要互道开工大吉、平安顺利等一类吉祥话,寓意接下来的施工可以顺利平安哦。
开工第一锤

业主敲下开工第一锤,表示装修可以开始正式动工了。一般而言,有些地方需敲三下,有些地区只需敲一下就可以了。如果讲究的话,业主第一锤要敲在需拆除的墙体上哦。
宣誓环节


总经理跟业主握手并宣誓保证工程绝对没有问题!并合影留念!

设计师向业主宣誓保证设计与实际效果匹配一致!

工程主管向业主宣誓保证施工监督力度执行绝对到位!

项目经理向业主宣誓保证施工质量与进度绝对没有问题!

客户管家向业主宣誓保证绝对做好服务与协调工作!
开工仪式完毕

设计师跟业主合影留念。
现场交底



开工仪式完毕后,设计师与客户、客户管家以及项目经理等相关工作人员开始进行现场交底,并确定水电位。
开工仪式只是家居装修的开始,后期的施工欢迎广大业主参观、指导、监督,您的关注是我们进步的动力!
大业美家装饰在施工地免费参观预约热线:0769-39019203
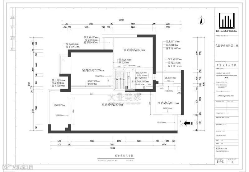
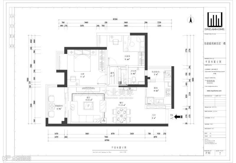
装修平面图赏析
本设计方案采用“轻装修重装饰”的设计理念,将繁杂走向简单。摒弃繁琐的改造,在合理的空间需求下,追求舒适简单的生活环境。采用软饰的配搭,空间合理的分配,加大家庭成员的互动,实现亲子娱乐的空间,营造一种舒适自由其乐融融的氛围。


林晓娜
中国室内装饰协会注册高级设计师
荣誉奖项:
2014年汕头家居设计大赛“优秀奖”
2014年作品多次刊登《潮之饰》杂志
设计理念:
美是内心的需求,设计诠释美。
个人优点:
责任心强,做事细心,爽快直接,乐于助人
从业年限:
从事室内设计6年
擅长风格:
现代,北欧,新中式,简欧等……
代表作品:
凯旋国际、鼎峰尚境、百阅尚城、柏嘉半岛、御锦城等

超牛工地
中信御园、海逸豪庭、湖景一号、联华花园城、鼎峰源著、丽水佳园、帝景中央、锦锈山河、龙泉豪苑、国际公馆、御海蓝岸别墅、圣堤雅别墅、天骄峰景、天玺、天骄御峰……
磐石工艺
·9大项365个现场施工控制点
·18项创新工艺
·3650道工序
·欧标E0级低碳环保材料
看得到的是细节,看不到的是良心!
每个项目施工前期,部门间平均经过5次以上沟通探讨,3650道工序,平均90次品质检查。
大业美家客户回头率80%以上
平均约有9个部门 102人 投入200%的精力服务1个家庭




