点击标题下「蓝色微信名」可快速关注

2015年12月30日,在我们大业美家的领导和工程部经理、设计师等相关项目工作人员陪同下,为业主举行了一场简单而隆重的开工仪式典礼。东莞装修公司大业美家装饰热烈祝贺业主开工大吉!下面大家一起来和小编感受一下吧!
开工仪式布置

装修开工仪式,准备祭拜的材料因地域而有所差别。按照广东的拜神礼俗,水果和酒都是必备的哦。当然,鲜花、礼炮、礼锤也是开工仪式必不可少的。
开工仪式正式开始

先倒香槟……

设计师给业主献上鲜花一束,恭喜业主开工大吉!

怎么能少得了合照呢!呵呵……

礼炮响起,一起举杯相庆。举觞称庆,朝气蓬勃,祝福满满~装修是构筑新家的开始,施工顺利,业主的新家就能早日建好,为了这个美好的祝愿,大家一起“干杯!”
在开工仪式上,在场人员要互道开工大吉、平安顺利等一类吉祥话,寓意接下来的施工可以顺利平安哦。
开工第一锤

业主敲下开工第一锤,表示装修可以开始正式动工了。一般而言,有些地方需敲三下,有些地区只需敲一下就可以了。如果讲究的话,业主第一锤要敲在需拆除的墙体上哦。
宣誓环节

客户管家向业主宣誓保证绝对做好服务与协调工作!
开工仪式完毕

设计师、客户管家跟业主合影留念。
开工仪式只是家居装修的开始,后期的施工欢迎广大业主参观、指导、监督,您的关注是我们进步的动力!
大业美家装饰在施工地免费参观预约热线:0769-39019203
装修效果图赏析

这套房子属于是比较舒适的小套房,由于空间比较小,所以我们这次采用的风格是简约风格,色调为温馨大方为主,我们会将空间尽可能性把空间做大,而且不丢失原本的功能需求。望眼看去客厅那个空间,我们本案设计会把阳台跟小空间打通,然后做个开放式的书房兼多功能房,把客厅的视觉效果扩大。然后把卧室区域空间一些细微的空间做细,由于两个主人的职业都会经常穿西装,所以本案设计会把主卧的储物空间做大,把格局做细。简约却温馨,小空间却满满的小幸福,才是真正的家。

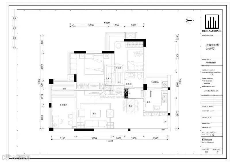
装修平面图赏析


陈艳玲
设计理念:
设计是源于生活的,生活因设计而改变!成就空间和谐,让设计物有所值,让细节缔造完美!坚持创意、创新、以人为本的设计理念。
个人优点:
精明能干,责任心强,做事细心,勤奋好学
从业年限:
从事室内设计6年
擅长风格:
现代,中式,田园等……
代表作品:
鼎峰尚境、格兰名筑、景湖花园、天骄峰景、塞纳河畔、君汇华庭、国际公馆、金域中央、丽江豪苑等……

超牛工地
中信御园、海逸豪庭、湖景一号、联华花园城、鼎峰源著、丽水佳园、帝景中央、锦锈山河、龙泉豪苑、国际公馆、御海蓝岸别墅、圣堤雅别墅、天骄峰景、天玺、天骄御峰……
磐石工艺
·9大项365个现场施工控制点
·18项创新工艺
·3650道工序
·欧标E0级低碳环保材料
看得到的是细节,看不到的是良心!
每个项目施工前期,部门间平均经过5次以上沟通探讨,3650道工序,平均90次品质检查。
大业美家客户回头率80%以上
平均约有9个部门 102人 投入200%的精力服务1个家庭




