点击标题下「蓝色微信名」可快速关注


▲开工仪式必备神器:鲜花、香槟、礼炮、礼锤!

▲现场必须摆放整齐,卫生干净!

▲客户管家向业主介绍施工相关工作人员!

▲来!排好队,笑一个,走起!

▲共同举杯祝贺活力粤港业主住宅装修开工大吉!

▲怎么少得了最重要的一幕呢!
▲设计师向业主讲解方案要点!

▲来!合影留念!!!
开工仪式只是住宅装修的开始,后期的施工欢迎广大业主参观、指导、监督,您的关注是我们进步的动力!
大业美家装饰在施工地免费参观预约热线:0769-39019203
【装修效果图赏析】

黑白灰色调的北欧作为主要设计思路,自然色彩的颜色搭配尽显空间的清爽简约之气,愈加的清透文雅,木质餐桌的设计搭配抹茶色彩的餐椅,简约间浸透现代风尚。

白色彰显了都市纯洁般心灵的寄托,加之石材背景墙装饰线的平面切割,使立体平面感更加强烈,布局更为优雅而颇具居家情调。
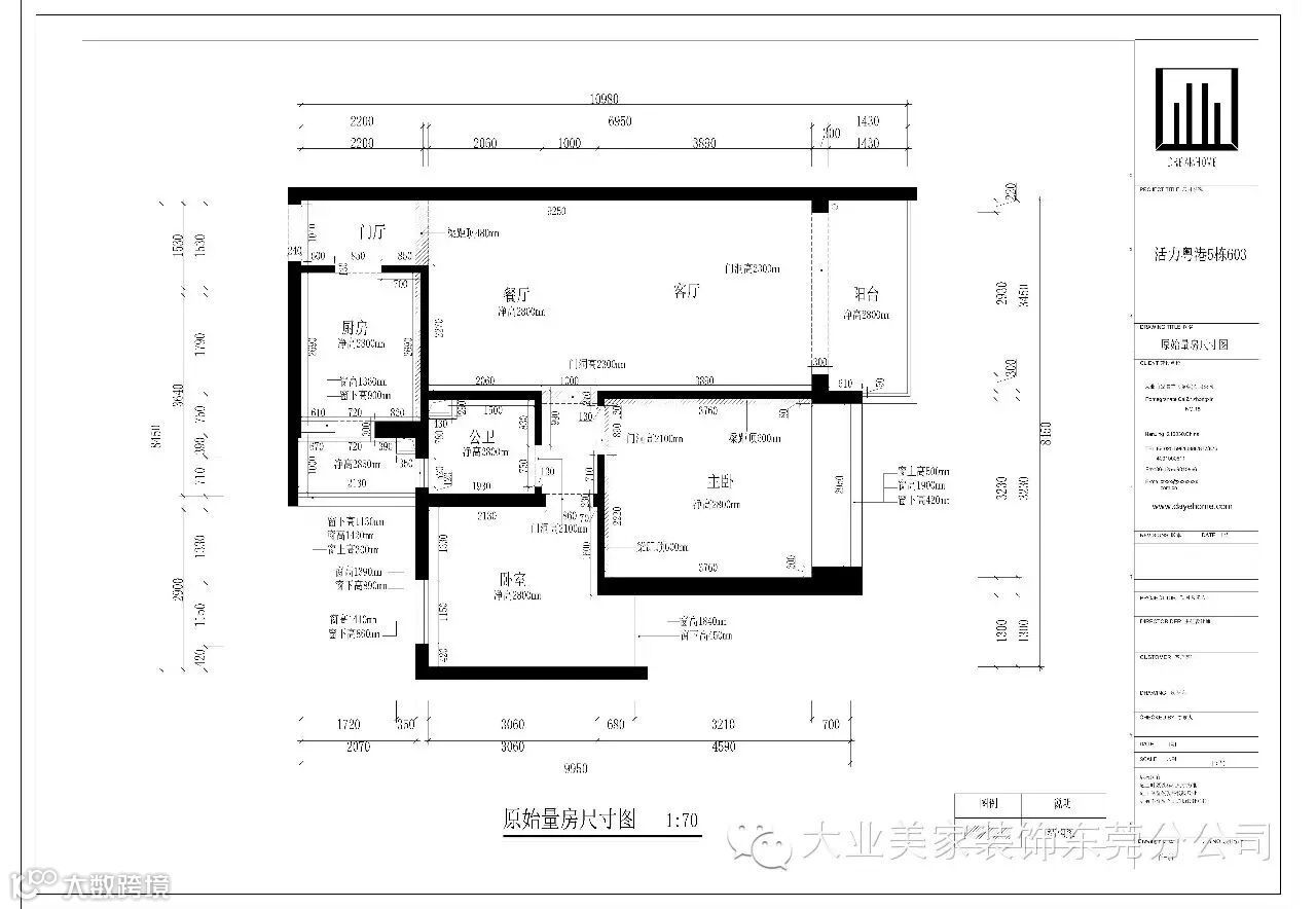
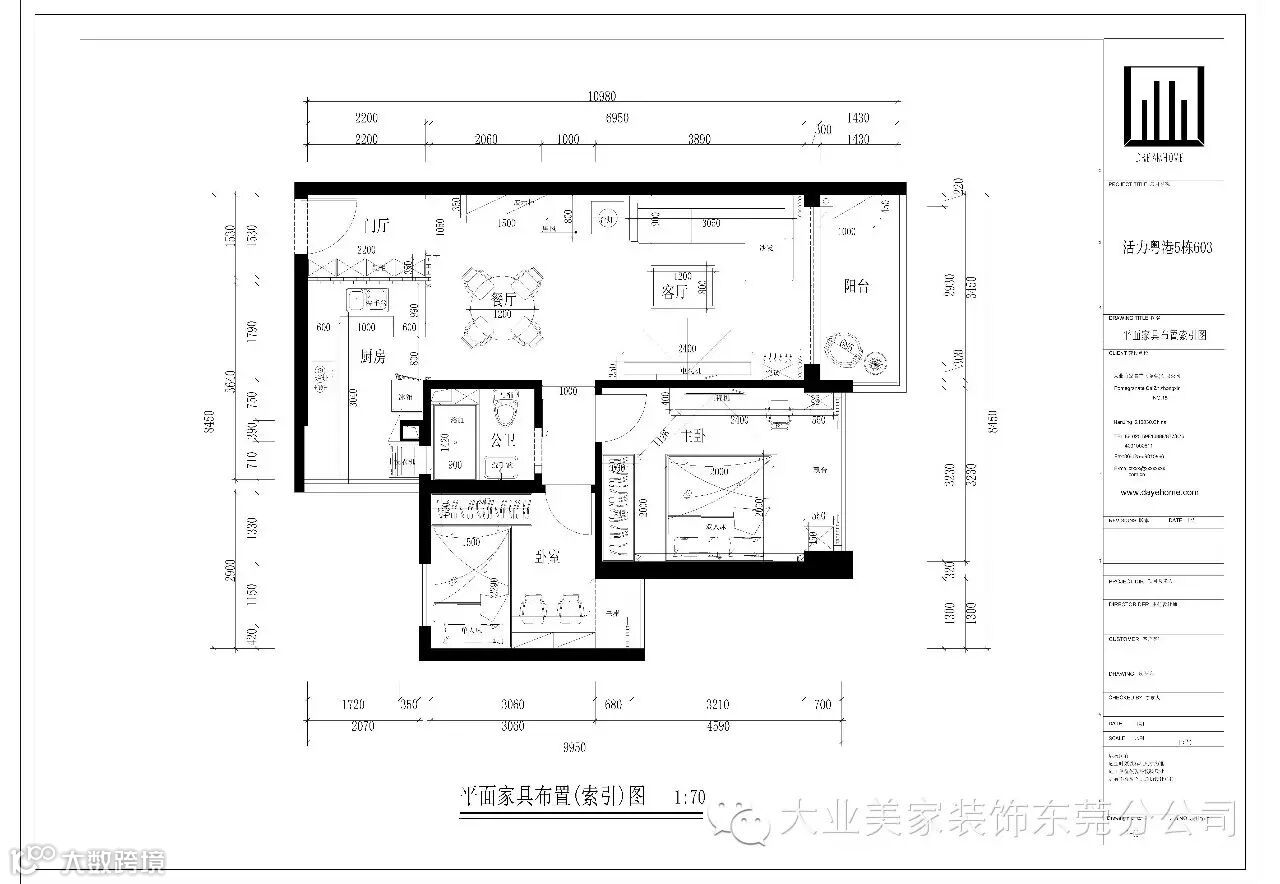
【平面图赏析】



超牛工地
中信御园、海逸豪庭、湖景一号、联华花园城、鼎峰源著、丽水佳园、帝景中央、锦锈山河、龙泉豪苑、国际公馆、御海蓝岸别墅、圣堤雅别墅、天骄峰景、天玺、天骄御峰……
磐石工艺
·9大项365个现场施工控制点
·18项创新工艺
·3650道工序
·欧标E0级低碳环保材料
看得到的是细节,看不到的是良心!
每个项目施工前期,部门间平均经过5次以上沟通探讨,3650道工序,平均90次品质检查。
大业美家客户回头率80%以上
平均约有9个部门 102人 投入200%的精力服务1个家庭







