点击标题下「蓝色微信名」可快速关注


▲开工仪式一切准备就绪!

▲哎,等等!一点点小问题都不允许出现!

▲好啦,终于可以美美地拍一张了,先赞一个!

▲来!排好队,正式拍啦,走起!

▲共同举杯祝贺兰溪谷业主家居装修开工大吉!

▲高兴地送上鲜花一束!
▼下方高能预警!

▲业主英姿:力拔山兮气盖世!

▲业主:说!我帅不帅?!

▲业主:不信?真打你哦!

▲小编:这力气杠杠的!不信请看下面!

▲我承认我是来客串的!
【宣誓环节】

▲分公司总经理亲自向业主宣誓保证施工进度与质量没问题!

▲设计师向业主宣誓保证设计与实际效果匹配一致!

▲工程主管向业主宣誓保证施工监督力度执行绝对到位!

▲项目经理向业主宣誓保证工程质量与进度必须没问题!

▲客户管家向业主宣誓保证绝对做好服务与协调工作!
▼开工仪式完毕

▲再来一张!

▲再干一杯!
开工仪式只是家居装修的开始,后期的施工欢迎广大业主参观、指导、监督,您的关注是我们进步的动力!
大业美家装饰在施工地免费参观预约热线:0769-39019203
【装修效果图赏析】

现代简约风格,注重居室的实用性,而且体现出现代社会生活的精致与个性。

正如我的设计理念一样:轻装修重装饰,用每一个饰品来突出每个空间的特点,使立体平面感更加强烈,布局更为优雅而颇具居家情调。

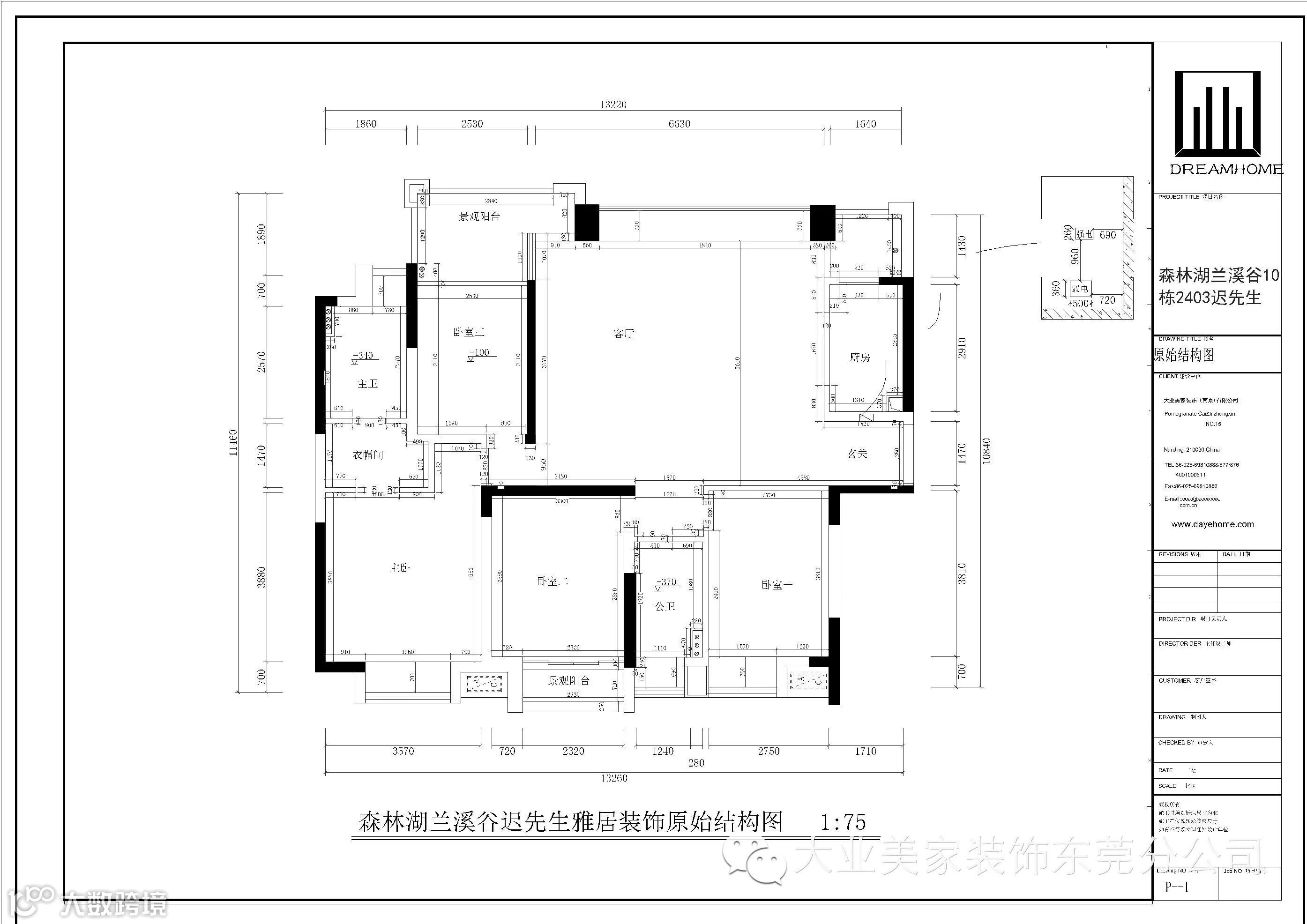
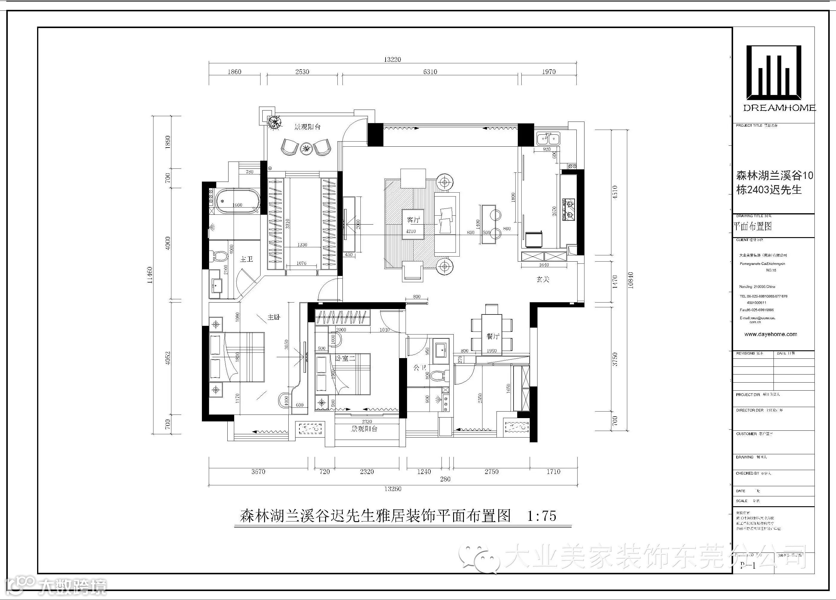
【平面图赏析】


吴沛权
建筑装饰协会室内设计分会会员
中国室内注册设计师
荣誉奖项:
2009年被中装协(中国建筑装饰协会)评为“全国杰出中青年室内建筑师”
2010年被东莞百名优秀室内设计师评审组委会评为“东莞百名优秀室内建筑师”
2010年获“东莞第五届室内设计双年展”一项银奖,三项铜奖
2011年获“金达杯”东莞室内设计大奖赛公共建筑工程类、方案类两项优秀奖, 一项佳作奖
2012年获东莞第四届室内设计大展三等奖
2013年获东莞室内设计大奖赛暨巴斯夫杯室内设计大赛三等奖
2013年获东莞室内设计大奖赛暨巴斯夫杯室内设计大赛佳作奖
东莞第四届“居无忧”杯空间设计入围奖
2013年室内设计最佳创意奖
设计理念:
设计师应当创造有益的空间,以影响人们的行为方式。
个人优点:
责任心强,做事细心,不拘小节,有爱心
从业年限:
从事室内设计6年
擅长风格:
现代乐活,台式风格,港式奢华,欧式风格,新中式,异域风情等……
代表作品:
新世纪领居别墅、中信御园、海逸豪庭、湖景一号、联华花园城、鼎峰源著、丽水佳园等……

超牛工地
中信御园、海逸豪庭、湖景一号、联华花园城、鼎峰源著、丽水佳园、帝景中央、锦锈山河、龙泉豪苑、国际公馆、御海蓝岸别墅、圣堤雅别墅、天骄峰景、天玺、天骄御峰……
磐石工艺
·9大项365个现场施工控制点
·18项创新工艺
·3650道工序
·欧标E0级低碳环保材料
看得到的是细节,看不到的是良心!
每个项目施工前期,部门间平均经过5次以上沟通探讨,3650道工序,平均90次品质检查。
大业美家客户回头率80%以上
平均约有9个部门 102人 投入200%的精力服务1个家庭







