点击标题下「蓝色微信名」可快速关注










开工仪式只是家居装修的开始,后期的施工欢迎广大业主参观、指导、监督,您的关注是我们进步的动力!
大业美家装饰在施工地免费参观预约热线:400-154-6066
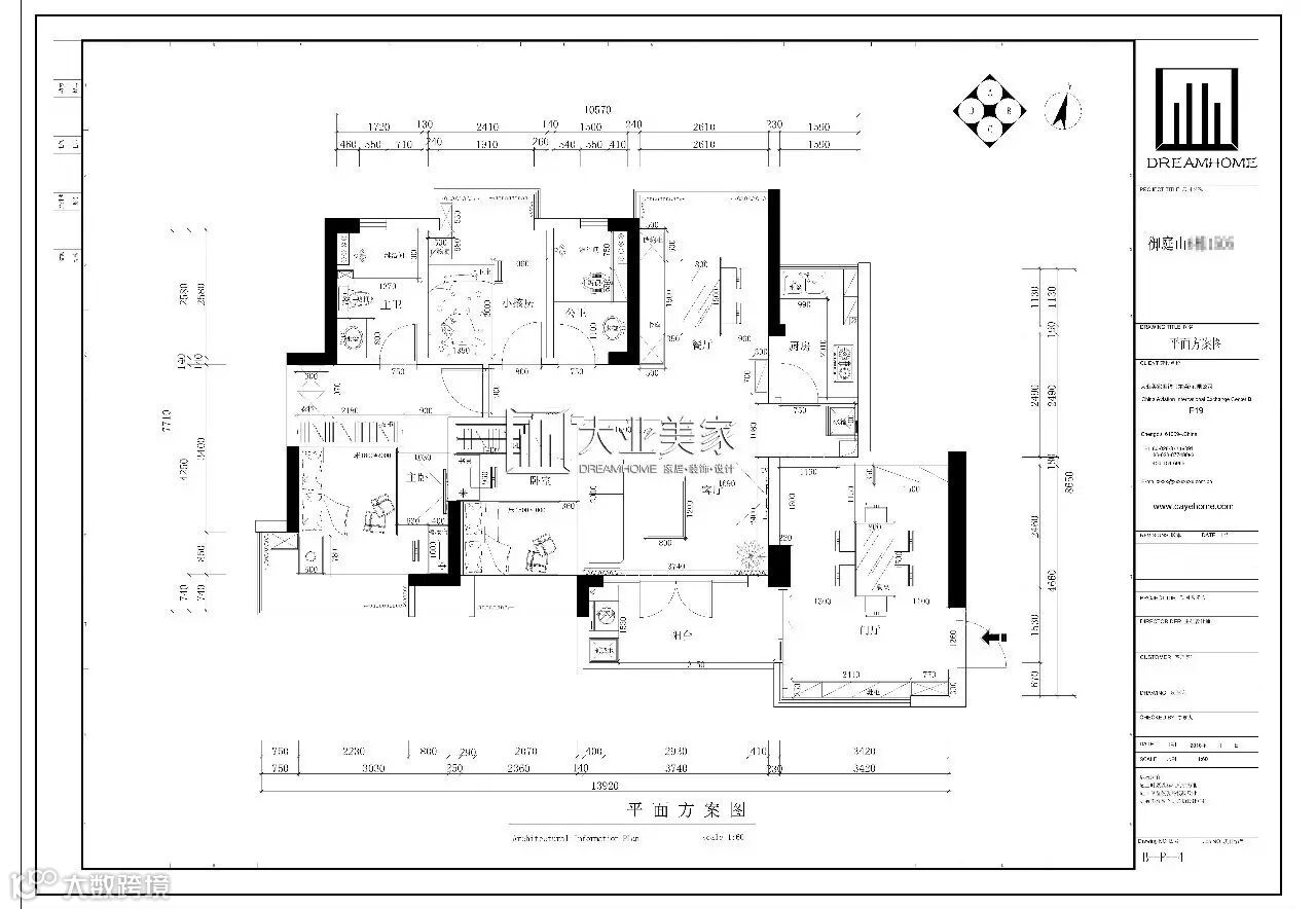
装修平面图赏析

刘小荣
国家注册高级室内设计师
建筑装饰协会室内设计会员
荣誉奖项:
毕业于北方工业大学
深造于清华美术学院
设计理念:
关注细节、品味生活。
个人优点:
有个性、幽默、有责任心
从业年限:
从事室内设计6年
擅长风格:
新古典、美式田园、现代等……
代表作品:
西山一号院、龙湾别墅、东湖湾、御花苑·天珑湾、鼎峰尚境、金域旗峰、兰溪谷、金域中央等
相关阅读


超牛工地
中信御园、海逸豪庭、湖景一号、联华花园城、鼎峰源著、丽水佳园、帝景中央、锦锈山河、龙泉豪苑、国际公馆、御海蓝岸别墅、圣堤雅别墅、天骄峰景、天玺、天骄御峰……
磐石工艺
·9大项365个现场施工控制点
·18项创新工艺
·3650道工序
·欧标E0级低碳环保材料
看得到的是细节,看不到的是良心!
每个项目施工前期,部门间平均经过5次以上沟通探讨,3650道工序,平均90次品质检查。
大业美家客户回头率80%以上
平均约有9个部门 102人 投入200%的精力服务1个家庭




