点击标题下「蓝色微信名」可快速关注

2016年01月22日,在我们大业美家的领导和工程部经理、设计师等相关项目工作人员陪同下,为业主举行了一场简单而隆重的开工仪式典礼。东莞装修公司大业美家装饰热烈祝贺业主开工大吉!下面大家一起来和小编感受一下吧!
开工仪式布置

装修开工仪式,准备祭拜的材料因地域而有所差别。按照广东的拜神礼俗,水果和酒都是必备的哦。当然,鲜花、礼炮、礼锤也是开工仪式必不可少的。

设计师给业主献上鲜花一束,恭喜业主开工大吉!

干杯合照!一起来!呵呵……

礼炮响起,一起举杯相庆。举觞称庆,朝气蓬勃,祝福满满~装修是构筑新家的开始,施工顺利,业主的新家就能早日建好,为了这个美好的祝愿,大家一起“干杯!”
在开工仪式上,在场人员要互道开工大吉、平安顺利等一类吉祥话,寓意接下来的施工可以顺利平安哦。
开工第一锤

业主敲下开工第一锤,表示装修可以开始正式动工了。一般而言,有些地方需敲三下,有些地区只需敲一下就可以了。如果讲究的话,业主第一锤要敲在需拆除的墙体上哦。
宣誓仪式

设计师向业主宣誓保证设计与实际效果匹配一致!

客户管家向业主宣誓保证绝对做好服务与协调工作!

工程主管向业主宣誓保证施工监督力度执行绝对到位!

产品设计师向业主宣誓保证绝对做好主材选购与跟进工作!
开工仪式只是家居装修的开始,后期的施工欢迎广大业主参观、指导、监督,您的关注是我们进步的动力!
大业美家装饰在施工地免费参观预约热线:0769-39019203
坚持先放线后施工

装修效果图赏析

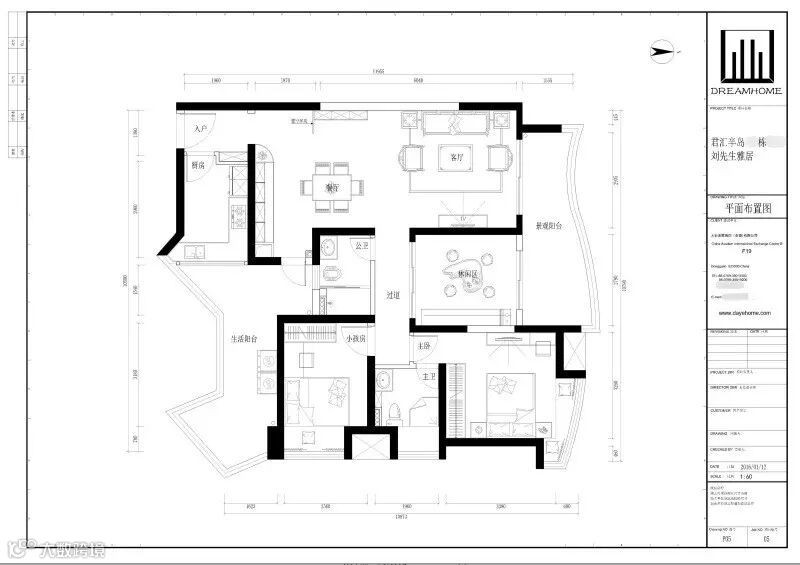
刘先生这套房子,由于进门口入户花园那里的空间比较大,然而餐厅是相对来说比较小的,所以本案的设计是把厨房整体打通,在入户那里做厨房,把原来厨房的地方利用为餐厅,使整个客餐厅变得大气实用。由于承重墙相对来说比较多,所以房间的空间改动性不大,只是进行了合理性的布局,把储物空间细化。整体是采取简单的现代中式风格,简单的中式线条跟中式家具,加上一些装饰上的小饰品,让空间更有韵味。

装修平面图赏析


陈艳玲
设计理念:
设计是源于生活的,生活因设计而改变!成就空间和谐,让设计物有所值,让细节缔造完美!坚持创意、创新、以人为本的设计理念。
个人优点:
精明能干,责任心强,做事细心,勤奋好学
从业年限:
从事室内设计6年
擅长风格:
现代,中式,田园等……
代表作品:
【竣工仪式】大业美家装饰热烈祝贺业主蔡先生新房装修竣工!一个成家的历程!

超牛工地
中信御园、海逸豪庭、湖景一号、联华花园城、鼎峰源著、丽水佳园、帝景中央、锦锈山河、龙泉豪苑、国际公馆、御海蓝岸别墅、圣堤雅别墅、天骄峰景、天玺、天骄御峰……
磐石工艺
·9大项365个现场施工控制点
·18项创新工艺
·3650道工序
·欧标E0级低碳环保材料
看得到的是细节,看不到的是良心!
每个项目施工前期,部门间平均经过5次以上沟通探讨,3650道工序,平均90次品质检查。
大业美家客户回头率80%以上
平均约有9个部门 102人 投入200%的精力服务1个家庭




