点击标题下「蓝色微信名」可快速关注









开工仪式只是家居装修的开始,后期的施工欢迎广大业主参观、指导、监督,您的关注是我们进步的动力!
大业美家装饰在施工地免费参观预约热线:400-154-6066
装修效果图赏析

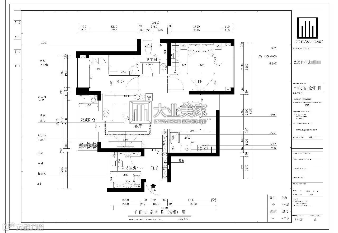
装修平面图赏析

林晓娜
中国室内装饰协会注册高级设计师
荣誉奖项:
2014年汕头家居设计大赛“优秀奖”
2014年作品多次刊登《潮之饰》杂志
设计理念:
美是内心的需求,设计诠释美。
个人优点:
责任心强,做事细心,爽快直接,乐于助人
从业年限:
从事室内设计6年
擅长风格:
现代,北欧,新中式,简欧等……
代表作品:
凯旋国际、鼎峰尚境、百阅尚城、柏嘉半岛、御锦城等
热门阅读
(点击打开哦)
【开工仪式】祝贺中信凯旋公馆徐先生开工大吉——做东莞最好的工地


超牛工地
中信御园、海逸豪庭、湖景一号、联华花园城、鼎峰源著、丽水佳园、帝景中央、锦锈山河、龙泉豪苑、国际公馆、御海蓝岸别墅、圣堤雅别墅、天骄峰景、天玺、天骄御峰……
磐石工艺
·9大项365个现场施工控制点
·18项创新工艺
·3650道工序
·欧标E0级低碳环保材料
看得到的是细节,看不到的是良心!
每个项目施工前期,部门间平均经过5次以上沟通探讨,3650道工序,平均90次品质检查。
大业美家客户回头率80%以上
平均约有9个部门 102人 投入200%的精力服务1个家庭




