

“
色彩是设计的灵魂
创意是设计的概念
生活是设计的表达方式
三者合一形成一个空间
一个家
”
请输入标题 bcdef
【陈锡强 · 专家级主案设计师 】
从事大宅家装设计8年
中国高级室内装修设计师
中国建筑装饰协会会员
2017年荣获第七届中国国际空间设计大奖
中国建筑装饰设计奖
商品房/样板房空间方案类优秀奖
请输入标题 abcdefg
代表作:森林湖、天骄峰景、愉景花园、天珑湾、国际公馆、景湖花园、景湖春晓、鼎峰尚境、鼎峰源著、丽水佳园、金域中央、帝景中央、保利红珊瑚、锦锈山河、龙泉豪苑、新世纪领居、东莞私宅等。

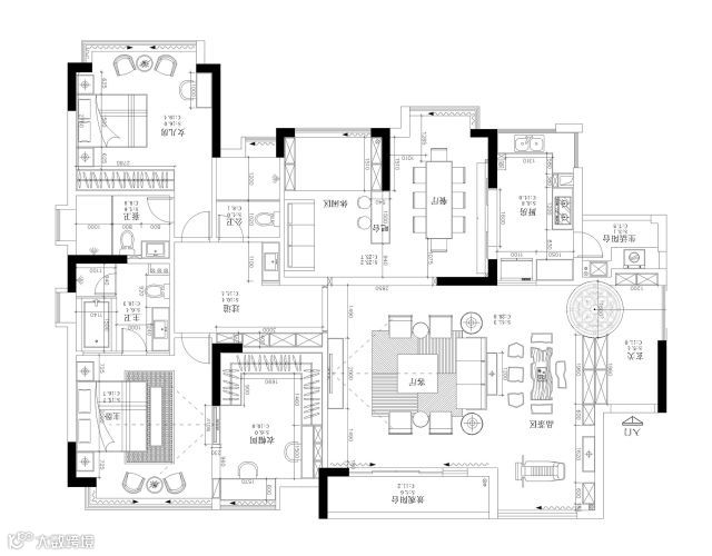
平面图 GENERAL LAYOUT
高雅而和谐是新古典风格的代名词。
白色、金色、黄色、暗红是欧式风格
中常见的主色调,少量白色糅合,
使色彩看起来明亮、
大方,使整个空间给人以开放、
宽容的非凡气度,
让人丝毫不显局促。
客厅 SITTING ROOM
餐厅 DINING ROOM
玄关 THE PORCH
卧室 MASTER BEDROOM
主卫 WASHROOM
卧室 SECOND BEDROOM
新古典风格:从简单到繁杂、从整体到局部,精雕细琢,镶花刻金都给人一丝不苟的印象。一方面保留了材质、色彩的大致风格,仍然可以很强烈地感受传统的历史痕迹与浑厚的文化底蕴,同时又摒弃了过于复杂的肌理和装饰,简化了线条。
平面图 GENERAL LAYOUT
本案以红木家具、木桩茶几、青砖、
长城灰、龙洞石、雨林菲、青花瓷、山水画、扇、
实木通花来打造新中式的气氛。
除了保留中式的韵味外,
还加了斑马纹、
爵士白大理石、玻璃、软包、灯带、黑钢、银箔等
现代材料,
使空间又包含了现代生活气息;
客厅 SITTING ROOM
影室 SHADOW ROOM
餐厅 DINING ROOM
卧室 MASTER BEDROOM
新中式风格:不是纯粹的元素堆砌,而是通过对传统文化的认识,将现代元素和传统元素结合在一起,以现代人的审美需求来打造富有传统韵味的事物,让传统艺术的脉络传承下去的具有中国特色的中国风格。总之,就是将传统的元素赋予现代的设计中,让人既体会到现代设计的科技性,又体会到传统的中国韵味。
平面图 GENERAL LAYOUT
本设计在每个细节中,
都追求让一幅画、一张地毯、一件摆饰
都能说出一个故事,
这正是关键所在,
也是设计师理想中的新装饰主义美学的终极精神。
客厅 SITTING ROOM
餐厅 DINING ROOM
卧室 MASTER BEDROOM
新装饰主义风格:是时代的引领者,在设计师所追求的设计中,尝试着将各种时尚的图腾纹样、更新的传统语汇与整个空间结合在一起,从而发展出一套美学体系;同样的,设计师透过把古典的语汇几何化、图像化、对比化、节奏化等方式转化,将古典语汇以线条化、简约化、色彩单一化、图腾夸大化等原则,转变为当今生活的设计方式。
▼点击视频,为你解读
时长:4分15秒 出品:大业美家
END
大业美家◎家美业大
中 国 别 墅 大 宅 全 案 解 决 专 家
相关阅读


↓↓↓

