

“
关注细节
品味生活
”
——刘小荣
请输入标题 bcdef
【刘小荣 · 高级主案设计师 】
建筑装饰协会室内设计会员
国家注册高级室内设计师
毕业于北方工业大学
深造于清华美术学院
请输入标题 abcdefg
代表作:西山一号院 、龙湾别墅、东湖湾、御花苑、天珑湾、鼎峰尚境、金域旗峰、兰溪谷、天骄峰景、塞纳河畔、金域中央等。
客厅 SITTING ROOM
以自然简洁为原则,整体浅色基调。
常用枫木、橡木、云杉、
松木和白桦等原木制作家具。
少量的金属及玻璃材质点缀。
多彩的地毯,靠背,抱枕。
餐厅 DINING ROOM
主卧 MASTER BEDROOM
卧室 MASTER BEDROOM
主卫 WASHROOM
欧式风格:最早来源于埃及艺术,埃及的历史起源被定位于公元前2850年左右。埃及的末代王朝君主克雷澳帕特拉(著名的埃及艳后)于公元前30年抵御罗马的入侵。之后,埃及文明和欧洲文明开始合源。其后,希腊艺术,罗马艺术,拜占庭艺术,罗曼艺术,哥特艺术,构成了欧洲早期艺术风格,也就是中世纪艺术风格。
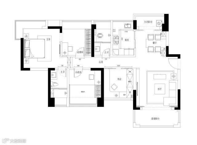
平面图 GENERAL LAYOUT
现代简约
饰品是所有家装风格中最不拘一格的一个。
一些线条简单,
设计独特甚至是极富创意和个性
的饰品都可以
成为现代简约风格家装中的一员。
客厅 SITTING ROOM
餐厅 DINING ROOM
卧室 MASTER BEDROOM
客厅 SITTING ROOM
本案位于东莞市万江区,
北临东江,
地处东江岸边,
以拥抱自然为设计主线,
期望在休闲中追求精致,
在自然之中追求质感,
以诠释舒适的空间。
餐厅 DINING ROOM
卧室 MASTER BEDROOM
多功能房 MUL TI-FUNCTION ROOM
卫生间 BATHROOM
现代简约风格:顾名思义,就是让所有的细节看上去都是非常简洁的。装修中极简便是让空间看上去非常简洁,大气。装饰的部位要少,但是在颜色和布局上,在装修材料的选择配搭上需要费很大的劲,这是一种境界,不是普通设计师能够设计出来的。
客厅 SITTING ROOM
客厅 SITTING ROOM
简欧风格就是简化了的欧式装修风格。
也是目前住宅别墅装修最流行的风格。
简欧风格更多的表现为实用性和多元化。
简欧家具包括床、电视柜、
书柜、衣柜、橱柜等等都与众不同,
营造出日常居家不同的感觉。
卧室 MASTER BEDROOM
卧室 MASTER BEDROOM
简欧风格:简约、质朴的设计风格是众多人群所喜爱的,生活在繁杂多变的世界里已是烦扰不休,而简单、自然的生活空间却能让人身心舒畅,感到宁静和安逸;藉着室内空间的解构和重组,便可以满足我们对悠然自得的生活的向往和追求,让我们在纷扰的现实生活中找到平衡,缔造出一个令人心弛神往的写意空间。
END
大业美家◎家美业大
中 国 别 墅 大 宅 全 案 解 决 专 家
▼点击视频,为你解读
时长:4分15秒 出品:大业美家
END
大业美家◎家美业大
中 国 别 墅 大 宅 全 案 解 决 专 家
相关阅读


↓↓↓

