爱家 专业 诚信
| 大业美家 始终如一 |

人们常说,
欧风注外在易流于形式,
而中式兼内核不失品格。
拥有赤诚之心的新中式主义是当下刻意追求装饰
浮夸环境中的一股清流,
而这样婉约低调的它,
也能在装饰里程碑上画下浓墨重彩的一笔。
不刻意迎合,
不崇洋媚外。
成为一种气节象征的存在,独一无二的的品味。
随时随地,听您想听...
新中式设计,满眼都是惊艳
新中式的美,源于中国的传统美学,
也源于设计师骨子里对中式文化的沉淀和积累。
本期作品
平面图

| PLANAR GRAPH |
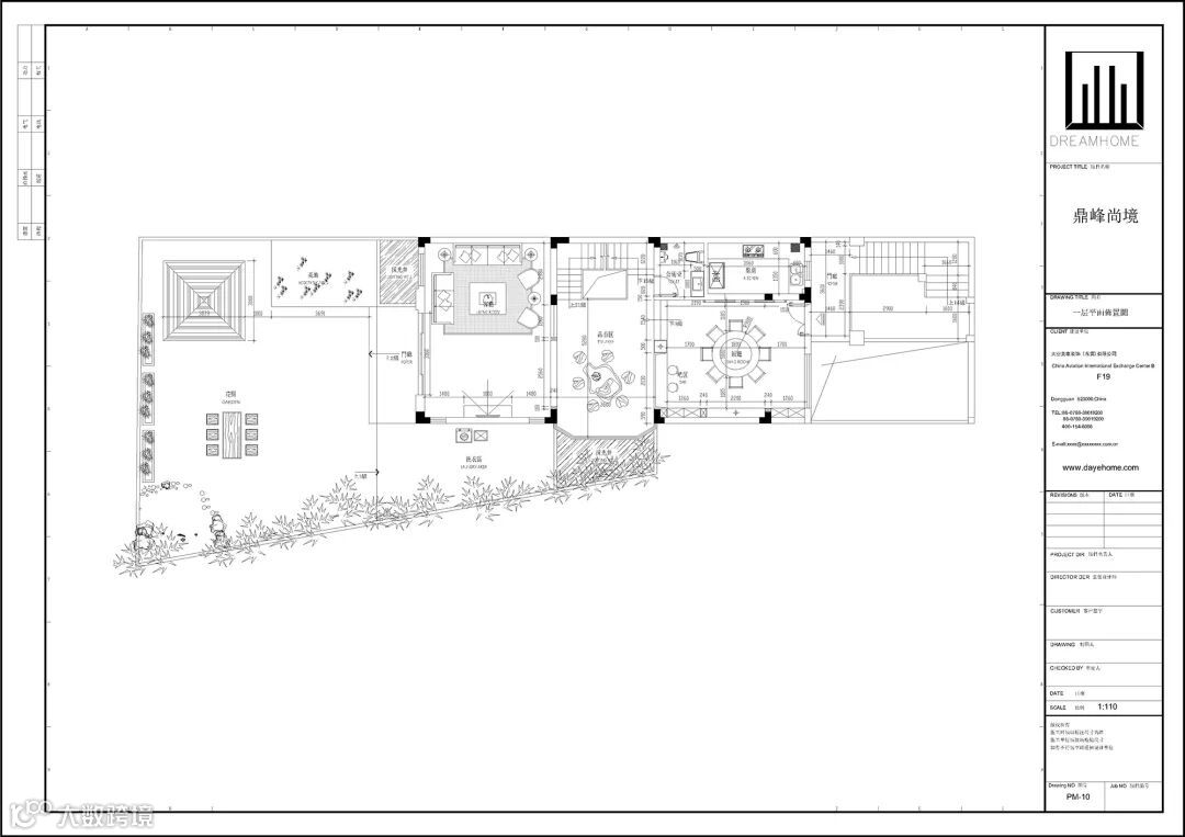
一楼平面图

| PLANAR GRAPH |
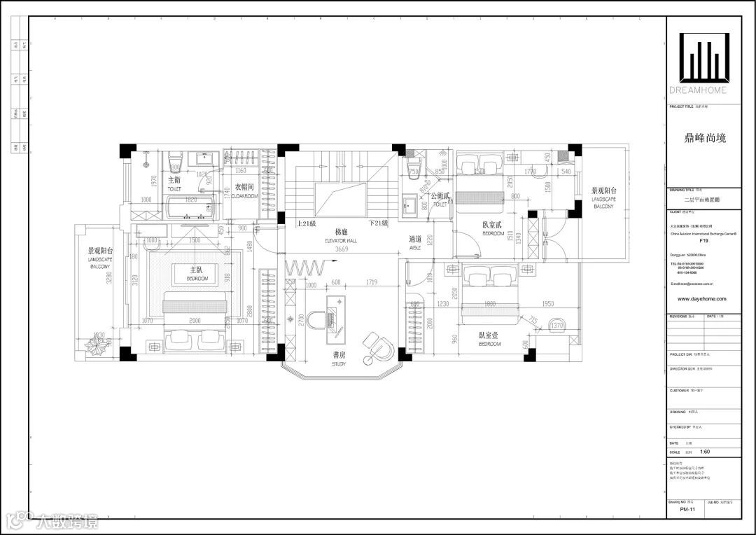
二楼平面图

| PLANAR GRAPH |
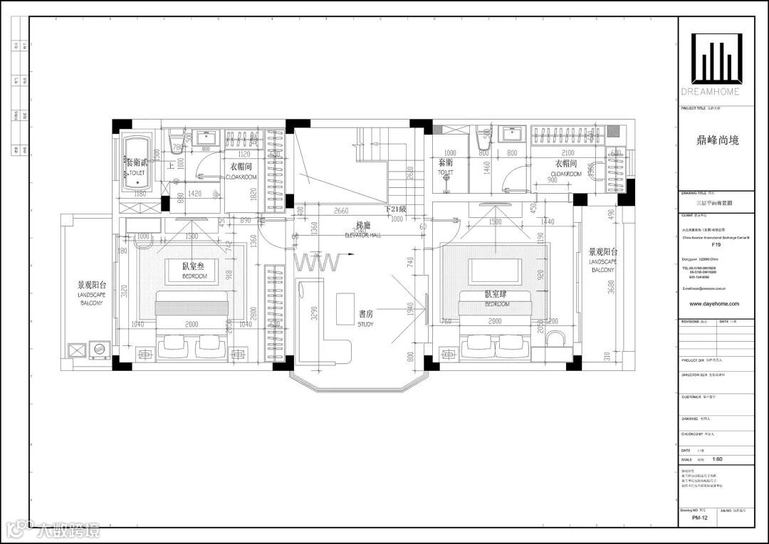
三楼平面图

| PLANAR GRAPH |
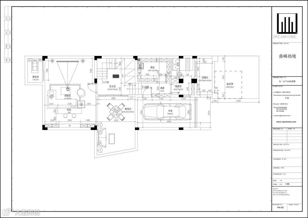
负一楼平面图
在繁杂的世俗之中,多留些时间安静下来
开一盏灯,读一本书
只因心存对生活的美好
所以此刻的你,不谈悲喜,只闻花香
只享夜色的静好

典雅与品味
本案以红木家具、
木桩茶几、青砖、长城灰、龙洞石、
雨林菲、青花瓷、山水画、
扇、实木通花来打造新中式的气氛。
| LIVING ROOM |
客厅

▵
空间包含了现代生活气息;
光源上舍弃了以往的烛光环境,
使用简洁舒适灯具,
大量采用落地玻璃,
把自然光引进室内;
在家具搭配上主要取材与自然,
以木材为主,
在合适的地方用合适的材料。
| CINEMA |
影视厅

▵
空间在体现中国元素上
摒弃了中国结、雕花等刻意的表达
而是通过空间的摆设、气味、触觉等
来营造中国传统文化的氛围
出于自然,而高于自然
情景交融的艺术与哲思
让空间多了一份含蓄的美
| RESTAURANT |
餐厅

▵
一抹素雅的色彩
几笔简练的线条
用最简洁的方式对客厅勾勒出了无限的想象
空间的简单不仅是形式优雅
更多了一层意象之广
踏入空间,细细品味
一切都是生于意外,又蕴于象内
更加耐人寻味,将中式的意境之美表达得更加纯粹
| MASTER BEDROOM |
主卧

▵
本设计在室外绿化上,
以竹子为主,
竹子自古以来就是文人墨客所歌颂的主题之一,
竹子这个意象在中国传统文化当中,
它是表示文人刚直不阿,
有节气,有骨气,
是这样一个象征。

本案设计师

陈锡强
专家级主案设计师
设计师介绍
中国高级室内装修设计师,
中国建筑装饰协会会员,
获奖殊荣:2017年荣获第七届中国国际空间设计大奖
(中国建筑装饰设计奖)
商品房/样板房空间方案类 优秀奖,
设计作品在《房天下》等网络平台刊登
2016-2017年度,荣获新家杯-中国家居设计百强新锐青年设计师
作品案例
森林湖、天骄峰景、愉景花园、天珑湾、国际公馆、景湖花园、景湖春晓、鼎峰尚境、鼎峰源著、丽水佳园、金域中央、帝景中央、保利红珊瑚、锦锈山河、龙泉豪苑、新世纪领居、东莞私宅等。
深圳:银湖蓝山、深圳私宅等。
设计理念
色彩是设计的灵魂,创意是设计的概念,生活是设计的表达方式,三者合一形成一个空间,一个家。

谢谢翻阅│欢迎分享
DREAMHOME DESIGN

相关阅读


点击下方“阅读原文”查看更多


