
有诚意 有心意 有深度
| 就等你来关注 |
2018年12月1日 农历十月廿四
上午吉时
东莞大业美家装饰为
金地城南艺境别墅万总福宅
举办了开工仪式
每一个陪伴,都是一件礼物
那些滋润我们成长的爱和幸福
一直在身旁从不曾离开
十二月 · 感恩季
大业美家感谢您的一路支持
一起筑造幸福 温暖感恩
正是这一份份简单的小确幸
堆砌出 ‘家’ 美好的样子

工地保护
是大业美家一贯的工作之一
防护工程不可缺少
铺好一层厚厚的保护
再贴上大业美家专用胶带
一套看似简单却非常实用的防护工程就完成了
接下来的施工
就不用担心会损伤建筑本身的地面和墙体


感谢万先生万太太对大业美家的支持和认可
大业人一定会把“说到做到”化为行动
全心全意做好全案服务
用高品质施工工艺
精细化的管理
打造完美舒适的家
家装0首付 客户0风险
颠覆传统家装
让您享受更好的家装体验
爱家、专业、诚信
看得到的是细节 · 看不到的是良心
为做东莞更好的工地
夯实基础
大业的匠人们将用标准的工艺
用心的态度
来回报您的信任
抱着一份信任 带着一份责任
不忘初心
设计师 客户管家 项目经理 工程监理组成的服务团队
将会履行自己的职责
将本职工作做到极致
把客户的家当自己的家
努力让客户更感动
大家一起举杯
祝施工顺利
共同期待心中的家完美落地

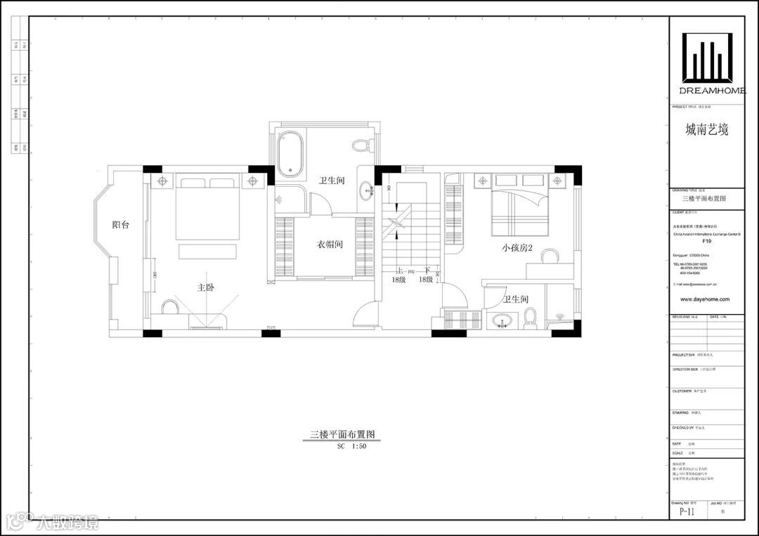
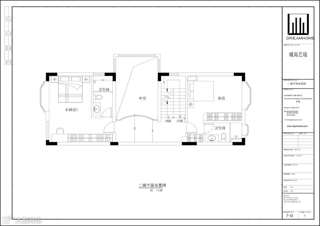
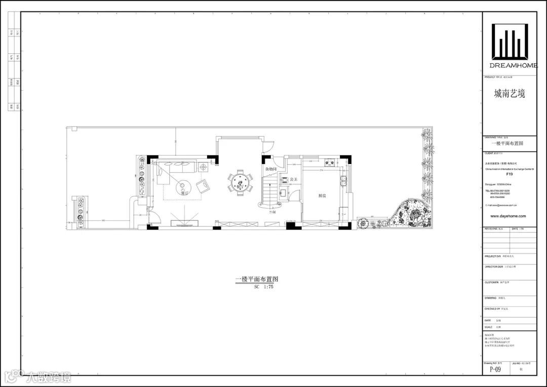
案 例 赏 析
欧式风格 》
欧式风格,是一种来自于欧罗巴洲的风格。主要有法式风格,意大利风格,西班牙风格,英式风格,地中海风格,北欧风格等几大流派。
所谓风格,是一种长久以来随着文化的潮流形成的一种持续不断,内容统一,有强烈的独特性的文化潮流。欧式风格就是欧洲各国文化传统所表达的强烈的文化内涵。

本案设计师

任锦潮
副主任设计师
嘉宏锦园、城南艺境、江滨新城白鹭湾、江南第一城、新世纪上河居、
新世纪豪园、君逸名轩、香颂里、富通自在城、
天安数码城、新世纪星城、
格兰名筑、汇龙湾、世纪城国际公馆香榭里等......
设计理念
人可以改变环境,环境可以影响人,而设计则可以改变人和环境。
|
|
|
END
大业美家◎家美业大
中 国 别 墅 大 宅 全 案 解 决 专 家
相关阅读


点击下方“阅读原文”查看更多

