
爱家 专业 诚信
| 大业美家 始终如一 |

▼点击视频,为你解读
时长:4分15秒 出品:大业美家
2019年8月25日 农历七月廿五
上午吉时
东莞大业美家装饰为王小姐福宅
举办了开工仪式


因为责任
我们极尽完美的工艺
因为规范
我们遵守苛刻的标准
大业美家
让工地自己





我以真情描一幅有关于<家与爱>的画卷
幸福太美,使人沉醉
你以信任谱一首家韵
此景可待,且欢且喜
感谢每一位选择大业美家的业主
如果这个季节有心事
也一定是想让我们的缘分更长更久

案 例 赏 析



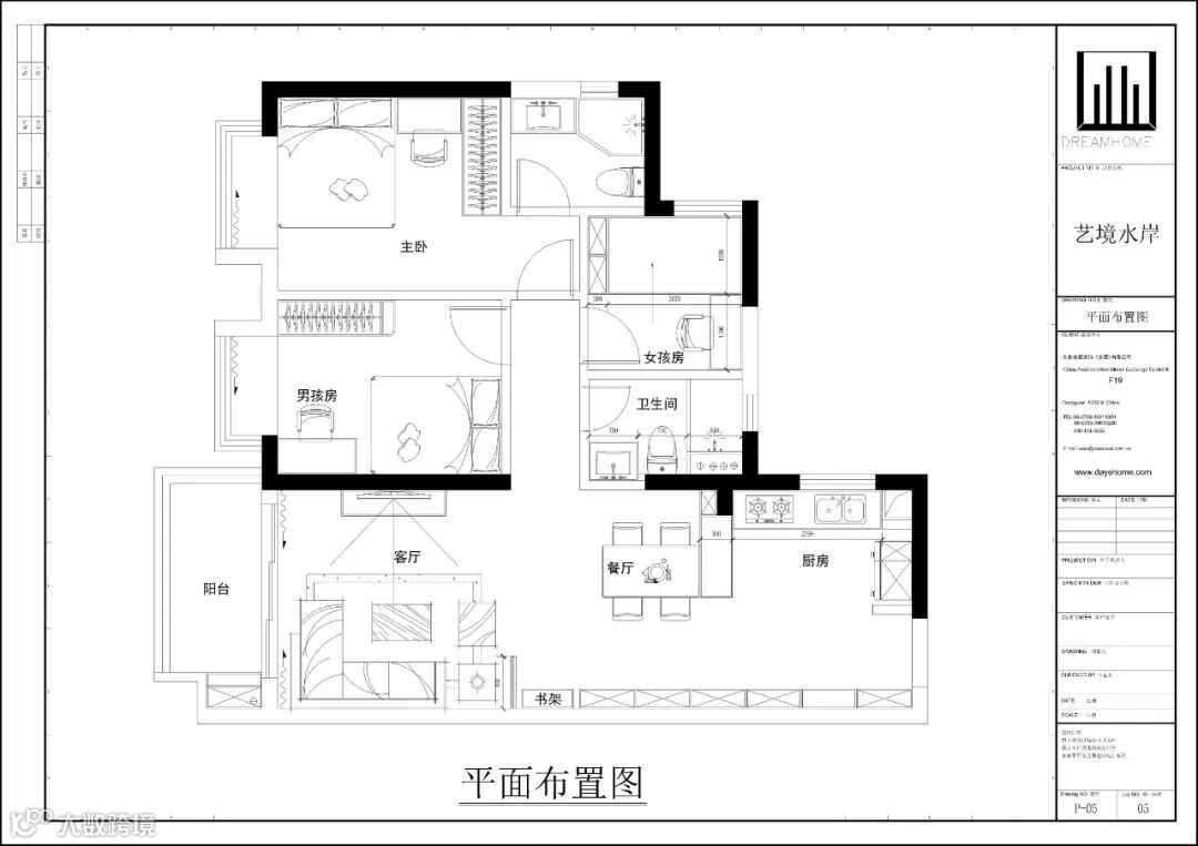
《北欧风格 》
北欧风格是随着欧洲现代主义运动发展起来的,属于功能主义的范畴。但是与欧洲其他国家的现代主义设计艺术相比,北欧风格融合了自己的文化特征,并结合了自己的自然环境和设计资源,形成了自己具有人情味的设计艺术语言。

本案设计师

余海涛
金地艺境水岸、嘉宏锦园、城南艺境、江滨新城白鹭湾
江南第一城、新世纪上河居、新世纪豪园
世纪城国际公馆香榭里等......
|
|
|
END
大业美家◎家美业大
中 国 别 墅 大 宅 全 案 解 决 专 家
相关阅读


点击下方“阅读原文”查看更多

