
爱家 专业 诚信
| 大业美家 始终如一 |

▼点击视频,为你解读
时长:4分15秒 出品:大业美家
2020年5月17日 农历四月廿五
上午10时08分
东莞大业美家装饰为黄先生、黄太太福宅
举办了开工仪式


因为责任
我们极尽完美的工艺
因为规范
我们遵守苛刻的标准
大业美家
让工地自己说话





我以真情描一幅有关于<家与爱>的画卷
幸福太美,使人沉醉
你以信任谱一首家韵
此景可待,且欢且喜
感谢每一位选择大业美家的业主
如果这个季节有心事
也一定是想让我们的缘分更长更久

案 例 赏 析






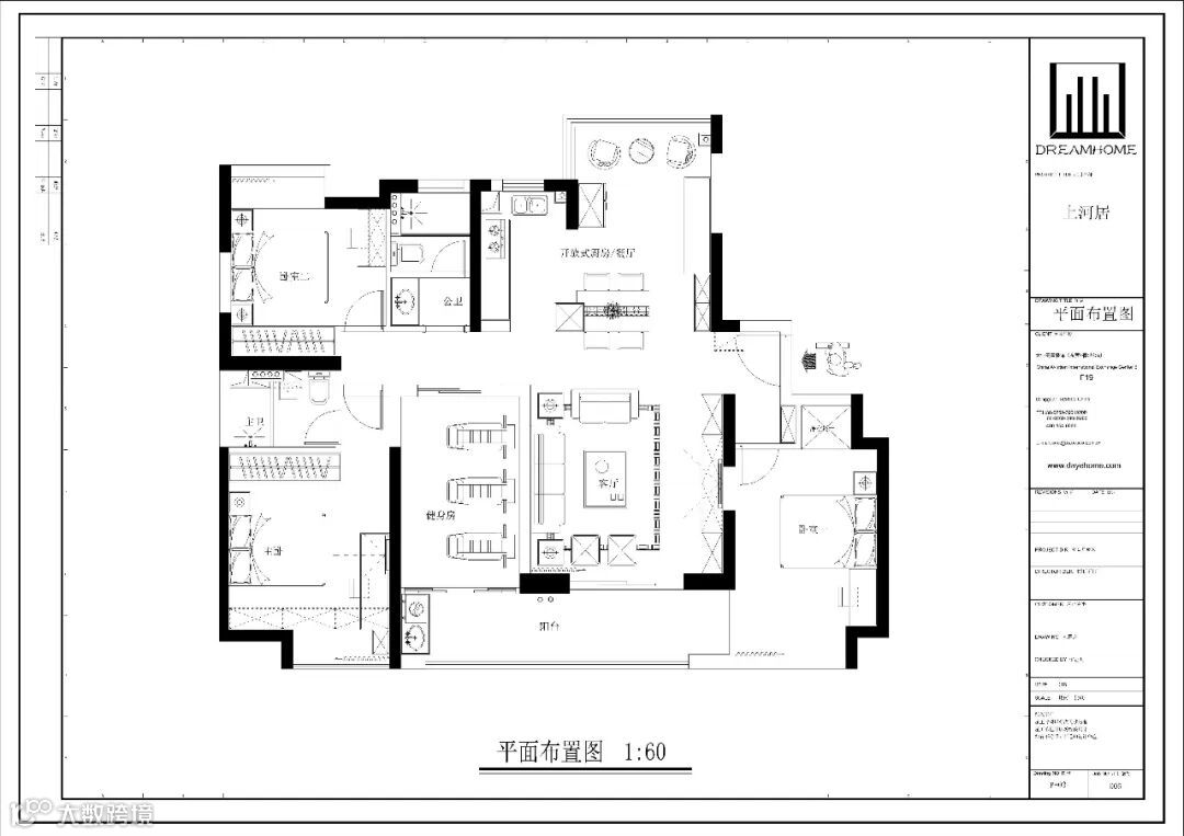
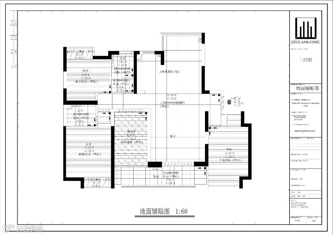
《现代风格 》
现代风格是比较流行的一种风格,追求时尚与潮流,非常注重居室空间的布局与使用功能的完美结合。现代主义也称功能主义,是工业社会的产物,其最早的代表是建于德国魏玛的包豪斯学校。其主题是:要创造一个能使艺术家接受现代生产最省力的环境---机械的环境。这种技术美学的思想是本世纪室内装饰最大的革命。

本案设计师

任锦潮
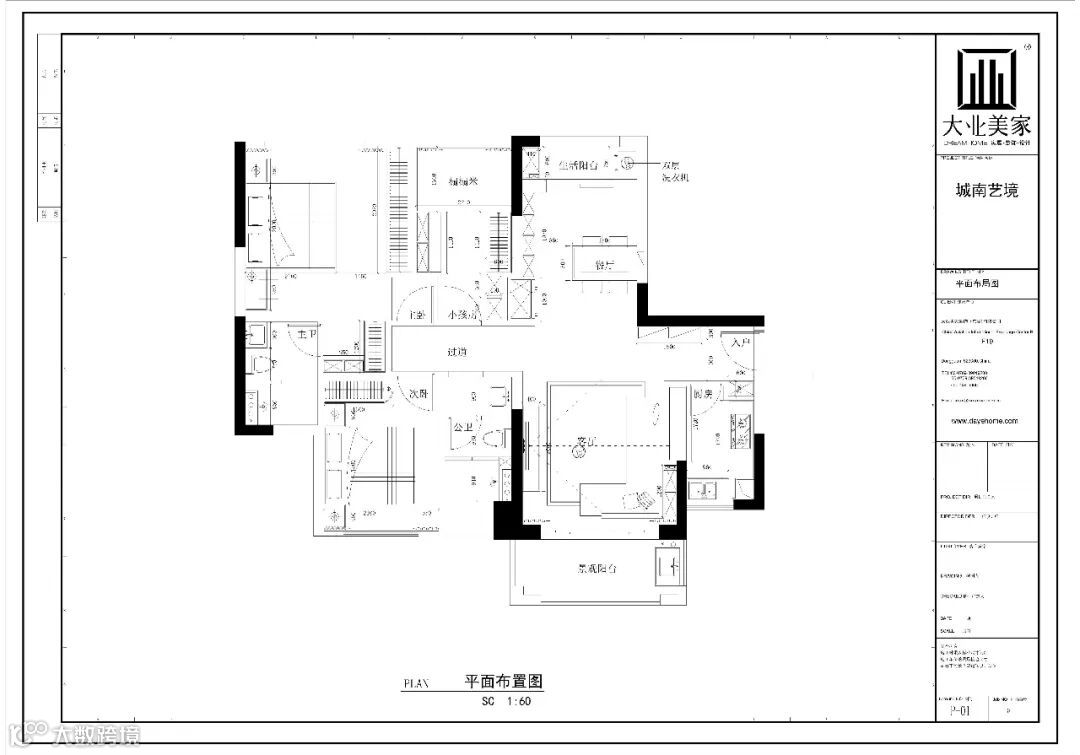
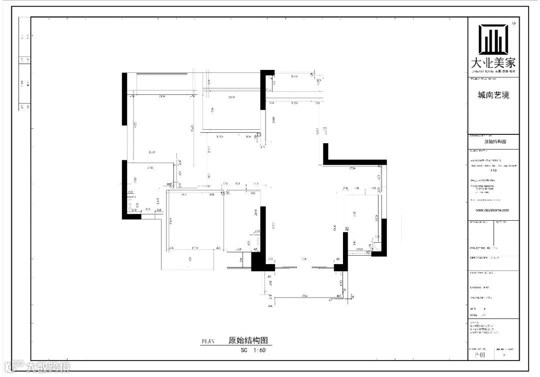
嘉宏锦园、城南艺境、江滨新城白鹭湾、
江南第一城、新世纪上河居、新世纪豪园、君逸名轩、
香颂里、富通自在城、天安数码城、君汇半岛、
汇龙湾、新世纪星城、格兰名筑、
世纪城国际公馆香榭里等......
|
|
|
END
大业美家◎家美业大
中 国 别 墅 大 宅 全 案 解 决 专 家
相关阅读


点击下方“阅读原文”查看更多

