大数跨境

美家墅||金丰花园吴先生府邸开工大吉

美家墅||金丰花园吴先生府邸开工大吉 大业美家装饰东莞分公司
2021-07-30
2
导读:品 质 · 温 暖 · 美 好Temperature of Dreamhome--四面墙的意义是什么是房子里
品 质 · 温 暖 · 美 好
Temperature of Dreamhome
--
四面墙的意义是什么
是房子里面所包含的东西
房子保护着做梦的人
在新居开工中
愿以初心呵护、浇筑
家的安全感
生活的幸福感

PART ONE
Take every detail seriousl
//
吉时吉日一起庆贺
吴先生府邸开工大吉
新家开工大吉的每一项仪式
都是迈向未来崭新的一步
礼炮鸣响的这一刻
生活开始有了新的盼头
胸腔中跳动的喜悦
是遇见美好的开始


2021

7/30

工作人员服务宣言



PART TOW
Take every detail seriously
//
用富有仪式感的开工为开场
记录下开工的第一项步骤
向每一个信任我们的业主
传递关于家的温暖瞬间
从设计图纸到施工第一锤
钢筋水泥的空间
因为期待、用心、匠心
带着所有最美好的祝愿逐一落地
生成理想的家居生活

寓意吉庆、喜悦“大业红”
融入每一个新家的开工仪式当中
代表着诚挚的祝福与贴心的服务
我们力求在细节中让客户
看见用心,看见良心
而不是华丽完美的说辞
PART THRE
With ingenuity to achieve a happy family
//
每一个施工前的准备
都是为了让每一个选择我们的客户
在略感不安的家装环境中
感到一丝放心、安心、舒心
能够在看到承诺的服务落地后
由心感到“嗯,选对了”!

感谢每一次信任与选择
遇见新家的美好
喜悦不仅停留在开工
更靠谱专业的服务
将始终贯穿装修点滴进程
以品质守护,以专业浇筑
打造高品质归属感安心之作

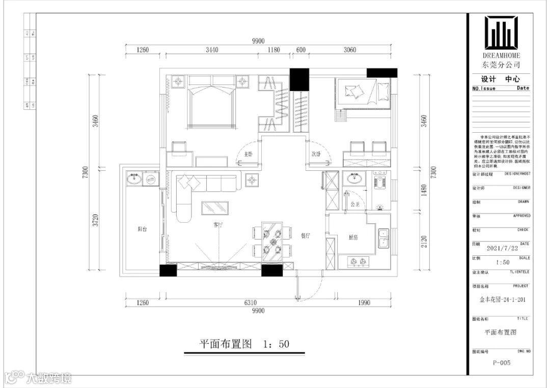
金丰花园


--

爱家、专业、诚信
匠心筑家,初心不改
家的每一份憧憬与承诺
值得更高的诚意对待
大业美家 家美业大

【声明】内容源于网络
0
0
大业美家装饰东莞分公司
北京大业美家家居装饰集团专业为别墅、大宅客户提供验房、室内设计、施工、主材选购、配饰等全案设计和一站式家居装饰服务。 大业美家在中国提出“先施工、后付款”为成功人士打造高品质精致家居生活。东莞分公司官网:dg.dayemj.com
内容 0
粉丝 0
大业美家装饰东莞分公司 北京大业美家家居装饰集团专业为别墅、大宅客户提供验房、室内设计、施工、主材选购、配饰等全案设计和一站式家居装饰服务。 大业美家在中国提出“先施工、后付款”为成功人士打造高品质精致家居生活。东莞分公司官网:dg.dayemj.com
总阅读0
粉丝0
内容0