品 质 · 温 暖 · 美 好
Temperature of Dreamhome
四面墙的意义是什么
是房子里面所包含的东西
房子保护着做梦的人
…
在新居开工中
愿以初心呵护、浇筑
家的安全感
生活的幸福感
PART 01
开工仪式
be with dreamholders
吉时吉日一起庆贺
2023年2月18日
万象府张先生府邸
开工大吉
新家开工大吉的每一项仪式
都是迈向未来崭新的一步
吉时吉日一起庆贺
2023年2月23日
万科麓湖谢先生府邸
开工大吉
新家开工大吉的每一项仪式
都是迈向未来崭新的一步
PART 02
礼炮响起 举杯相庆
be with dreamholders
礼炮鸣响的这一刻
生活开始有了新的盼头
胸腔中跳动的喜悦
是遇见美好的开始
PART 03
客户服务宣言
be with dreamholders
用富有仪式感的开工为开场
记录下开工的第一项步骤
向每一个信任我们的业主
传递关于家的温暖瞬间
从设计图纸到施工第一锤
钢筋水泥的空间
因为期待、用心、匠心
带着所有最美好的祝愿逐一落地
生成理想的家居生活
PART 04
金锤迎好运
be with dreamholders
寓意吉庆、喜悦“大业红”
融入每一个新家的开工仪式当中
代表着诚挚的祝福与贴心的服务
我们力求在细节中让客户
看见用心,看见良心
而不是华丽完美的说辞
PART 05
鲜花赠送
be with dreamholders
每一个施工前的准备
都是为了让每一个选择我们的客户
在略感不安的家装环境中
感到一丝放心、安心、舒心
能够在看到承诺的服务落地后
由心感到“嗯,选对了”!
感谢每一次信任与选择
遇见新家的美好
喜悦不仅停留在开工
更靠谱专业的服务
将始终贯穿装修点滴进程
以品质守护,以专业浇筑
打造高品质归属感安心之作
PART 06
案例赏析
be with dreamholders
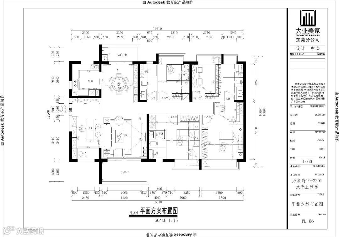
万象府
平面/效果图展示
本案设计师
设计师介绍
陈艳玲
副主任设计师
案例作品
鼎峰尚镜、金地风华、帝景中央、格兰名筑、富通圣堤雅、冠龙华府、光大江与城、江滨新城白鹭湾、金地格林小城、松湖雅苑、天骄御峰、天骄御品、新世纪领居、中熙君墅湾等……
设计理念
设计师源于生活的,生活因设计而改变!成就空间和谐,让设计物有所值,让细节缔造完美!坚持创意,创新,以人为本的设计理念。
本案设计师
梁卫宏
全案设计师
案例作品
案例作品星河传说,颐龙湾,华讯大宅,凯旋花园,国际公馆......
设计师介绍
时尚设计家最佳作9年新房大赛优秀设计师荣誉证书
设计理念
设计就是空间、色彩、设计回归本位
万科麓湖一楼
平面/效果图展示
万科麓湖负一楼
平面/效果图展示

