以简单舒适为基础
将优雅纳入空间,把精致融入生活
给人高品质、精致时尚
且不失温馨舒适的感觉

开放式的客餐厅,整体通透明亮。电视背景墙用了灰色纹理的白色大理石做铺贴,简洁时尚。没有采用常规的电视柜设计,而是用了地台式的设计,节约了空间。简易的沙发单人椅和沙发坐凳,搭配金属材质的装饰品,造型精致华丽的吊灯,让空间充满了时尚精致的气息。
『客厅』

美式轻奢会客厅,把古典风范与时尚精神相融合,揉入怡然的优雅调性,摒弃过于复杂的线条和装饰,展现出低调奢华的生活细节。
『卧室』


主卧则延续美式韵味的基调,美式与轻奢浓缩其中, 不需要繁琐的装潢和过多的家具,在装饰与布置中最大限度的体现空间与家具的整体协调。
『书房』
『休闲区』

将空间充分利用起来,打造一个娱乐放松的休闲区,让居家利用率更高。一天工作结束后,在这里可与家人一起玩玩游戏,无比惬意。
DREAMHOME
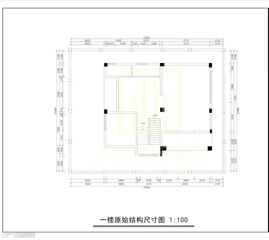
一层平面图
DREAMHOME
二层平面图
DREAMHOME
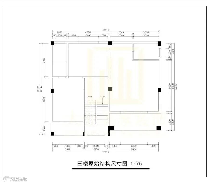
三层平面图
DREAMHOME
四层平面图
|项目概况|
项目名称|新晖苑
项目类型|全案设计
项目面积|560 ㎡
设计风格|美式轻奢风
主创设计|任锦潮
设计理念:
人可以改变环境,环境可以影响人,而设计则可以改变人和环境。
擅长风格:
现代简约,轻奢,新中式,法式极简
荣获奖项:
中国室内装饰协会注册设计师
部分作品:
嘉宏锦园、城南艺境、江滨新城白鹭湾、江南第一城、新世纪上河居、新世纪豪园、君逸名轩、香颂里、富通自在城、天安数码城、新世纪星城、海逸豪庭、格兰名筑、汇龙湾、世纪城、国际公馆、香榭里等等……

--



