品 质 · 温 暖 · 美 好
Temperature of Dreamhome
四面墙的意义是什么
是房子里面所包含的东西
房子保护着做梦的人
…
在新居开工中
愿以初心呵护、浇筑
家的安全感
生活的幸福感
PART 01
开工仪式
be with dreamholders
吉时吉日一起庆贺
2022年10月26日
万象府
9户府邸
开工大吉
新家开工大吉的每一项仪式
都是迈向未来崭新的一步
PART 02
礼炮响起 举杯相庆
be with dreamholders
礼炮鸣响的这一刻
生活开始有了新的盼头
胸腔中跳动的喜悦
是遇见美好的开始
PART 03
客户服务宣言
be with dreamholders
用富有仪式感的开工为开场
记录下开工的第一项步骤
向每一个信任我们的业主
传递关于家的温暖瞬间
从设计图纸到施工第一锤
钢筋水泥的空间
因为期待、用心、匠心
带着所有最美好的祝愿逐一落地
生成理想的家居生活
PART 04
金锤迎好运
be with dreamholders
寓意吉庆、喜悦“大业红”
融入每一个新家的开工仪式当中
代表着诚挚的祝福与贴心的服务
我们力求在细节中让客户
看见用心,看见良心
而不是华丽完美的说辞
PART 05
鲜花赠送
be with dreamholders
每一个施工前的准备
都是为了让每一个选择我们的客户
在略感不安的家装环境中
感到一丝放心、安心、舒心
能够在看到承诺的服务落地后
由心感到“嗯,选对了”!
感谢每一次信任与选择
遇见新家的美好
喜悦不仅停留在开工
更靠谱专业的服务
将始终贯穿装修点滴进程
以品质守护,以专业浇筑
打造高品质归属感安心之作
PART 06
案例赏析
be with dreamholders
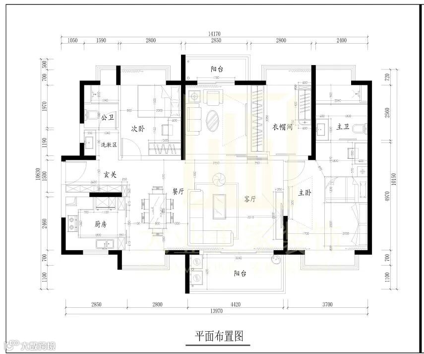
万象府
平面/效果图展示
本案设计师
邓为
主任设计师
案例作品
凯旋国际,碧桂园苹果,金地风华,海悦茗筑,尚峰公馆,天骄峰景,海御豪庭,艺镜水岸,海伦国际,信鸿澜岸,越秀金沙悦湖城,麻涌自建房等......
设计师介绍
中国室内装饰协会注册设计师
设计理念
人为的设计生活方式,是为了努力去创造一种更好的生活状态。
万象府
平面/效果图展示
本案设计师
陈锡强
设计总监
案例作品
森林湖、天骄景峰、愉景花园、天珑湾、鼎峰尚境、金域中央、国际公馆、景湖花园、保利红珊瑚、景湖春晓、鼎峰源著、丽水佳园、帝景中央、翡翠东望、巷尾花园、锦锈山河、龙泉豪苑、新世纪领居等……
设计师介绍
2017年荣获第七届中国国际空间设计大奖(中国建筑装饰设计奖)商品房/样板房空间方案类 优秀奖
设计作品在《房天下》等网络平台刊登
2016-2017年度,荣获新家杯-中国家居设计百强新锐青年设计师
2018年荣获第八届中国国际空间设计大赛-中国建筑装饰设计奖
设计理念
设计源于生活,生活因设计而改变。
万象府
平面/效果图展示
本案设计师
黄梦云
副主任设计师
案例作品
鼎峰尚镜、金地风华、帝景中央、格兰名筑、富通圣堤雅、冠龙华府、光大江与城、江滨新城白鹭湾、金地格林小城、松湖雅苑、天骄御峰、天骄御品、新世纪领居、中熙君墅湾等……
设计师介绍
中国室内装饰协会注册设计师
设计理念
设计房屋就是以舒适性住宅为主,坚持以创新的理念去设计。
万象府
平面/效果图展示
本案设计师
陈艳玲
主任设计师
案例作品
鼎峰尚镜、格兰名筑、景湖花园、天骄峰景、新世界花园湖景路、尚峰公馆、塞纳河畔、颐龙湾、大岭山自建房、君汇华庭、国际公馆、金域中央、丽江豪苑、巷尾花园、深圳平安好车等……
设计师介绍
中国室内装饰协会注册设计师
设计理念
设计师源于生活的,生活因设计而改变!成就空间和谐,让设计物有所值,让细节缔造完美!坚持创意,创新,以人为本的设计理念。

--



