品 质 · 温 暖 · 美 好
Temperature of Dreamhome
四面墙的意义是什么
是房子里面所包含的东西
房子保护着做梦的人
…
在新居开工中
愿以初心呵护、浇筑
家的安全感
生活的幸福感
PART 01
开工仪式
be with dreamholders
吉时吉日一起庆贺
2022年11月19日
皇庭峰景壹号邱先生、
皇庭峰景壹号李先生、吴小姐
万象府王先生
府邸
开工大吉
新家开工大吉的每一项仪式
都是迈向未来崭新的一步
PART 02
礼炮响起 举杯相庆
be with dreamholders
礼炮鸣响的这一刻
生活开始有了新的盼头
胸腔中跳动的喜悦
是遇见美好的开始
PART 03
客户服务宣言
be with dreamholders
用富有仪式感的开工为开场
记录下开工的第一项步骤
向每一个信任我们的业主
传递关于家的温暖瞬间
从设计图纸到施工第一锤
钢筋水泥的空间
因为期待、用心、匠心
带着所有最美好的祝愿逐一落地
生成理想的家居生活
PART 04
金锤迎好运
be with dreamholders
寓意吉庆、喜悦“大业红”
融入每一个新家的开工仪式当中
代表着诚挚的祝福与贴心的服务
我们力求在细节中让客户
看见用心,看见良心
而不是华丽完美的说辞
PART 05
鲜花赠送
be with dreamholders
每一个施工前的准备
都是为了让每一个选择我们的客户
在略感不安的家装环境中
感到一丝放心、安心、舒心
能够在看到承诺的服务落地后
由心感到“嗯,选对了”!
感谢每一次信任与选择
遇见新家的美好
喜悦不仅停留在开工
更靠谱专业的服务
将始终贯穿装修点滴进程
以品质守护,以专业浇筑
打造高品质归属感安心之作
PART 06
案例赏析
be with dreamholders
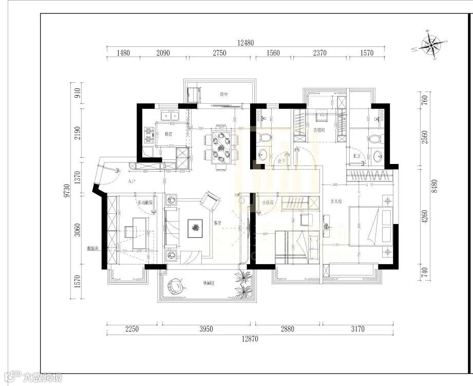
皇庭峰景
平面/效果图展示
皇庭峰景
平面/效果图展示
本案设计师
周加明
副主任设计师
案例作品
鼎峰尚镜、金地风华、帝景中央、格兰名筑、冠龙华府、颐龙湾、光大江与城、江滨新城白鹭湾、金地格林小城、松湖雅苑、凯旋国际、天骄御品、新世纪领居、中熙君墅湾等……
设计师介绍
中国室内装饰协会注册设计师
设计理念
设计源于生活,生活因设计而改变
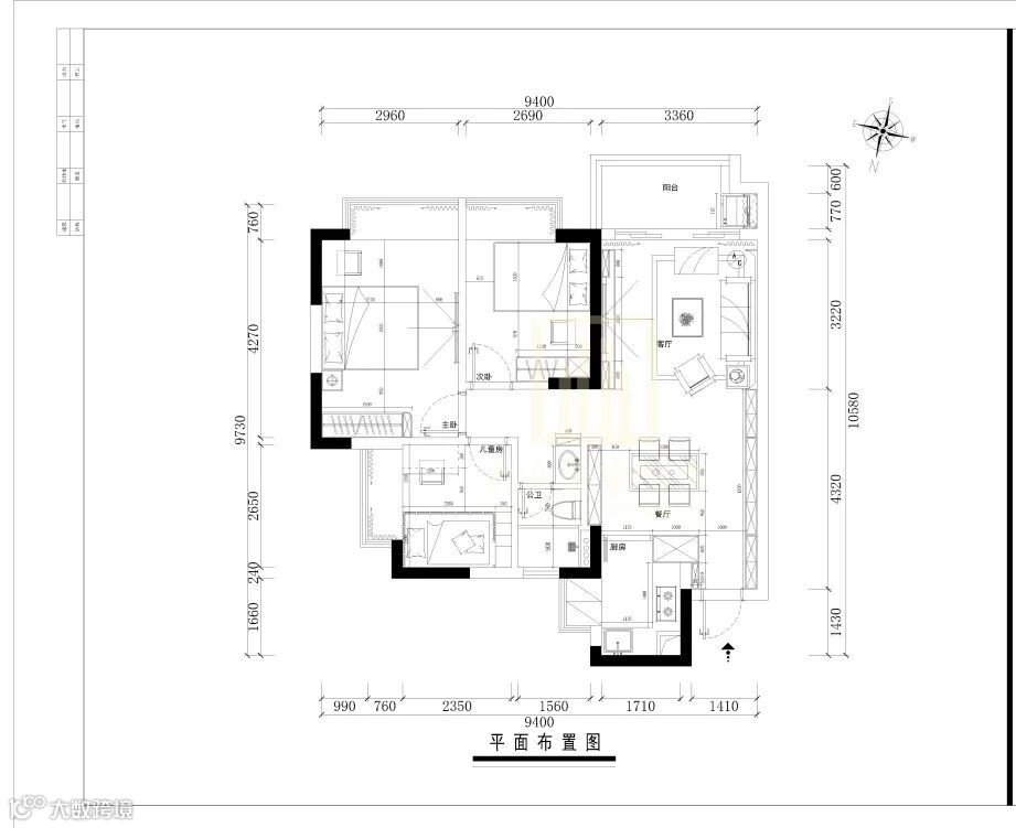
万象府
平面/效果图展示
本案设计师
黄梦云
副主任设计师
案例作品
鼎峰尚镜、金地风华、帝景中央、格兰名筑、富通圣堤雅、冠龙华府、光大江与城、江滨新城白鹭湾、金地格林小城、松湖雅苑、天骄御峰、天骄御品、新世纪领居、中熙君墅湾等……
设计师介绍
中国室内装饰协会注册设计师
设计理念
设计房屋就是以舒适性住宅为主,坚持以创新的理念去设计。
--



