华盾尚康
gdsunking
高端定制,质量第一,顾客至上,共创辉煌!

进门玄关这面墙做成黑板墙,延伸至厨房,实用又美观

转过玄关便看到开放式的客厅、餐厅区域

玄关以镂空的隔断兼做楼梯扶手

以吧台充当餐桌,也做为和客厅的空间隔断

吊顶区分了客厅和餐厨

楼梯下方的空间做成了收纳柜

儿童房墙面用隔板做实用性装饰

4米2的层高

楼梯之上的区域做成了开放式的书房

极简风的主卧

电视墙以组合收纳柜的形式呈现

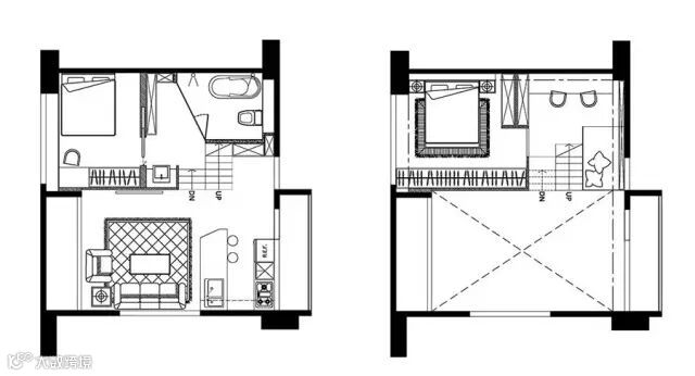
平面布置图

广州市尚康家具有限公司华盾尚康
gdsunking
高端定制,质量第一,顾客至上,共创辉煌!

进门玄关这面墙做成黑板墙,延伸至厨房,实用又美观

转过玄关便看到开放式的客厅、餐厅区域

玄关以镂空的隔断兼做楼梯扶手

以吧台充当餐桌,也做为和客厅的空间隔断

吊顶区分了客厅和餐厨

楼梯下方的空间做成了收纳柜

儿童房墙面用隔板做实用性装饰

4米2的层高

楼梯之上的区域做成了开放式的书房

极简风的主卧

电视墙以组合收纳柜的形式呈现

平面布置图
