
摘自公众号丨建筑安全技术
(1)建筑施工扣件式钢管外脚手架的搭设及施工管理,体现企业具有特色外脚手架形象及标准化施工能力,本标准依照国家和地方有关安全技术规范、编制了《建筑工程外脚手架搭设内标准》。
(2)本标准对外脚手架的立面形象、构造要求、搭设拆除、检查与验收、管理要求做出了具体陈述,并且对一些特殊部位的构造作法进行了细化,细化的部位主要包括:阳台处、飘窗处、外用电梯卸料平台处、电梯井及采光井内、建筑物阳角处等。
(3)本标准具体内容与国家、地方有关安全技术规范规定要求不符的,以国家、地方有关安全技术规范规定为准。
(1)钢管材质要求:钢管应采用国家标准GB/T13793或GB/T3091中规定的Q235普通钢管,型号宜采用Φ48.3×3.6mm(方案按Φ48×3.0mm计算),材料进场应提供产品合格证且进行验收,合格后方可投入使用。
(2)扣件进入施工现场应检查产品合格证,并应进行抽样复试,技术性能应符合国家标准《钢管脚手架扣件》的规定,扣件外观检查无裂纹,在螺栓拧紧力矩达到65N·m时,不得发生破坏。
(3)外架手架钢管必须进行防锈处理,除锈后刷一道防锈漆和两道面漆。
(4)木脚手板型号3000(6000)×200(250)×50,两端采用Φ1.6mm镀锌铁丝绑扎;钢筋网片式脚手架采用HPB235Φ6钢筋制作截面40mm间距,用Φ1.6mm镀锌铁丝固定在小横杆上。

(1)黄色油漆:脚手架立杆、大小横杆、纵横向扫地杆。
(2)红色油漆:连墙件。
(3)黄黑相间双色油漆:脚手架外侧防护栏杆、斜道防护栏杆、卸料平台防护栏杆。
(4)红白相间双色油漆:剪刀撑、横向斜撑、踢脚板、楼梯临边防护栏杆、施工电梯卸料平台临边防护栏杆。
(5)示意图颜色与文字叙述不一致的,以文字描述的颜色为准。

■防护栏杆示例图
(1)脚手架外侧防护必须使用合格的密目式安全网封闭。外架上应设置公司标志(“公司”横幅)和宣传标语。保证外架协调美观,体现企业特色。

■脚手架示例图
(1)架体阴阳转角处应设置4根立杆,大横杆应连通封闭。
(2)主节点处必须设置纵横向水平杆。
(3)立杆除顶层顶部外必须采用对接,大横杆在架体转角外可以搭接,剪刀撑必须搭接。
(4)剪刀撑、连墙件必须随外脚手架同步搭设、同步拆除。严禁后搭或先拆。



(1)落地式脚手架搭设高度不宜超过35m,高度在35~50m时必须采取卸荷措施,高度大于50m时必须采取卸荷措施并对专项方案进行专家论证。
(2)脚手架基础平整、夯实、混凝土硬化,基础应采用100mm厚C25混凝土硬化,立杆底部设置底座或垫板。垫板应采用长度不少于2跨、厚度不小于50mm、宽度不小于200mm的木垫板。
(3)落地式脚手架必须设置纵、横向扫地杆,纵向扫地杆宜采用直接扣件固定在紧靠纵向扫地杆下方的立杆上。当立杆基础不在同一高度时必须将高处的纵向扫地杆向低处延长两跨与立杆固定,高低差不应大于1m,紧边坡上方的立杆轴线道边坡的距离不小于500mm。

(4)脚手架基础应考虑周边设有排水措施,脚手架底座底面标高应高于室外自然地坪50mm,立杆基础外侧设置截面不小于200mm×200mm的排水沟,保证脚手架基础不积水。

■脚手架基础排水沟图

■脚手架基础剖面图

■ 钢底座示意图
(1)脚手架外侧满挂密目安全网,网目数不低于2000 目/100cm 2 ,网体竖向连接时采用网眼连接方式,每个网眼应用16#铁丝与钢管固定,网体横 向连接时采取搭接方式,搭接长度不得小于200mm。架体转角部位应设置木枋作内衬以保证架体转角处安全网线条美观。
(2)脚手架外侧自第二步起底部设180mm挡脚板,在高600mm与1200mm处各设同材质的防护栏杆一道。脚手架内侧形成临边的,则按脚手架外侧防护做法。
(3)脚手架外排立杆、大横杆表面刷黄色油漆,拦腰杆表面刷黄黑相间双色油漆,外立面每隔3层或9m设置一道200mm高警示带,固定于立杆外侧。警示带尺寸见图示,表面刷红白相间警示色油漆。

■挡脚板及防护栏杆立面图

■警示带示意图



(1)作业层必须满铺脚手板,脚手板离建筑物结构的距离不应大于150mm。
(2)落地架第二层、悬挑架(爬架)首层,中间层不超过10m且不超过三层满铺一道硬质隔断防护,并在两层硬防护的中间部位张挂水平兜网,水平兜网必须兜挂至建筑物结构。
(3)脚手架的内立杆距离体净距一般不大于200mm,如大于200mm的必须铺设平整牢固的站人片, 作业层脚手板与建筑物之间的空隙大于150mm 时应做全封闭,防止人员和物料坠落。


(1)连墙件表面应刷红色醒目油漆,便于检查和警示。
(2)脚手架必须采用刚性连墙件。
(3)连墙件应从底层第一步纵向水平杆处开始设置,当该处有困难时,应采用可靠措施固定。连墙件宜优先采用菱形布置,也可采用方形,矩形布置。
(4)连墙件应靠近主节点设置,偏离主节点的距离不应大于300mm
(5)连墙件的间距应根据设计计算规定,并应符合下表“连墙件布置的最大间距”的规定。
(6)一字型、开口型脚手架的两端必须设置连墙件,连墙件的垂直间距不应大于建筑物的层高,并不应大于4m(两步)。


(1)剪刀撑应从脚手架底部边角从下到上连续设置,剪刀撑表面刷红白相间警示色油漆。
(2)每道剪刀撑跨越立杆的根数应按下表的规定确定。每道剪刀撑宽度不应小于4跨,且不应小于6米,斜杆与地面的倾斜角宜45°~60°倾斜角宜45°~60°。
(3)24米以下的落地式外架,在架体外侧两端、转角及中间间隔不超过15米的立面上设置竖向连续剪刀撑。24米以上的落地式外架及所有悬挑架,在架体外侧整个立面搭设连续剪刀撑。
(4)剪刀撑杆件的接长应采用搭接,搭接长度不应小于1m,且不小于3个扣件坚固。
(5)剪刀撑斜杆应用旋转扣件固定在与之相交的横向水平杆的伸出端或立杆上,旋转扣件中心线至主节点的蹁不宜大于150mm。
(6)一字型、开口型双排架两断口必须设置横向斜撑,24m以上架体在架体拐角处及中间每六跨设置一道横向斜撑。
(7)横向斜撑应在同一节间,由底到顶呈“之”字型布置,斜撑交叉和内外大横杆相连到顶。





(1)人行道兼优质材料运输的斜道高度不大于6m时宜采用一字型,高度大于6m时宜采用之字形。
(2)运料斜道宽度不宜大于1.5m,坡度采用1:6,人行斜道宽度不宜小于1m,坡度宜采用1:3。
(3)拐弯处应设置平台,其宽度不应小于斜道宽度,斜道两侧及平台外围均应设置1.2m和0.6m高的双道防护栏杆及180mm挡脚板,防护栏杆表面刷黄黑警示色,挡脚板表面刷红白警示色。
(4)斜道宜附着外脚手架或建筑物设置,其各立面应设置剪刀撑,斜道外侧挂密目安全网封闭。
(5)斜道的基础与外脚手架基础一致,斜道的连墙件按照开口型脚手架要求设置。
(6)斜道应满铺脚手板,运料脚手架采用不少于40mm厚的木板,人行斜道可采用木板或毛竹片满铺,斜道还应设置防滑条,防滑条厚度为20~30mm,间距不大于0.3m,斜道上脚手板和防滑应保证稳定牢固。



12.1 楼梯临边防护
( 1)楼梯及休息平台临边处无可靠防护时应设置防护栏杆。应在1.2m、0.6m高处及底部设置三道防护栏杆,杆件内侧挂密目式安全立网
(2)防护设施宜定型化、工具化。
(3)立杆用预埋件或采用M12膨胀螺栓固定
12.2 塔吊操作平台及上人通道防护
(1)塔吊在附墙部位必须搭设附墙用操作平台,平台的面积应能满足使用要求,采用钢管搭设或定型化操作平台。
(2)附墙部位操作平台必须设置1.2m高防护栏杆并挂设安全网,栏杆内侧设置挡脚板,底部满铺脚手板。
(3)塔吊设置上人通道时,通道应满铺脚手板并固定牢靠,两侧防护栏杆不低于1.2m,栏杆内侧挂设安全网,底部安装180mm高踢脚板,并且只能在附着位置搭设。
(4)塔吊上人通道不得与外脚手架相连

12.3 施工电梯平台防护
(1)施工升降机楼层卸料平台搭设前必须编制专项施工方案,对搭设高度超过24m的,应采取措施进行卸荷。禁止立杆由底到顶连续通长设置。
(2)楼层卸料平台应单独搭设,严禁与外架连接。每层搭设高度不应小于2m,平台两侧均应设置2道防护栏杆,高1.2m,底部设置200mm高挡脚板,防护栏杆和挡脚板均刷红白相见警示漆,立杆内侧满挂安全密目网。楼层卸料平台板必须厚实牢固、铺设严密,应采用5cm厚木板或防滑钢板。
(3)施工电梯平台出口处安装1.8m高立开式常闭向内开启的金属防护门,宜采用工具式防护门。
(4)楼层卸料平台两扇防护门中间应用模板封闭,外刷蓝漆并设楼层标识。
12.4 安全通道防护棚
(1)建筑物的出入口必须设置安全通道防护棚,具备防砸、防雨、抗冲击功能。
(2)在吊装影响范围和建筑物坠落半径以内的通道、材料加工区、物料提升机进料口、外用电梯地面进料口及其他需要防止高空坠物的区域,必须设置防止穿透的双层 防护棚,双层防护棚(间距600mm),必须满铺能承受>10KPa 的均布静荷载的 材料( 50mm 厚木板或符合规定的其他材料)。
(3)安全通道棚正立面应设置安全标语及警示标志牌。
(4)安全通道内应设安全教育文化墙或安全教育宣传漫画,高度1- 2米,采用户外喷绘。
(5)安全通道棚立杆高出顶棚不宜小于700mm,在顶棚超高部分两侧张挂密目安全网,安全网设置在立杆内侧。
(6)安全通道两侧采用密目安全网封闭。
(7)车行安全通道,宽×高宜大于4000mm × 4000mm。
(8)人行安全通道,宽×高宜大于3500mm × 4000mm。



13.1 基本规定
(1)悬挑脚手架搭设前,必须编制专项施工方案,方案必须包含悬挑梁平面定位布置图。分段搭设高度不宜超过20m,超过20m应组织专家进行方案论证。
(2)悬挑脚手架的悬挑梁必须选用不小于16号的工字钢,悬挑梁的锚固端长度应不小于悬挑端长度的1.25倍,悬挑长度不应过长。
(3)悬挑梁锚环端应设置两道锚环(间距20cm),锚环直径16mm以上。每道钢梁端部设置φ14mm以上斜拉钢丝绳,上端吊环使用φ20mm圆钢预埋。
(4)工字钢、锚固螺杆、斜拉钢丝绳具体规格、型号除满足上述要求外还应依据方案及计算书最终确定。

(5)脚手架底部应按规范要求沿纵横方向设置扫地杆,悬挑梁上表面应加焊短钢筋以固定立杆,在横杆上方沿脚手架长度方向铺设木枋,并满铺模板进行防护。
(6)悬挑架所有外架立杆均必须坐在型钢梁上,阳角处悬挑梁宜按扇形(放射状)布置,转角附近立杆无法直接安装在悬挑型钢梁上时,应在悬挑梁上沿外架纵向铺设辅助型钢连梁(扁担梁),将外架立杆安装于辅助型钢梁上,不得存在吊脚杆(下部悬空)。
(7)外立面沿整个面搭设连续剪刀撑。
(8)悬挑架连墙件应按两步(每层)两跨设置。



13.2 型钢梁的固定
(1)型钢梁的固定:型钢梁与主体混凝土结构的固定可采用预埋螺栓固定、钢筋拉环锚固,不得采用扣件连接。
(2)当采用钢筋拉环锚固时,拉环应锚入楼板30d,并压在楼板下层钢筋下面,如不能保证钢筋的混凝土保护层厚度,也可以将拉环压在楼板下层钢筋上面,同时在拉环上部两侧各附加两根直径14-16mm的钢筋,并与楼板钢筋绑扎牢固,以确保拉环不会从混凝土楼板中拔出
(钢筋拉环禁止采用螺纹钢)。
(3)锚环在混凝土浇筑前进行预埋,螺杆丝扣用胶带进行保护,锚环处板厚小于120mm时锚脚处附加2Φ12,1m长钢筋。

13.3 悬挑架的防护
(1)挑架外侧必须采用合格的密目式安全网封闭围护,安全网用不小于18#铅丝张挂严密,且应将安全网挂在挑架立杆里侧,不得将安全网围在各杆件外侧。
(2)挑架与建筑物间距大于20cm时,应铺设站人片。除挑架外侧1.2m高防护栏杆和180mm高踢脚杆外,挑架里侧遇到临边时(如大开间窗、门洞等)时,也应进行相应的防护。
(3)悬挑式外脚手架底部(悬挑梁处)采用硬质防护(模板)封闭严密
硬质防护(模板)底面应涂黄黑相间油漆。
(4)挑架作业层和底层应采用合格的安全网或采取其他措施进行分段封闭式防护。

13.4 悬挑架的特殊部位做法
(1)吊篮脚手架采用厂家生产的定型产品,应有设计标准书、产品合格证及安装、使用、维护说明书等资料。
(2)吊篮应设置上行程限位装置。
(3)吊篮的每个吊点应设置2 根钢丝绳,安全钢丝绳应装有安全锁或相同作业的独立安全装置。在正常运行时,安全钢丝绳应顺利通过安全锁或相同作用的独立安全装置,安全绳应在有效标定期内使用,标定期不得大于一年。
(4)在正常工作状态下,吊篮悬挂机构的抗倾覆力矩与倾覆力矩的比值不得小于2。
(5)挑梁铆固要牢靠,上面配重要符合设计要求,要按设计或施工方案安装吊篮,升降设施要灵敏牢靠,并有自动保险装置。吊篮第一次组装后经载荷试验合格后,方可投入使用。

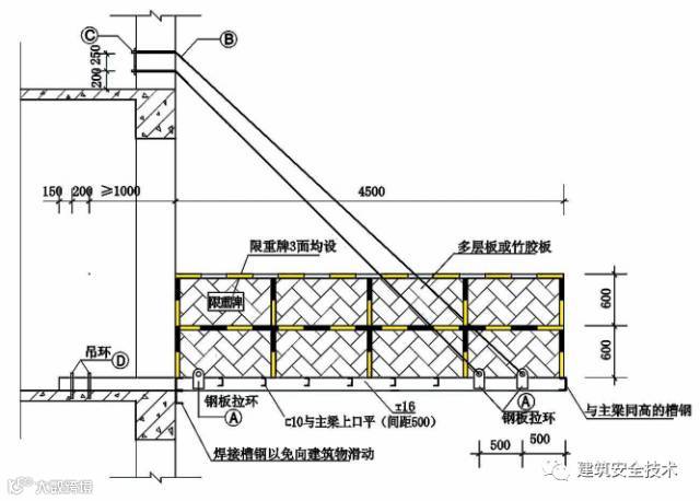
15.1 悬挑式卸料平台
(1)悬挑钢平台须经设计计算方可制作,须编制专项方案并按专项方案制作、安装使用。
(2)悬挑卸料平台额定载重量一般不得超过1t,有效载料面积一般不宜小于7㎡或者超过9㎡。
(3)卸料平台应采用型钢焊接成主框架,主挑梁型号不得小于18号槽钢(或16#工字钢),锚固端预埋ø20 U型环,不宜埋设在结构悬挑部位
(4)钢丝绳直径应根据计算确定且不小于ø21.5,平台两边各设前后两道独立斜拉钢丝绳,分别拉接在4个拉结点上,斜拉钢丝绳与平台间夹角应大于45°,绳卡数量、间距按照规范设置。




(5)卸料平台应独立设置,平台的搁支点和上部拉结点,必须牢固固定于建筑结构上,严禁设置在脚手架等施工设施上。
(6)卸料平台底部应用花纹钢板焊接固定,与外架之间的间隙也应封闭良好。(或平台上满铺厚度不小于5cm的木板或模板,且必须固定牢固。)平台两侧及前方用模板竖向封闭,防止杂物坠落。
(7)卸料平台两侧面设置固定的防护栏杆,其立杆与主挑梁焊接固定。防护栏杆高度不低于1.5m,下设180mm高挡脚板,平台两侧及前方应采用硬质材料封闭。
(8)防护栏杆表面刷黄黑相间油漆,踢脚板刷红白警示漆,间距300-400mm。


(9)卸料平台应挂设限载标志牌,严禁超载。平台前段可设置长度不小于1m的外挑部分,并挂设安全兜网,以转运较长钢管。
(10)卸料平台每次安装后均应进行验收,并作好记录。验收合格后挂验收合格牌,并悬挂限载标志牌。
此处为脚手架空档,使用时应张挂安全平网,并于平网上部铺设专用防滑脚手板,随楼层周转使用。
15.2 落地式卸料平台
(1)落地式卸料平台基础应事先进行夯实或硬化处理满足承载力要求,立杆底部应设置木垫板或钢底座,并加设纵横向扫地杆,平台沿圈应满设剪刀撑。
(2)落地式卸料平台搭设高度不应大于20m 。
(3)钢管扣件落地式卸料平台的立杆间距、步距及搭设高度要求通过计算来确定,符合脚手架规范要求,严禁与与外架和模板支撑架连接
(4)临边设防护栏杆,挂设安全警示、限载标志牌。平台板铺设严密,不留空隙。
(5)落地式卸料平台每次安装后均应进行验收,并作好记录。

16.1 搭设
(1)脚手架立杆搭设高度应超出作业层1.2m。
(2)脚手架立杆顶端栏杆应高出女儿墙上端1m,高出檐口上端1.5m
(3)单排脚手架搭设高度不超过 24m;双排脚手架搭设高度不宜超过50m,高度超过50m的双排脚手架,应采用双管立杆搭设或分段卸荷等措施。
(4)悬挑脚手架每段搭设高度不大于20m。
(5)脚手架开始搭设立杆时,应每隔6跨设置一根抛撑,直至连墙件安装稳定后,方可根据情况拆除。
(6)脚手架须配合施工进度搭设,一次搭设高度不应超过相邻连墙件以上两步。如果超过相邻连墙件以上两步,无法设置连墙件时,应采取撑拉固定等措施与建筑结构拉结。
16.2 脚手架拆除
(1)脚手架拆除施工过程中应划分作业区,周围设围栏和警戒标志,设专人指挥。禁止非脚手架作业人员进入安全警戒区域,如安全员或警戒员中途离场,不得施工。
(2)脚手架拆除作业必须由上而下逐层进行,严禁上下同时作业;连墙件必须随脚手架逐层拆除,严禁先将连墙件整层或数层拆除后再拆脚手架;分段拆除高差大于两步时,应增设连墙件加固。
(3)所有拆下的杆件和配件,必须随拆随用绳子捆绑好往下放,或用垂直运输机械往下吊运,严禁随手往下抛掷。运下来的杆件应随时码放整齐。
(1)外脚手架、工具式脚手架、卸料平台等由总监工程师、项目经理组织,方案编制人、技术负责人、安全员、搭设班组参加验收。验收合格后,并挂验收合格牌(搭设部位、搭设人、验收人、验收日期、验收合格标示),方可使用。
(2)脚手架挂牌实行两种颜色。蓝色表示脚手架已经过检查且符合设计要求,可以使用。 红色表示脚手架未搭设完成或不合格,不得使用;另外,在特殊情况下,如天气原因等,禁止攀爬,也使用该牌。
(1)架体搭设前,项目应编制专项施工方案并报上级审批。项目总工程师应组织方案交底并做好交底记录,现场作业人员应严格按方案执行。
(2)从事建筑现场钢管脚手架搭设的分包单位,必须具备建设行政主管部门颁发的《脚手架作业分包企业资质》和《安全生产许可证》,严禁超越资质许可范围承接业务或进行资质转借、挂靠等违法行为。
(3)脚手架安装与拆除人员必须是经考核合格的专业架子工。架子工应持证上岗。
(4)搭设脚手架人员必须戴安全帽、系安全带、穿防滑鞋。
(5)严格控制施工荷载,脚手板不得集中堆料,结构阶段施工荷载不大于3KN/㎡,装修阶段施工荷载不大于2KN/㎡。


(6)脚手架使用期间,严禁拆除主节点处的纵、横向水平杆,纵、横向扫地杆,连墙件。
(7)严禁使用脚手架作为起吊重物的承力点。严禁将缆风绳、泵送混凝土输送管、电缆等设施、设备固定在施工用脚手架上。
(8)当有六级以上强风、浓雾、雨或雪天气时应停止脚手架搭设与拆除作业。雨、雪后上架作业应有防滑措施,并应扫除积雪。
(9)因施工需要临时拆除安全网时,作业完成后应及时恢复,并经检查后方可使用。


