
21世纪,什么都要快
网购要快递,吃饭要快餐
现在连建筑都能玩速成了
不过此速成并不影响质量

预制装配式建筑用预制构件在工地装配而成。有速度快、节约劳动力、提高建筑质量、减少气候条件制约等等优势。
除了住宅、公共建筑等等,居然连酒店也来插一脚。
在引人入胜的风景区建起一所舒适便宜的住宅。
只!要!八!小!时!


都知道预制建筑快捷省时,
但8小时还真是远超心理预期。
这岂不是前天晚上选个地址预定酒店,
第二天酒店已经凭空拔地而起了?


不止快,酒店设备基本保证了一个舒适的环境。
原木、铁件、玻璃几种材料打造简约现代风格。
建造耗时极短,但对细节和居住体验的要求并没有放松。


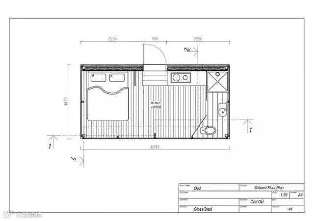
18㎡的面积里,包括定制的床、书桌椅、洗手台、马桶、淋浴室,满足行程中的基本需求。
包括定制卧床、自热地板、Bose音响系统、可调节灯光系统。而温度、灯光、门锁等条件,都可通过遥控调适。



大面积落地窗模糊了内外界限,让住客充分融入户外美景。
在不同地区,统一生产的预制建筑如何融入当地景色?
他们用镜子来解决这个问题。
反射周遭景物的镜像,酒店轻松融入当地,成为一个奇妙的反射物。
甚至给景观带来一点奇妙感。


即使再荒无人烟的地方,只要能通车,就能迅速在八小时内建起酒店,为游客提供住宿。

预制装配式好处多多,但由于技术尚未成熟,在国内还不多见,但在国外许多地区,它已经是作为建造业重大改革而被广泛采用。
▎预制建筑能做到:
1)不受现浇混凝土的限制
2)混凝土外观质量优良
3)实现复杂的外观造型
4)容易与钢构件结合
5)免防火施工、免打底粉光、免搭架外装修,整体工期速度比钢结构快。
6)预制外墙板表面可以做各种面饰处理
7)工地环保
8)预制夹心保温外墙板容易实现,不会有外保温易脱落及内保温被破坏的缺点。
9)预制构件厂机动性高,可以方便生产构件。
10)相对采用现浇工地需使用大量工人而言,预制装配式建筑现场用工较少。
装配式住宅▼



在树林、沙漠、草地、湖面、乃至北京老胡同里,预制建筑都能派上用场,适用面相当广。



在国外,预制建筑能为很多公共性建筑降低成本,如社会保障住房、学校、体育场等等。


预制装配式建筑室内▼



最后和大家分享一个预制混凝土建筑的动画视频,感兴趣可以看下噢▼
本文来源:设计联,如有侵权请联系我们,我们将第一时间做出处理


