

福
道
居
推
荐
福道居推荐中南国际眼镜城公寓
左右滑动查看更多,点击查看大图。
- 城南腹地 商业住宅 -
雨花区经济开发区作为长沙市最有升值潜力的城市副中心之一,这里汇聚着比亚迪等3000余家知名企业进驻,构建起千亿级产业集群,汇聚磅礴的精英人潮,未来的价值不可估量!
中伟公馆位处长沙城南板块核“芯”腹地,坐拥每年千万级人口流量红利的最大辐射,随着产业、人才、资源的不断涌入,成为长株潭发展的重要桥头堡!
一、中南国际眼镜城位置
中南国际眼镜城紧邻长沙南北主干道万家丽路,地处环保科技园,核心位置,20分钟可以到达高铁南站,5分钟到高速入口,距地铁5号线及7号线约500m,距地铁1号线仅5分钟车程。项目交通配套:环保科技园核心位置,交通四通八达,20分钟可到达高铁南站,项目距离地铁5号线环保大道站仅500m,距地铁一号线仅5分钟车程。
三纵+三横”+3地铁+3高铁+1城铁+多高速:
“三纵”:以万家丽路和汇金路为主,金海路为辅,实现对中心城区的纵向通达;
“三横”:以万家丽路与绕城高速为主,环保东路为辅,实现对河西及地级市的快速通达距高速入口5分钟,可换京港澳高速、沪昆高速、长张、长浏高速等;
长沙地铁1号线、5号线、7号线;渝长厦高铁、武广高铁、沪昆高铁三铁交汇;长株潭城际轻轨,半小时畅达株洲湘潭;公交:15、120、141、212、806、810、等多条公交线路通达全城各大核心区域。
二、中南国际眼镜城信息
● 项目基本信息
项目位置:万家丽路和振华路交汇处正南方
容积率:4.60
绿化率:34.58%
装修情况:精装
物业费:2.5元/㎡
项目在售:9#10#36-70㎡商业住宅
● 未来前景
中南国际眼镜批发城所处雨花区环保科技园内,作为长沙最重要的新能源、高科技、汽车制造工业区城市副中心之一,承载了这几年长沙的主要发展方向。
板块内的立体交通承接大长沙都市圈发展重心。随着区域内装备制造、科技研发、生物医药、食品制造、电子信息的不断的完善,科创智谷所在的雨花经开区已有超800余家高新名企云集,导入产业高新人才超15万,持续引擎区域未来发展新形态。
其中,凭借全球最大的新能源汽车生产基地及湖南省机器人产业集聚区,雨花经开区已成为全省工业转型升级的重要载体及长沙落实”中国制造2025“战略的房租码头。
● 全优配套
政务配套:省政府、省科技厅、省文化厅、省工商局等三十多个省厅级直属机关距离项目5公里范围内,政务办公便利快捷,同时是行政衍生类企业的最佳选择地。还有湖南省唯一地理信息产业园将落地暮云镇,目前产值200亿,2021年预计产值达到2000亿,不同类型产业的集聚,更利于片区以及产业的共同发展。南城已成为长沙最具投资潜力升值空间的核心区域。
商业配套:周边超50万方的商业集群,就有规划商业综合体,集知名超市、百货、影院于一体。5分钟的行程内有友阿奥特莱斯、德思勤商业广场、通程商业广场、步步高商业广场等大型商业mall。
商务配套:三馆一中心”和周边各大五星品牌酒店集群(豪布斯卡酒店、小天鹅戴斯酒店,西雅国际酒店、项目五星品牌丽呈酒店(建设中)等),高度集中了城市的经济、科技、文化、旅游作为城市的核心配套,还具备金融、贸易、服务、展览、会议、咨询等多种功能,配备完善的市政交通与通讯条件,共同形成长沙的“城市会客厅”!
● 名校环绕
项目周边丰富学校资源,其中有长郡雨外附小、沙子塘雨鑫小学、砂子塘嘉和小学、长郡雨外洪塘小学、新湘小学、青雅小学、怡雅小学、长郡外国语学校、黎托中学、金海中学、怡雅中学等中小学。长沙理工大学、商贸旅游职业学院、汽车工业学院、长沙财经学院等大学。
● 黄金枢纽
项目地处长沙市雨花区环保科技园板块,万家丽路和振华路交汇处正南方。项目北临万家丽路,东靠省振华路,西接金海路,南为金井小区为实现财富自由提速。
1机场+3高铁+3高速+1长株潭城轨+3地铁
3横3纵立体交通网络”步行5分钟即可到在建的地铁5号线延长线,环保大道站,地铁1号线在中信新城站、7号线(在建)韶山南路站实现零距离换乘,通达全城。20分钟可达高铁南站,20分钟即可到达黄花机场,乘坐长株潭城际轻轨, 1个小时内直达3+5城市群。
三、中南国际眼镜城优势
|
|
地铁口、超40万方的商业集群 项目周边由中南国际眼镜城、绿地新都会,云冷一号、中建璟和城、总部基地、步步高广场、旭辉即将开发的雨鑫广场限价10900元/平毛坯项目的综合体形成的商业集群,将会成为区域内的商业中心,吸引周边近10万人的消费人群。 中南国际眼镜城周边有旭辉雨鑫广场、绿地新都会、云冷一号、步步广场、总部基地等大型商业中心,组成超40万方商业集群,丰富的商业业态,满足业主楼下购物、娱乐休闲需求。 |
|
|
中南五省眼镜之都 中南国际眼镜城自建约10万方高端眼镜专业市场,涵盖眼镜批发/零售,眼睛康复医疗、电商、五星品牌酒店等丰富业态,为区域未来的产业集群打造起一个绝佳的商务载体,大量企业品牌也已相继签约入驻,商圈成熟。 一街之隔的雨金广场,3公里内的步步商、友阿、中信广场等生活配套齐全,成为巨量人流的入口,保障商业住宅的升值未来! 中伟集团多年产业地产开发经验打造中南五省专业眼镜产业集群中南五省眼镜集散批发商贸中心集展、贸、储、运、电商、批发零售、旅游”等等功能于一体配套电商、物流、仓储平台。 商户商户自购自营,流水以“亿”为单位 ;提供“眼镜零售/批发+眼镜健康医疗+文化体验+商务休闲”全套服务,以及“电商、物流、仓储”三大产业运营。本公寓将入驻依附于眼镜、健康医疗、物流以及区域内的科技等下游产业。 |
|
|
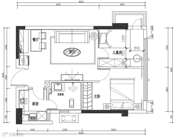
长沙首个商业住宅 建筑面积约36-70㎡两房/三房的商业住宅,可落户、学区房、带燃气。建筑面积约34-69㎡酒店包租精装公寓及SOHO百变LOFT,低总价门槛,不限购,成为置业人群低门槛置业的核心资产。 带燃气、可落户、学区房的两房与三房全明户型,独立带窗厨卫,平层酒店包租精装公寓,15年可实现纯租金回本,多种面积选择,置业绝佳优选。复式公寓做两层使用,高空间利用率,自住投资皆可,轻松置业高枕无忧。 |
四、中南国际眼镜城总结
整体来看,中南国际眼镜城位于雨花区万家丽南路与振华路交汇处,总占地超过50000方,是眼镜专业市场。项目周边生活配套较全,不过大型商业配套已出规模。项目目前在售产品为商业公寓,不限购不限贷,对于想要在长株潭融城片区投资的小伙伴们来说,这里还是值得考虑的。
关注福道居地产
扫码进入小程序

