达拉亮中心---老中国城 新地标
达拉亮商业中心于老中国城--华人财富中心,由老挝达拉亮商业集团在万象老中国城原址升级改造,一期定位以甲级写字楼(精装修)、酒店式公寓、轻奢品牌购物中心、餐饮娱乐休闲中心等一站式理念规划,继承并发扬中国城的辉煌历史,打造万象市新的繁华中心。

--项目全景图--

--项目俯瞰图--

酒店式公寓楼---热销中
层数:13层
户数:333套
户型:A户型43㎡
均价:1380美元/㎡
景观:湄公河景、城市全景
装修:毛坯(由酒店管理公司统一代租装修管理运营)
产权:50年(用护照即可办理房产证)
朝向:南北
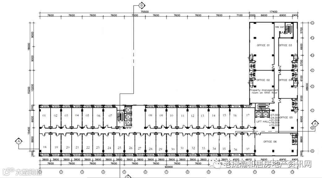
--公寓楼平面布置图--

--公寓楼户型图--


--公寓楼大厅--

--公寓楼配套--

--空中健身房--

--空中泳池--

财富热线:
公司名称:老挝瀚和居房地产管理咨询有限公司
联系人:黄剑宗
电话号码:+85620-59133218
微信号:hjzabc1985
微信订阅号:Hanheju--dichan
公司网站:www.laohanheju.com
邮箱:kevenhuang89@gmail.com

注:本项目最终解释权归开发商所有,广告中相关参数、图片不作邀约承诺,最终以实际购房协议为准。

