
西园小学边上,50中学校旁边,房企“必争之地”!
一直以来,优质资源聚集的老城区土地都是寸土寸金,为了得到这类地块,房企多是大打出手,竞争激烈。今天就让我们来看一块位于城市中心,周边的配套资源让人羡慕的不得了的地块,期待一下这宗地块出让会不会在土拍市场引起一片争抢。
NO.1丨壹
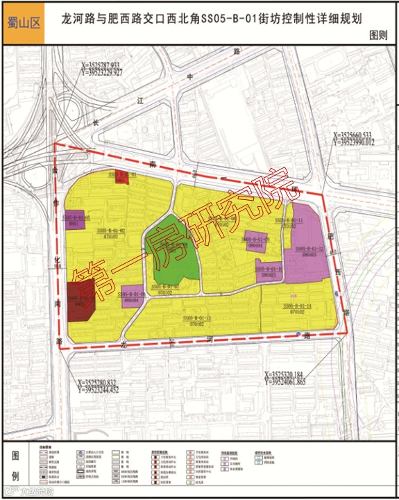
地块简介
2022年9月20日,合肥自然资源和规划局公示了蜀山区的一块区域的控制性详细规划,该区域位于龙河路和肥西路交口的西北角,也就是城市的核心区域——三里庵。这里既聚集了众多优秀的高等学府,如安徽医科大学、安徽中医药大学、安徽合肥技师学院等等,还有官亭路、国购广场、之心城等从低到高能级的商业区域,这里可以说是生活、购物、办公、求学全部满足需求。
而从现状来看,这里是安徽省测绘局及其宿舍所在地。但目之所及,测绘局大楼及宿舍楼也比较老旧,于是在2021年的时候,蜀山区政府就已经有相关部门人员来实地调研这边的拆迁事宜,力争提升这里的居住条件和舒适度。
NO.2丨贰
地块周边价格
这个区域基本没有什么在售的楼盘,距离地块1公里的意禾佶第仅剩8套房源,均价在3万/平左右,而不过查看二手房源的话,周边价格均在3.5-4万/平左右,所以明显可见这里的二手房价格倒挂。目前这块地数据是面积37.7亩,容积率2.5,这个容积率不低了,可以预测出未来这个项目应该是部分房源用来安置,部分用来出售,而出售的价格显然不会低于3万/平。
NO.3丨叁
总结


