

在合肥市“十四五”规划的宏伟蓝图下,“一区四级”中心体系正式确立,东部新中心作为合肥的四大城市主中心之一,正以崭新的姿态崛起于合肥的东方。这里,不仅是合肥东部崛起的新引擎,更是合肥新兴的增长极。与政务、滨湖、主城芯并肩,东部新中心正以虹吸效应汇聚商业、公园、交通、文化等优质资源,成为城东发展的璀璨高地。
在这片充满活力与潜力的土地上,四川邦泰·悦九章作为东新正核的封面之作,以计容新规项目引领未来,为城市精英打造鼎配生活。


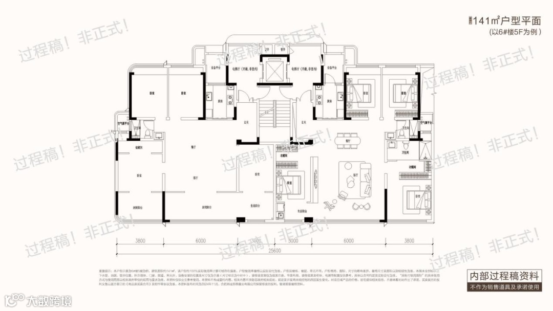
四川邦泰悦九章,位于瑶海区东部新中心核心地段,旌德路以南、雨山路以东,交通便利且紧邻地铁6号线市儿童医院站,总占地约56亩,规划有13栋纯住宅楼,包括2栋洋房和11栋小高层,建筑面积在113至141平方米之间,总价在177-294万元/套。
作为板块内2024年第一批遵循新规设计的户型产品,户型可使用率高达93%-100%,确保居住舒适度。
四川邦泰是一家实力稳健的房地产开发企业,拥有中国房地产开发企业级资质,管理面积超万方,连续多年蝉联中国房地产企业销售百强榜。这样的实力背景,为四川邦泰在合肥东部新中心打造的悦九章项目提供了坚实的保障。在四川邦泰的精心规划和打造下,成为了集高品质住宅、优质教育资源、便捷交通网络和完善生活配套于一体的理想居住社区。

四川邦泰悦九章项目坐拥一横三纵三轨的立体交通网络,通过郎溪路、裕溪路双高架接驳,以及东二环路、广德路的快速通道,轻松实现全城极速通达,同时紧邻在建中的地铁6号线市儿童医院站,直线距离仅约100米。
项目位于东部新中心的核心区域,周边教育资源丰富,毗邻和平路小学新本部与三十八中新校,助力孩子赢在起跑线。
此外,项目周边生活配套完善,5公里范围内即可直达瑶海万达、保利广场等商圈,合肥市儿童医院新区、市青少年活动中心、市博物馆等公共设施环伺,为居民带来便捷舒适的生活体验。

项目以小面积、低门槛为特色,建面约113㎡的三房小高层和建面约130㎡的四房小高层,同时打造了约1.8的低密度社区,户户享有类独立采光前室(除1F户型外),由四川邦泰物业服务有限公司合肥分公司提供专业服务,为居民带来超舒适的居住体验。
项目提供了建面约113㎡三房、130㎡四房小高以及141㎡洋房四房等多种户型选择,户型使用率高达约93%-100%,让业主在有限的空间内享受到更多的舒适与便利。



当前的合肥东部新中心在自然环境方面焕然一新,裕溪路、和平路、龙岗路、幸福路沿线的绿化提升工程已超过22万平方米,成功打造了郎溪路街头游园、滨河公园、青年创意田园一、二期、龙栖地湿地公园等多个项目,使得公园覆盖率大幅提升,绿地空间格局初步形成。
特别是南淝河滨河公园、青年创意田园以及在建中的高炉数字公园,为居民提供了更多休闲娱乐的好去处,进一步提升了区域的生活品质。

购房返现不容错过,速看。
目前,四川邦泰悦九章可领取大额核销券,满足首次到访等条件,购房返现2万元/套(税前),助您轻松拥有理想家园。领取后,扫码添加合肥楼市专属购房顾问,我们的工作人员会联系您再向项目进行报备登记,报备后免费带你去看房,不收取任何中介费用。在此之前,千万要记住,不要自己去售楼部,否则,就与购房返现无缘了。
2.房企开发商不同项目、业态、产品核销券领取后不可混用。
3.领取核销券的用户,必须由开发企业认定为首次到访客户。确认满足①为无营销中心来访②无来电咨询③明确未录入开发企业内部系统④无其他中介机构介入等条件后核销券方可生效。(如果购房合同信息有其他人,必须同样满足本条件)
4.客户必须按照与本平台约定时间到访开发商项目,否则核销券失效。
5.领取核销券的用户,登记信息必须与购房合同一致,否则不能使用。
6.核销券结算方式:在用户与开发商完成签约,平台确认本核销券核销成功后,开发商与本平台结款后发放。
7.核销券不得转让、出售或以其他方式出售,一套商品房的购房合同仅可使用一张。
9.在合肥楼市公众平台领取、核销核销券,判定用户用券资格等方面,公司享有对本次活动相关方面的最终解释权。

1、本文为合肥楼市公众平台原创作品,文章内容、图片使用权归属第一房;
2、 未经第一房公司授权,不得以任何方式加以使用,包括但不限于转载、摘编、复制或建立镜像等,违者必究。
3、统计数据来源于第一房研究院AI楼市指数系统,任何机构不能引用,如果引用请私信留言征求同意后方可引用。
