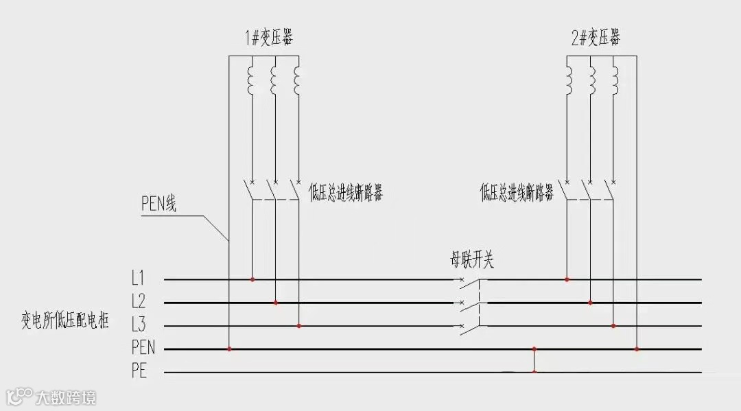
10/0.4kV变电所的接地怎么设计呢?特别对应多电源配电系统,民用建筑电气设计较常碰到的变电所主接线是两台变压器在低压配电柜中设置母线联络开关的方式,其主接线如下图:
变电所电气主接线
目前有些变电所设计图纸对变电所的接地方式做法并未交待清楚,因此,下面我就针对这种主接线来分析一下其接地方式的设计。
正确的做法是由变压器中性点引出的PEN线需绝缘,并在低压配电柜内仅一点与PE母排连接而实现系统接地(《交流电气装置的接地设计规范》GB/T 50065-2011 第7.1.2条也有此要求)。为什么只能一点接地呢?因为如果不是一点接地,则会产生杂散电流,下面通过以下三种主接线的接地方式来分析一下杂散电流是如何产生的。
1. 两台变压器中性点引出绝缘PEN线在低压配电柜多点接地(接地方式一)
通过以上接线图可知,在接地方式一中,用户配电箱的返回电流会在变电所低压配电柜的PEN母排和PE线母排上分两个路径返回变压器的中性点,其中蓝色箭头所示的就是杂散电流。
2. 两台变压器
通过以上接线图可知,在接地方式二中,用户配电箱的返回电流会在变电所低压配电柜的N线和PE线上分两个路径返回变压器的中性点,其中蓝色箭头所示的就是杂散电流。
以上两种接地方式都是因为存在变压器中性点或PEN母排多点接地而产生的杂散电流,那么如何消除这种杂散电流呢,可以是靠PEN母排的一点接地来实现(见下面的接地方式三),以下通过PEN母排在低压配电柜内的一点接地主接线图来看看会不会产生杂散电流。
3. 两台变压器
通过以上接线图可知,在接地方式三中,用户配电箱的返回电流会在变电所低压配电柜只存在一个路径返回变压器的中性点,就是图中红色箭头所示的路径,不会杂散电流。
以上三种接地方式中,低压总进线开关和母联开关均采用三级开关,有人提议何不采用四级开关,就可以切断产生杂散电流的路由;对于接地方式一和接地方式三,是不能采用四级开关的,按IEC标准PEN线是不能断开的,即PEN线是严禁插入开关触头的,故接地方式一和接地方式三中只能采用三级开关;对于接地方式二,若采用四级开关,虽然可以切断产生杂散电流的路由,但是会增加“断零”的风险,亦会增加项目投资,因此采用四级开关也是不可取的。
在设计中应避免杂散电流的产生,因其可以感应出杂散电磁场,会干扰信息技术设备的正常工作;杂散电流还可能因通过不正式通路导电而打火,引燃附近的可燃物;如果是通过大地返回电源中性点的杂散电流,还可能形成对地下钢筋和金属管道的电化学腐蚀。
因此,通过以上三种接地方式的分析,在10/0.4kV变电所的接地设计中,多电源配电应采用以上接地方式三中的接地做法,即变压器中性点引出的PEN线需绝缘,并在低压配电柜内的一点与接地的PE母排连接而实现系统接地,这样可以有效地避免杂散电流的产生。
免责声明:本文来自网络,版权归原作者所有,如涉及版权问题,请及时与我们联系删除,谢谢


