

今天推荐给大家的是常州豪郡@万博装饰的设计师虞辉的作品--牛塘新园
设计师:虞辉
职位:高级设计师
部门:常州豪郡装饰工程有限公司-设计部
设计理念:绿色设计 自然设计
擅长风格:欧式 简美 现代 新中式
主要作品:《龙湖香醍漫步》《华润国际》《玉兰广场》《国宾一号》《牛塘新园》《星河国际》《绿地世纪城》《上书房》《外滩一号》《龙湖花千树》 《白金汉宫》 《新城域》《金美林》《天逸城》《和平国际》 《阳光龙庭》 《绿都万和城》 《泰盈八千里》《香缇半岛》《御城》《嘉禾尚郡》等等

案例详情:
小区:牛塘新园
面积:110
风格:简欧
设计师:虞辉
施工单位:豪郡老鲁施工团队
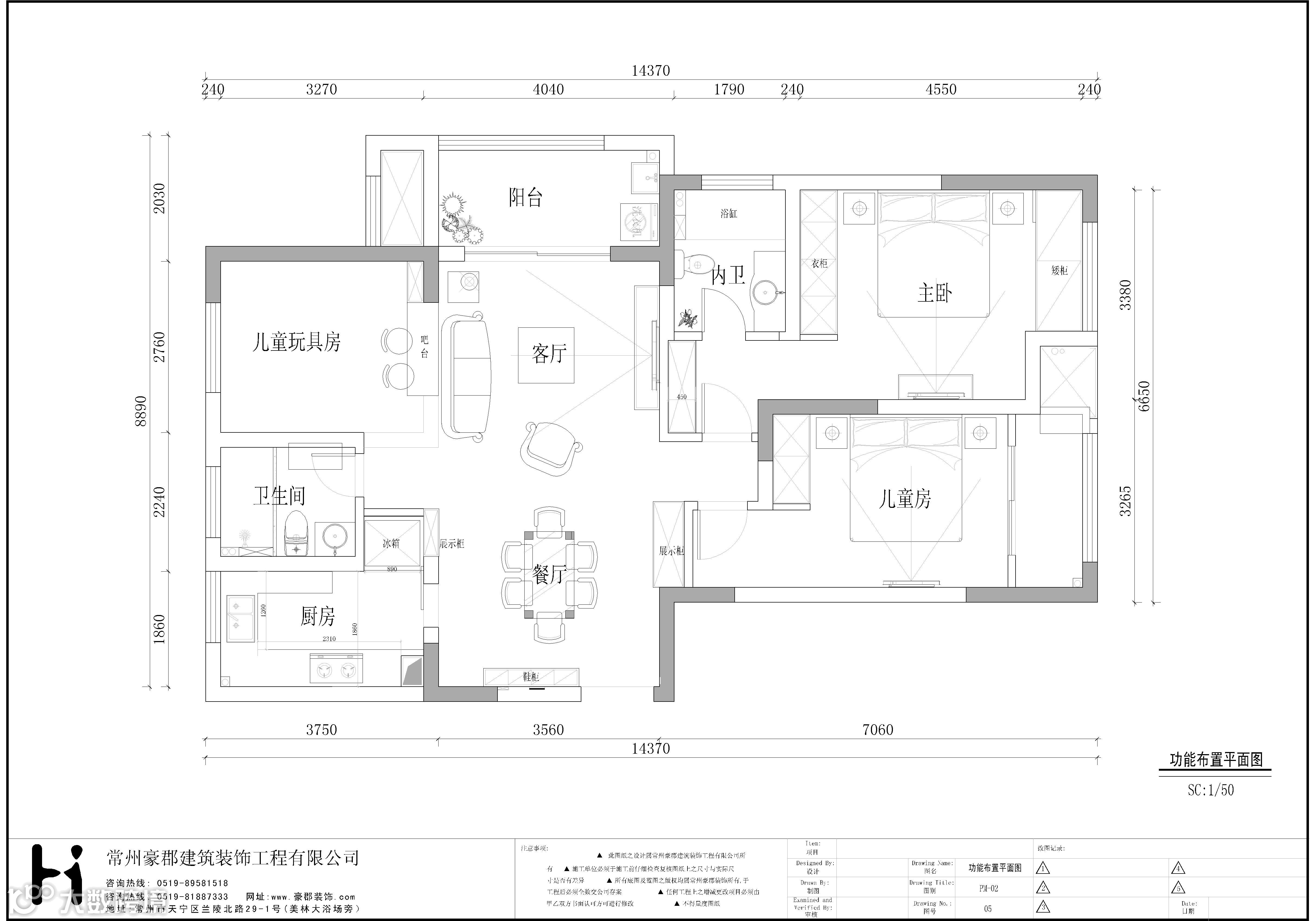
平面图

效果图


不期而遇的雨总是很美。对于一个喜欢雨的人来说,它的到来总会是一份意外的惊喜。雨后的天空更是娇柔美丽,一望无际的乳白色,像是生日时得到的可人的奶酪,其间偶尔镶嵌着淡颜色的奶油,散发出诱人且沁人心扉的清新味道,让人沉醉其中。

