
纤维水泥板原料中的水泥与硅质材料一起经蒸压反应,已非传统意义上的水泥板,它继承了水泥的防水防腐优点,又克服了普通水泥制品易干燥收缩的缺点;同时板材不含石棉等有害物质,是一种性能卓越、适用面广的新型建材。
产品优点:

⑴绿色环保:100%不含石棉、苯及甲醛等有害物质,使用过程中不产生有毒气体或辐射。绿色环保、安全健康!
⑵防火阻燃:板材属A1级不燃材料,不会燃烧,即使在火灾中也不会产生有毒烟雾,无火焰传递。且导热系数低,隔热性能好!
⑶防水防潮:板材性能稳定,湿涨率、干缩率低,即使在露天或潮湿地区也具有良好的防水、防潮、防霜冻性能。
⑷保温隔热:板材使用高标号水泥加植物纤维结构,与聚氨酯板等复合形成的一体化板,隔热性能优势显著,大大降低建筑能耗。
⑸防腐防蛀:用料讲究、工艺先进,使得板材抗老化、抗风化、耐久性能好,不会霉变腐烂,各种虫蚁对它也无能为力。
⑹隔音吸音:板材隔声性能好,可与其他吸音材料复合做成满足各类隔声要求的墙体或屏障等。
⑺抗震性好:用该板材作隔墙,重量仅为同等厚度砖墙的1/15(可有效减少建筑造价),有利于结构抗震。
⑻轻质高强:板材重量较轻、强度较高、韧性较好,薄板甚至可以做弧形包覆,易于施工和搬运,不易破损。
⑼耐候性好:高密度板经万吨压机致密,产品的干缩湿涨性能及强度大大提高,具有优异的耐候性,使用期限长。
⑽施工便捷:板材通常干施工,快捷方便、不必抹灰,可以直接喷涂涂料;易于钻孔、刨边、锯割等二次加工。
产品应用范围:

绿色环保、防火阻燃、防水防潮、防腐防蛀、隔音吸音、轻质高强、施工便捷和耐候性好等卓越性能使得纤维水泥板及其后加工延伸产品适用于建筑装饰等诸多领域:外墙保温装饰系统、隔墙(防火、隔音等)系统、吊顶系统、楼板系统、墙材(板材)衬板系统及广告牌、管道包覆、家具隔板等领域。
产品应用:
(一) 轻钢龙骨隔墙系统应用
1 隔墙应用介绍
纤维水泥板轻钢龙骨隔墙是由纤维水泥板、轻钢龙骨、通用配件及其他功能材料组成的非承重体系,可以满足轻质、环保、高强、防火、隔音及增加使用空间等要求,是目前市场上较为理想和推崇的隔墙应用方法。

2 隔墙系统应用指南
根据不同使用部位及功能,应慎重考虑选用相应的纤维水泥板、轻钢龙骨及墙体构造。
2.1 板材的选择
普通建筑龙骨两侧各钉一层中密度纤维水泥板时,板厚应≥8mm,对易受撞击部位板厚宜采用9mm或12mm;高密度板应≥6mm,对易受撞击部位板厚宜≥8mm。如用作中、高档建筑板厚则应相应提高1~2mm。
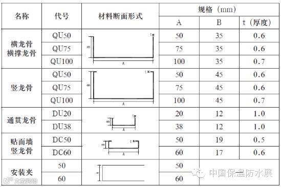
2.2 隔墙龙骨及配件规格


2.3 龙骨的选择
隔墙系统的设计,应考虑墙体的高度、长度、建筑物类型及需要暗设在墙体内的管道,以便选择宽度适合的龙骨。隔墙限制高度主要决定于轻钢龙骨的强度和刚度。
当采用单排龙骨,每侧各钉一层≥8mm厚的纤维水泥板时,隔墙的限制高度见下表。
注:① 轻钢龙骨必须符合GB/T 11981《建筑用轻钢龙骨》的各项要求;
② 表中所列高度是龙骨间距为610mm时的限制高度,当龙骨间距缩小时,隔墙高度可增加;
③ 表中所列为设计控制高度,超过限制高度时,应增设横撑龙骨。隔墙两面均为双层板时,控制高度可按上表数字放宽五分之一;
④ 隔墙高度≥2440mm时,应加横撑龙骨,采用抽芯铆钉或螺栓固定;
⑤ 隔墙高度≥5000mm时,为保证墙体稳定性,应考虑采用不同龙骨骨架结构(双排、对扣等)或钢结构框架(内隐藏)方式,增加墙体限制高度。
2.4 隔声及防火构造
1)隔声构造
隔墙的隔声效果与构造密切相关,其主要因素有所用板材的密度、层数及每层板的厚度、龙骨的宽度及设置方式、是否填充吸声材料及其质量等。
★ 隔声墙体做法
若要求墙体具有较高的隔声能力,可采用特殊构造,但应特别注意墙体与周围结构之间的结合必须紧密密封。常用做法有:
① 在隔墙内填充隔音棉可大大提高其隔声效果;
② 采用双层板构造,同时应相应使用高强自攻螺钉将板紧固;
③ 龙骨的两侧使用不同厚度(如8mm和10mm)或两种不同密度的板材,以提高其隔声效果;
④ 使用两排独立的龙骨取代单层龙骨,使两面板相互间的影响减少,从而达到提高隔声效果的目的。
★ 隔声性能指标
注:以上数据仅供参考!
2)防火构造
纤维水泥板属于A1级不然材料,具有卓越的耐火、阻燃性能。纤维水泥板隔墙防火构造一般有纤维水泥板、轻钢龙骨和防火填充物组成。其中,板材在高温下可保证构造的完整性,防火填充物则起到阻止温度穿透的作用,龙骨起支撑作用。
★ 耐火性能指标
注:以上数据仅供参考!
2.5 接缝处理
在纤维水泥板安装完毕做饰面之前,需要对板缝进行嵌缝处理。优良的嵌缝配套材料和专业规范的施工,以确保隔墙系统接缝处的稳定持久。
★ 直角边接缝(暗缝)处理施工步骤:
① 在干净的容器里,用清水调制接缝材料;
② 在接缝处先用调好的接缝材料将缝隙部位及钉眼(防锈处理)部位补平,待干燥;
③ 覆上穿孔接缝带,压紧压实,待其干燥;
④ 在板面及接缝处涂刷底面处理液,待其干燥;
⑤ 将接缝腻子涂抹在接缝带上,刮去接缝带板面多余腻子,注意平整,第一层接缝处理的宽度为100mm;
⑥ 待第一层接缝腻子干燥后涂抹第二层接缝腻子,第二层接缝处理的宽度为200mm(直角边板材接缝尺寸300mm);
⑦ 至干燥后涂第三层,注意表面的光滑。第三层接缝处理的宽度为300mm(直角边板材接缝尺寸600mm);
⑧ 待接缝处完全干燥后用砂纸磨光。
★ 注意事项:
① 接缝腻子宜选用JG/T 3049-1998《建筑室内用腻子》中的耐水型腻子;
② 接缝处理必须等到板材的含水率与空气湿度相对平衡时,再进行施工;
③ 在某些空气湿度较大的地方,可采取对板材进行界面处理的方法来减少板材的吸水率,提高板材的尺寸稳定性,如在封板后及时在板材外表面涂抹瓦克有机硅(WACKER BS SMK1311)或道康宁憎水剂(Dow Corning DC520)等材料,七日后再进行接缝施工;
④ 为了避免贴接缝带前的底层腻子干的太快,底层腻子每次所填缝的长度不应大于5m,待贴好接缝带并覆上第一层腻子后再进行下一条缝的施工;
⑤ 为最大限度地减少板材拼缝处开裂,所有接缝材料应选择具有一定抗拉力、强度及粘结力的材料,满批腻子应选择具有弹性及附着力的材料;
⑥ 墙体安装工艺对接缝效果的影响极大,安装时应采取系列措施规避后续接缝失败的风险;
⑦ 隔断墙与主体结构之间需留“门”字型缝隙,用弹性硅胶填平处理。
2.6 标准隔墙系统节点



2.7 灌浆墙系统节点
纤维水泥板轻质灌浆墙系统是以优质轻钢龙骨为框架,用纤维水泥板为覆面板,在龙骨框架与纤维水泥板之间所形成的隔墙空腔中灌入轻质混凝土浆料而形成的实心轻质墙体,是一种新型的墙体。广泛应用于对防火、耐撞击有较高要求的建筑物的外墙及非承重内隔墙中。饰面需在灌浆施工完成后28天后进行。



2.8 卫生间隔墙系统
卫生间是建筑最为潮湿的空间之一,必需进行防水、防渗漏、防臭和清洁处理。纤维水泥板良好的防水防潮、防腐防蛀的性能,能有效避免此类问题的出现。卫生间隔墙与标准隔墙或灌浆隔墙类似,不同之处即底部需做混凝土止水墙垫。其表面可进行各种处理,如涂防水漆、黏贴大理石、瓷砖、铝塑板、文化石等。

(二)吊顶系统应用
1 吊顶应用介绍
纤维水泥板亦可用于吊顶系统,基板多用于暗龙骨吊顶系统,它是指将纤维水泥板固定在吊顶轻钢龙骨上形成的吊顶体系,且龙骨框架不外露的的吊顶方式。
该应用主要系统组成为DL沿边龙骨、DU主龙骨、DC副龙骨、DC横撑龙骨及配件。暗龙骨吊顶系统按荷载不同又可分为上人吊顶和不上人吊顶两种。
1)上人吊顶:主要分60/60、60/50、50/50 (主/副龙骨宽度)。
系统要求:
● 吊顶荷载:每平米荷载不小于800N
● 吊杆直径:不小于8mm
● 主龙骨厚度:不小于1.2mm
2)不上人吊顶:主要分50/50、38/50(主/副龙骨宽度)。
系统要求:
● 吊顶荷载:每平米荷载500~800N
● 吊杆直径:6~8mm
● 主龙骨厚度:0.8~1.0mm
2 系统应用指南
2.1 板材的选择
吊顶板厚度一般可选择4mm、5mm、6mm,大尺寸板可选择8~12mm厚的板。亦可将板材冲孔后,用作吸音吊顶。
2.2 吊顶龙骨及配件规格:
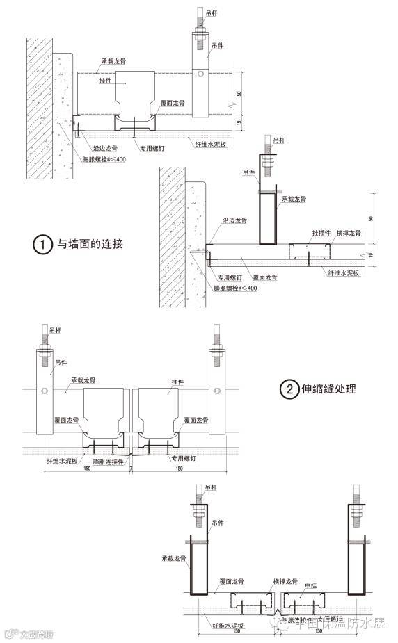
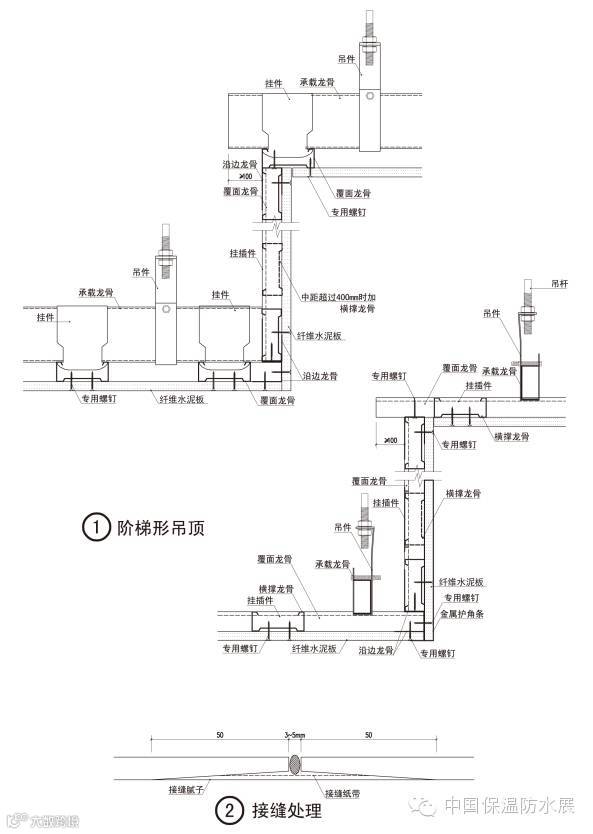
2.3 暗龙骨吊顶系统(上人/不上人吊顶)安装及节点


2.4 暗龙骨吊顶系统(贴面吊顶)安装及节点

2.5 暗龙骨吊顶系统(自撑式吊顶)安装及节点
(三)楼板系统应用
1 楼板应用介绍
纤维水泥板厚板(一般为20-30mm)与支撑骨架可构成楼板系统,旧楼加层改造楼面及LOFT(阁楼)建筑中的楼面等。具有防火防潮、自重轻、施工周期短等优点,安装好后,表面可贴瓷片、贴木地板、铺地毯、刷地面漆等。
2 系统应用指南
2.1 板材的选择
楼板厚度一般可选择20-30mm高密度厚板(具体根据承重要求)。
2.2 支撑骨架选择
主梁的规格应根据跨度由工程师计算设计,同时综合考虑原结构墙体承重强度,次梁统一采用方管(50*50*3mm),固定螺丝为M5.5*38mm六角钻尾螺
丝。
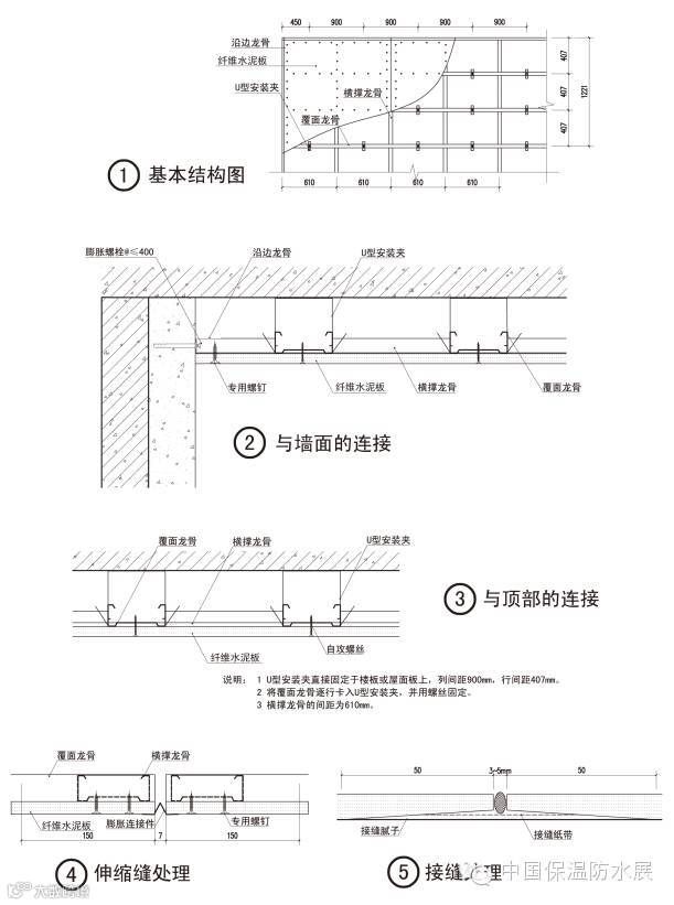
2.3 楼板系统安装及节点
注:
① 层高足够时,可采用主梁和次梁可采用顶部连接方式,较小时可采用平面连接方式;
② 吊挂的重物承重点需落在主梁上,基本结构不大于40kg/㎡;
③ 一般主梁间距为2440mm,与主梁平行的次梁间距为1220mm,与主梁相交的次梁间距为610mm。
(四)外墙系统应用
1 外墙应用介绍
纤维水泥板外墙系统由纤维水泥板、龙骨骨架、支座等组成,通过锚固件安装在建筑物结构上。该系统可作为建筑物的幕墙、幕墙衬墙,或装饰(饰面)、外保温(填入保温材料)等使用。
2 系统应用指南
2.1 板材的选择
一般可选择高密度纤维水泥板(及其后加工饰面板)。
2.2 连接方式的选择
该系统使用的连接方式根据板材的类型及安装需要进行选择,薄板(6mm左右)可直接采用AB胶直接粘贴在衬墙上;中厚度板(9-12mm)一般采用六角钻尾螺丝(M5.5x38mm)或不锈钢铆钉(M4.8x25mm,铆帽ø16mm)固定;厚板(12mm以上)一般采用ø6背栓构件来固定,背栓孔后板材余量厚度应为整板总厚度的30%以上,具体以专业计算依据为准。
2.3 幕墙保温衬墙、内衬墙及玻璃幕墙防火裙
2.4 护壁幕墙
2.5 背栓平板幕墙
(五) 饰面处理
1 涂料装饰
选择的涂料,性能应适用于增强纤维水泥制品,如丙烯酸或环氧系列涂料。当对版面的平滑度,光洁度要求较高,在终饰之前可先对板面进行全面抹灰,再用打磨机砂光,然后进行涂装饰面处理。
2 贴墙纸或墙布
这是一种较为简单实用的室内墙面或吊顶装饰方式。粘贴材料主要为白乳胶、聚乙烯等水溶性粘胶。
3 贴饰面板
一种简单便捷的装饰方式。粘贴材料可用白乳胶、立时得之类的万能胶、高级玻璃胶、结构件和云石胶等等,直接将薄木板、防火板、PVC薄板等贴至面板。
4 贴瓷砖
建议采用专用瓷砖胶,保证瓷砖的牢固性。
5 粘贴大理石
用云石胶或优质强力抗下坠型粘胶进行粘贴。一般建议粘贴大理石墙裙,厚度不易大于20mm。
(六)注意事项
为了保证纤维水泥板的质量和使用效果,特别需要在搬运、存放和使用加工过程中注意以下事项:
1 搬运
整张纤维水泥板幅面较大,所以请勿单人搬运,防止板材过度弯曲,造成折断,同时注意好边角的保护,避免碰撞造成板面破损。
2 存放
板材虽轻质高强,但在存放过程中如果过度堆积,可能会造成底部的板材因受压过度导致变形或破损。建议单垛堆放高度低于0.8m,总堆垛高度低于2.4m,以保证板材完好。
3 加工
★ 板材易加工:可钉、可锯、可刨、可钻;
★ 应在开阔的室外或通风条件较好的环境中切割板材;
★ 请使用带吸风装置的电动切割设备;
★ 切割作业人员应佩戴口罩;
★ 切割留下的粉尘应及时清理,避免飞扬造成环境污染;
★ 安装过程请按工程安全要求操作,避免危险。


