节点图,是两个以上装饰面的汇交点,是把在整图当中无法表示清楚的某一个部分单独拿出来表现其的具体构造的,一种表明建筑构造细部的图。大样图相对节点图更为细部化,也就是放节点图所无法表达的内容,以表达的更清楚。
节点图不仅要表达设计师对装饰形式细节的要求,并且还要把内部构造的做法、工艺、材料以及实施技术更加直接的表达与体现出来。室内装饰节点图的设计是否到位,将直接影响项目的装饰效果、施工品质和工程造价。
01
节点的重要性
02
节点的作用
节点说到底就是施工的参考,告诉你该怎么做,怎么做能更好看更美观。在给客户讲方案时,也可能会碰到需要讲解做法的时候,如果你对相关节点有充分的了解,就更能展现出自己的专业性。
03
节点的最佳理解方式
最好的理解方式就是CAD+SU模型,将二者对应结合起来,能让你更清晰地去感受节点结构及其做法。
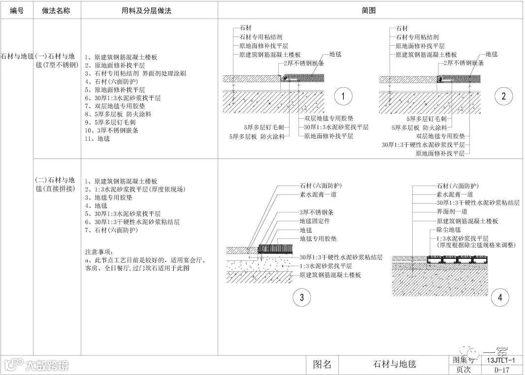
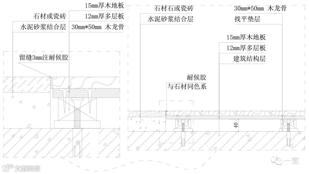
展示一:地面
展示二:墙面
展示三:顶面


