历时三年打磨;
创新L型错层设计,6.3m挑空;
主三房设计,真正满足高端人群需求;
新豪宅标准:大平层式的墅居体验;
超大边厅,270°IMAX级的感官体验;
金属玻璃幕的公建化立面,超具国际范未来感;
新加坡式度假社区;

建筑立面是住宅的外化表达。



超白玻璃幕墙结合银灰色铝板,增强了建筑的通透性;金属格栅的设计,则打破了立面对称的标准,将整座建筑进行了分割,光影交错间更好地表达了结构的韵律;最后辅以香槟色线条点缀,增加建筑的轻盈感,构筑高雅而艺术的视觉审美体验。
玻璃和铝板的材质经过处理后,会有一种金属的光泽感,在阳光照射下呈现出独有的贵气,且这样的材质组合更为持久耐用,也就是大家常说的“历久弥新”。

建筑北立面上设有核心筒及设备管井,设计师通过巧妙的格栅设计将其美化,格栅部分主要为厨房和电梯,次卧空间保证朗透,从而保证建筑内部的采光与观景。
创新立体L型空间
全系三房,充分体现新豪宅标准
与高颜值外立面同步的,还有足够优秀的空间结构布局。
该项目在户型产品的整体规划上强调了纯粹性,完全聚焦于高端人群,严格控制面积段,主要户型为170㎡、190㎡A、190㎡B三款,和一款称为“黑珍珠”的户型,交付面积252㎡。
除此之外,还有一款次顶层的190㎡和次次顶层的黑珍珠的组合型,只有8套。

如此大面积的居住空间,在户型的开发思路上展示了独到的创新:一层四户,打造错层咬合的挑空设计,营造宽阔的空间、宽景的视野,呈现别样的居住体验。
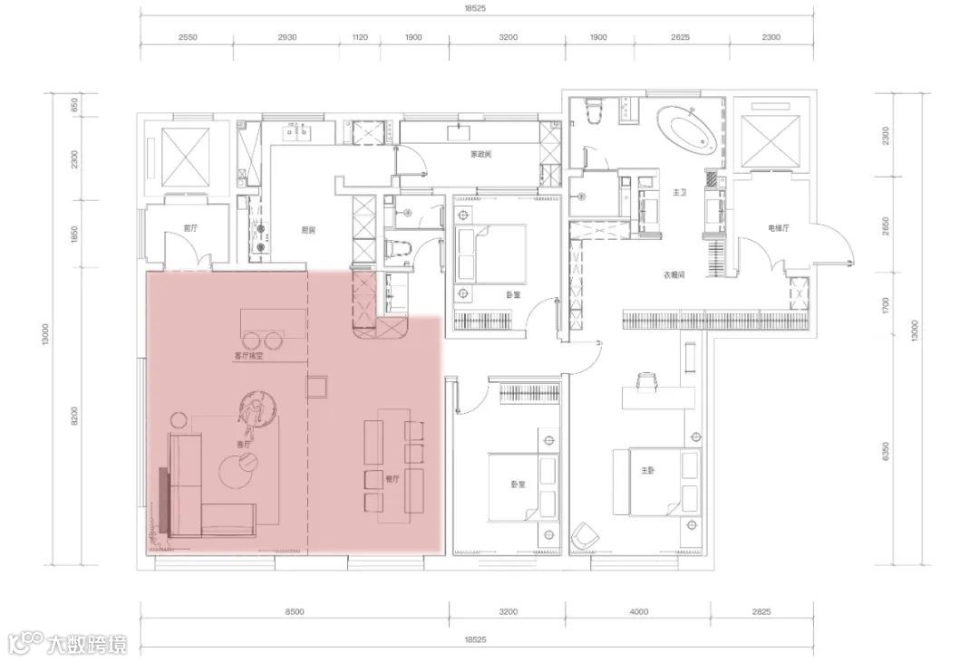
以约252㎡户型为例:
约6.3m挑高空间,大平层式的墅居体验
客厅空间约6.3m挑高,带来的视觉感相当震撼,整体空间更显透彻明亮。

再配以超大白玻以及外立面的金属格栅,未来入住在这里,一年365天都会带来不重样的室内光影呈现。
约65㎡的270°边厅,“无边界”的居住体验
该户型的边厅进深与面宽接近1:1的比例,整个空间充满了通透性、延展性,室内外空间无缝融合,完好地体现了追求纯粹的设计精神,身处其中,人与建筑、自然很好地融合在一起。

如此一来,这么一块地方就形成了流动空间,客餐厅一览无遗,这种做“减法”的设计,反而赋予了生活更多的想象,社交、娱乐、沟通、办公都将可以合在这个区域中,让家庭成员有更多的交互,成为一个完整的情感交流的场所。


同样,270°的环幕景观视野则充分满足了高端人群在事业成功后对视野的追求。
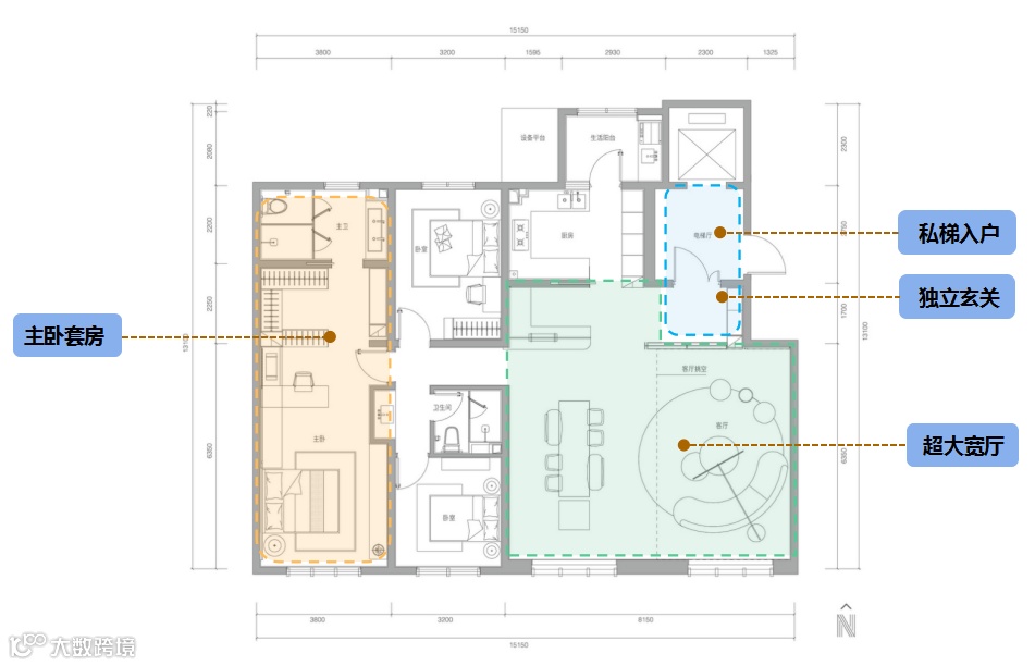
双入户动线,兼顾私密性与仪式感

主卧套房设计强调生活享受




独立电梯厅+入户玄关,充分展现了豪宅买家的品味与权势,功能性与仪式感兼具;LDK超大挑高宽厅,增加室内空间感的同时,也丰富了双厅的场景应用;以及主卧套房、约15m超大面宽、生活阳台等设计,赋予了未来人居生活更多的可能性。

艺术感的度假式园林
圈层交互融合的理想所在
公共空间品质是大区呈现的关键。
面积约5500㎡,半围合的中庭+百米楼间距,为业主留出了开阔的公共空间,也给大区景观留够了施展的舞台。



社区会所,高端圈层生活的重要载体
同时结合度假式园林景观,小区还规划了一个约2000㎡的星级会所,由矩阵纵横于鹏杰先生亲自操刀,会所内的旋转楼梯就是他尤为独特的设计代表。











