
01.
首创拾柒酒店

场地中原有的三组建筑物,分别为东南侧三间平顶砖混库房,西侧两排坡屋顶砖混合结构废弃建筑以及天桥底部两层的宿舍楼,大观建筑在改造设计中,既要使得独立分散并且保存状态各不相同的三组建筑物有序的共存,又能因地制宜的设计出不同的客房风格,展示不同的非遗文化。


原始旧厂区的历史悠久,百余年来多次修建,改造剩余了大量旧砖瓦堆砌在厂区角落,此次建筑改造很幸运的将其发现,并运用于设计之中。


在场地中植入一个钢结构加玻璃采光顶的公共空间,将原始的三组建筑串联起来形成三个内庭院,同时玻璃采光顶的运用又保证了客房的自然采光,三个室内庭院在功能上互相区分,构成了酒店的三种公共空间,接待空间、交流空间、交通空间。









02.
MISA工作室加住宅
项目位于一个中空的旧厂房内部。其设计目的是在当下工作与居住过度单一化的环境下,将这个城市的废弃空间改造成一个多元有趣的居住空间。

原有空间间隔与两幢厂房之间,是一个运货通道,顶面留着旧有的钢结构轻质顶棚。建筑周边从外部看缺乏良好的环境氛围,但是进入内部,你就会发现,因为有中庭的存在,整个空间感到非常明亮。




这个内部庭院占据了房子三分之一的面积。它提供了一种与自然的接触,并揭示出自然的各个方面,是工作生活的中心,也是一个引换正在现代城市日趋消逝的光、风、雨等自然物的一种装置。天光渗入院中,在墙上和院子里投下深深的阴影。






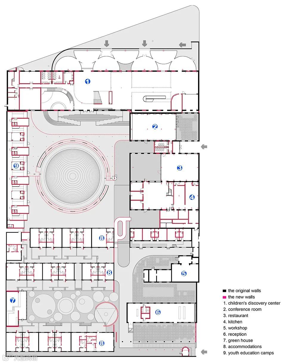
03.
少年儿童活动中心
本项目的前身是一家建于20世纪90年代的服装制造厂,业主买下整个空置的厂区后,拟保留原有建筑物,并将其改造更新成以儿童科技馆为主,融合酒店、亲子教育、游学营地、商业等综合业态的少年儿童活动中心。






在大体量厂房与北方苍茫山脉间营造近人的尺度,通过置入步道、廊道、小广场和过庭等一系列空间构筑物,串联北院活动空间到南院住宿区的连续的立体景观体验,是密云服装厂改造项目最大的空间体验特色。







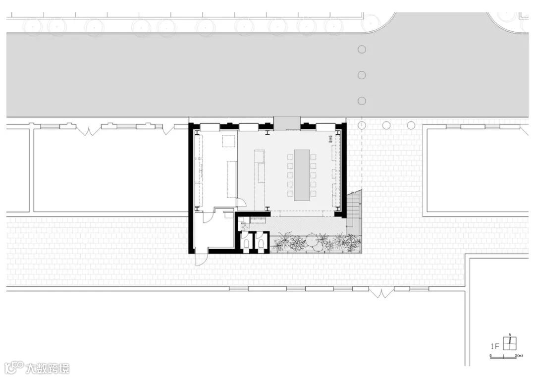
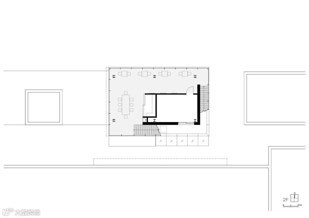
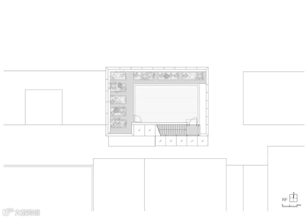
04.
“回声”宅
该项目场地位于北京五环附近,位于市中心和郊区之间的特殊边界地区。它是一个工业街区,里面的红砖仓库是用于六十年代,客户买了一个老旧的红砖仓库作为主要的工作室和美食吧,仅出售有机植物制成的饮料,找来设计团队进行设计。

建筑需要有两层,包括食品实验室,就餐空间,销售空间,工作区,供团队艺术家使用的画廊,办公区和温室。




室内空间没有设计任何门,试图将三层楼的空间通过气味和声音连接起来。没有严格的空间使用规则让空间变得灵活且界线模糊。客户甚至可以坐在交通流线的中间。



同时,可以从建筑物内的任何方向感受到自然光,从而形成3维螺旋状的空间,像植物一样向上生长。








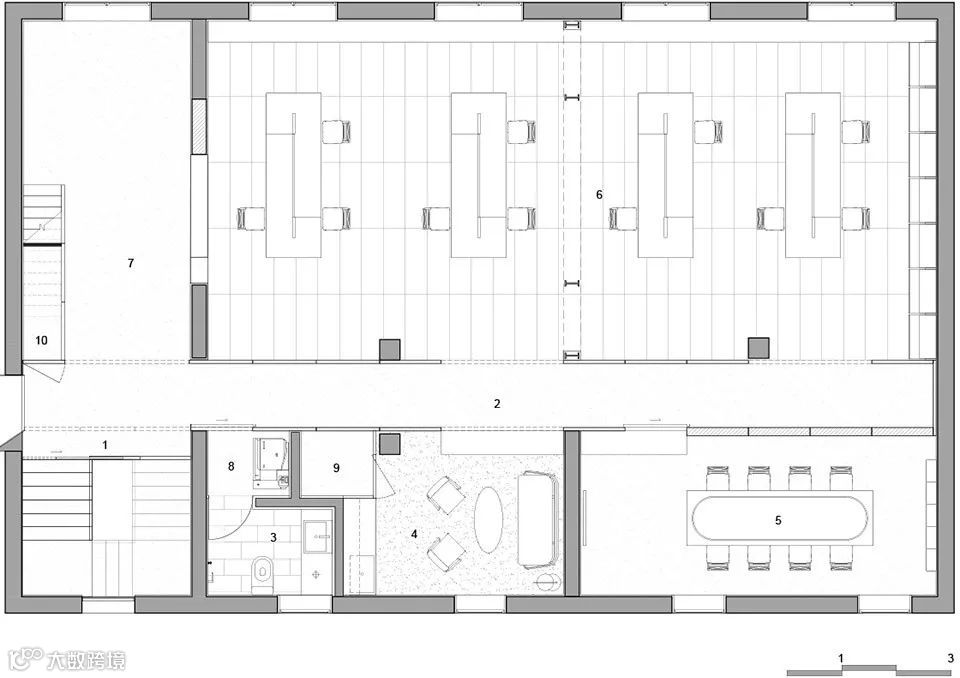
05.
举目垂屏
本项目是一处老厂房改造的办公空间,位于上世纪30年代修建的重庆印制一厂。轻工业并没有给房子留下太多的痕迹,就像是一间新建的毛坯房。


室内空间长25米,宽5米,通高6米。这对于一个不足十人的小团队而言并不算小,但作为一个策划公司,他们有其独特的空间分配方式:从空间类型上,并不像是个办公室,而更贴近于报告厅或是小剧场。








06.
良友红坊文化艺术社区景观改造
武汉良友红坊文化艺术社区前身是1960年代的老厂房,杂草丛生,建筑破旧,排水不畅等等问题困扰着这个原来的城市“棕地”,也使得这个节点如同一块城市伤疤,急需进行一场在地“手术”。


2018年,上海红坊集团接手这个厂区的运营,找到设计团队对园区的景观设计和核心建筑ADC艺术设计中心进行了改造设计。



设计既不能采用置换式的大手术,也不能采用磨皮式的美容术,采用的是保留亲切感的距离感:让来到这个文化园区的人感觉到:仿佛回到自己的小时候,细看之下却是置于当代艺术的环境之中;这种对比产生的距离,以及因此延续的厂区文脉,能给目前轰轰烈烈的城市更新提供一种新的方式。



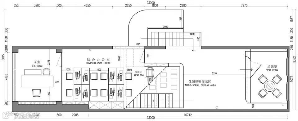
07.
幸福公园联合办公室
幸福公园坐落于幸福路上一幢位置显著但却极不起眼的老厂房三楼,对面是一个绿地公园。这幢建于上世纪50年代的3层斜顶砖墙式老厂房,平面面积约为200平米,三楼最高处的层高有5.5米。幸福公园是Hidden Group第一个实验性的联合办公项目,不同领域的设计师聚集于此,构成微小却丰富的行业生态。










08.
江南造币博物馆及金基集团总部办公
江南造币博物馆及金基集团总部位于南京来凤街菱角市66号,由一栋老厂房局部改造而成,项目所在的“国创园”园区,前身为南京第二机床厂厂区,厂房内部与外部给人的印象反差极大。



因此设计团队从厂房结构中提取出结构“单元体”进行尺度转换分析,3道砖拱砌体把项目所在区域划分成南北两区。博物馆内部设置的“拱”形要素将空间划分为三部分,拱券设计手法充分呈现出“砖拱吊车梁”工业结构的建构之美。








