1
反支撑

反支撑是指为了防止吊杆过长导致吊顶不稳摆动的现象,通过角钢把吊顶龙骨“按”在原地,形成垂直对抗气压的力的建筑构件形式。
2
转换层
转换层就是当吊杆过长而反支撑无法满足规范要求,或吊顶空间过大,又或者吊杆与机电设备碰撞造成吊杆间距过大时,需要用到的吊顶内部钢架,目的同样是让吊顶避免气流引起的动不稳定。

1
什么情况下需要用到反支撑/转换层?
(1)当吊顶吊筋长度大于1.5m且小于3.0m时,应按规范要求设置反向支撑;

(2)当吊顶内部空间大于3.0m时,(或反支撑垂直长度>1500mm时)应该设置转换层;

反支撑和转换层的标准做法有哪些?
反支撑做法有:主龙骨拉结法、吊杆通长拉结法、倒三角法。转换层做法有:钢架转换层、吊杆+钢架转换层。
1
反支撑做法
(1)主龙骨拉结法


具体做法:在CS60主龙骨横撑底边每隔主龙骨间距打孔,M8全牙吊杆穿过,位置确定后上下螺母固定。
CS60主龙骨斜撑每隔两倍主龙骨间距相向设置;当吊杆长度超过1.5m且小于2m时,适当采用CS50主龙骨。
(2)吊杆通长拉结法


(3)倒三角法


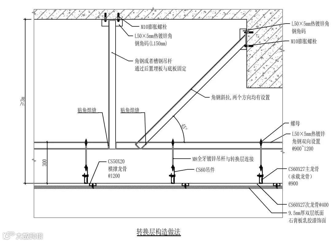
2
转换层做法
(1)钢架转换层

① 转换层的吊杆采用角钢、槽钢等刚性构件,杆端与楼板底面可靠连接。

② 为保障转换层的稳定,应有斜向撑与混凝土梁侧、墙侧可靠连接,纵横向均应设置。
(2)吊杆+钢架转换层



1
什么是检修马道?

检修马道是指便于维修检查而修筑的人行道,一般情况下只有单人能通过,通常用角铁焊制,也有用其他材料拼接成。
一般情况下,若吊顶空间较高(如:≥3000mm),或者吊顶上有大型灯具等设备需要检修时,需预留检修马道,方便后期检修。

2
吊顶层内马道设置应满足以下技术要求
(1)普通商业区域上人吊顶,应采用上人龙骨(可承担80kg集中荷载),可在承载龙骨上铺设临时检修马道搁板(注:搁板燃烧性能等级必须为A级)。

(2)规格要求
① 当需要设置永久性马道时,马道应直接吊挂在建筑承重结构上,永久性马道需要结构专业计算确定。
② 宽度不宜小于500mm,上空高度应满足维修人员通过的要求,维修人员最小检修作业高度为1900mm;两边应设防护栏杆,栏杆高度不应小于900mm,栏杆上不得悬挂任何设施或器具。
③ 马道上应设置照明,并设置人员进出的检修口;马道端头应设置防护栏杆。

(3)轻钢龙骨马道连接方式采用钢丝连接固定。

小结
关于反支撑、转换层以及检修马道的内容,用一张导图来梳理一下重点内容:



