


像这样一个流动的、昼夜不停的有机体需要一个适应性强的建筑结构,能够 "呼吸 "并支持最多样化的星座中所有形式的行动。


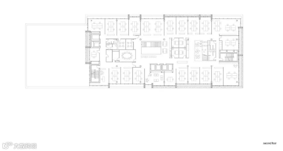
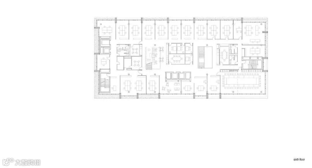
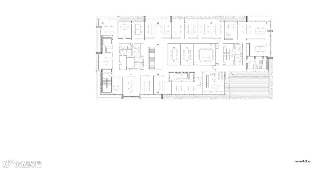
新楼的建筑以透明和以沟通为导向的空间结构来回应这种工作方式,积极促进同事之间的交流。工作空间的可扩展性和用户的福祉是设计的关键考虑因素,因为它结合了不同比例的空间,因此可以容纳大、中、小型的工作组。在单人和团体办公室之间是大型会议室和公共区域,用于所有楼层的非正式互动。
带有礼堂的门厅、广场和一个公共餐厅使底层充满活力,并使建筑向外开放。一个宽敞的楼梯自由地穿过整个建筑,在视觉和空间上连接所有这些区域,并加强了所有部门之间的沟通。

一个三维的绿色外墙将这些内部结构传达给外部。由大型木制框架界定的阳台和木廊提供了在内部和外部空间之间过渡的工作环境。这些框架像一个巨大的拼图一样组合在一起,形成一个明确的体量,类似于一个为共同目标工作的个人专家组织。

植被屏幕还在立面的缓冲区产生了一个小气候。在夏季,茂密的树叶提供了阴凉,减少了建筑的冷却需求;在秋季,这个自然屏幕变薄,在黑暗的季节让日光照射进来。此外,外墙的效果还延伸到建筑之外,通过吸收二氧化碳来改善新城区的空气质量。

屋顶上安装了光伏板,该项目与GeniLac生态加热和冷却网络相连。该基础设施使用来自日内瓦湖的水和100%的可再生电力。因此,该建筑完全由可再生能源供电。

建筑材料的选择也对可持续性做出了重要贡献。招标时优先考虑 "从摇篮到摇篮 "的生产方式,提供可回收或容易回收的材料。使用当地木材,如银杉,有助于通过储存二氧化碳来降低温室效应。

同样地,大楼的容积也被规划到未来。在底层的餐厅区上方有一个七层的扩建方案,这保证了该建筑在规模上保持适应性,并随着用户需求的变化而增长。

作为一个基本的规划目标,从灵活的空间范围和绿色外墙到谨慎的材料选择和细节设计。最重要的是,其结果是一个透明和宽敞的建筑,满足了致力于该组织日常工作的人对开放工作环境的要求。


平面图




剖面图




轴测分析图


可持续理念



