搜索
首页
大数快讯
大数活动
服务超市
文章专题
出海平台
流量密码
出海蓝图
产业赛道
物流仓储
跨境支付
选品策略
实操手册
报告
跨企查
百科
导航
知识体系
工具箱
更多
找货源
跨境招聘
DeepSeek
首页
>
图书馆设计
>
图书馆设计
聿國設計研究院
2022-11-30
2
一个新的图书馆和社区设施,Te Ara Ātea不仅在位置上,而且对于它所
服务
的多样化和不断增长的社区来说,都是一个灯塔。该项目有一个强烈的社区焦点,并挑战 "图书馆 "的典型成见,这与它的天赋名称相一致,意思是 "通往世界和其他地方的畅通无阻的小路"。
叙事本身的主题以一种有趣和有意义的方式被整合,创造了一个丰富和多层次的环境和体验,激起了一种愉悦和发现的感觉。
增加博物馆展示和数字艺术作品的元素,进一步将建筑嵌入其独特的文化和地理环境。在内部空间,设计叙事影响了建筑形式和材料色调。
在一层,编织的河流以弯曲的形式呈现,参考了被水流侵蚀的河流石头。木材覆盖的吊舱容纳了车间空间和会议室,它们采用大胆的充满活力的色调,在视觉上代表了地下河流和浅水区丰富的动植物。
从主入口到主要的接待和流通空间,提供了一条连续的弧形通道,这是一面特色投影墙,当地的视频艺术作品和风景在这里被全天投影。
采用了丰富和温暖的色调。灰色和绿色的特色地毯创造了整个空间的趣味性和区域性,而折叠的木皮天花板沿着上面的屋顶线连续流过,这里有主要的图书馆藏品、合作区,一个安静的反思研究室,通过参考宝盒的概念与文化叙事相联系。
其结果不仅是一个图书馆,而且是一个灵活的、多用途的社区和表演空间,作为一个混合博物馆和活的历史之旅。有了丰富的文化叙事和空白的画布,该团队创造了一个独特的公民项目,其结果也是独一无二的。
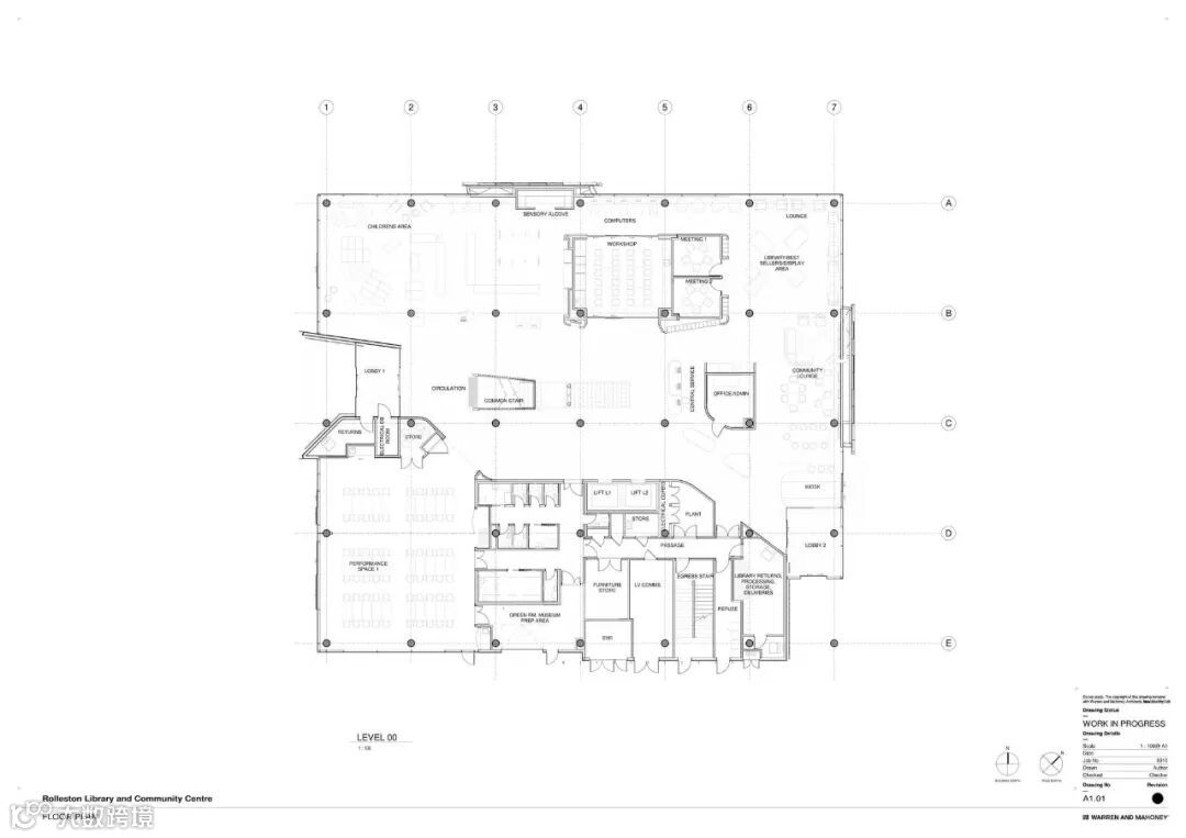
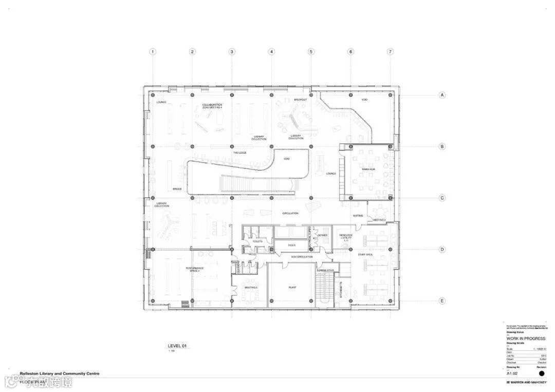
区位图
平面图
立面图
【声明】内容源于网络
0
0
聿國設計研究院
公司以环境艺术、规划设计为引领,以建筑装饰、展览展陈、项目管理、双碳新能源、城市更新、美丽乡村建设、智能建造、新型建筑工业化等板块为支撑,打造全国一流的全过程咨询设计研究院。
内容
323
粉丝
0
关注
在线咨询
聿國設計研究院
公司以环境艺术、规划设计为引领,以建筑装饰、展览展陈、项目管理、双碳新能源、城市更新、美丽乡村建设、智能建造、新型建筑工业化等板块为支撑,打造全国一流的全过程咨询设计研究院。
总阅读
341
粉丝
0
内容
323