

关于我们
常州豪郡装饰设计工程有限公司是一家专业从事家居装饰、写字楼、公寓、挑高空间、商业空间别墅设计与施工 的专业性工程公司,借助先进的施工技术,将人力资源有机的结合在一起,真正实现了资源合理调度,确保服务质量、时效性和低成本。

星河国际的业主朋友们,您还在为找装修公司的事情烦恼吗?不用担心,我们这里有海量的户型图和方案,总有一款是属于您的呦~同时我们提供免费的上门量房服务。来公司咨询,我们有专业的设计师为您量身打造专属您的梦想之家~


提前预约,免费量房!
把控主材,精准预算!
空间规划,布局合理!
配置软装,风格协调!
节省时间,创造金钱!
海量户型方案,尽在豪郡装饰!

户型一:原始框架图

平面布置图

效果图
(现代混搭风:作为家装设计风格,它给人带来的轻松、随意、个性的感觉就受到业主的喜爱。家居饰品也在设计中加入了大量感性化和个性化元素。)
户型二:原始框架图
平面布置图
效果图

(色调清新淡雅,墙面运用碎花田园墙纸,主人十分喜爱,置身之中,便将所有烦恼抛之脑后,轻松舒适)
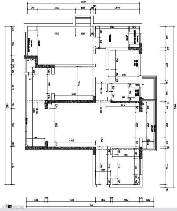
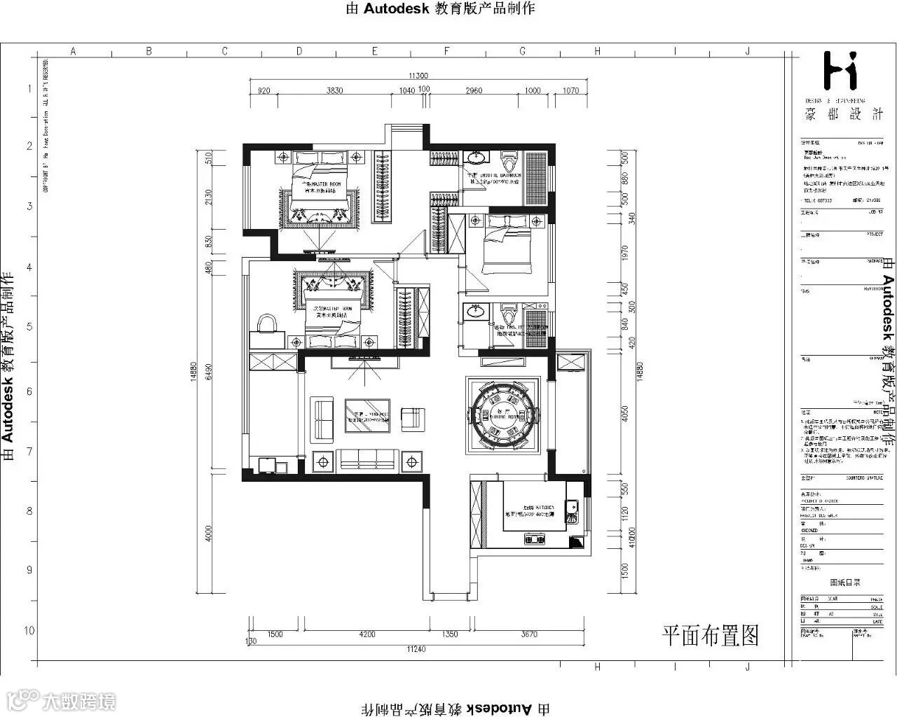
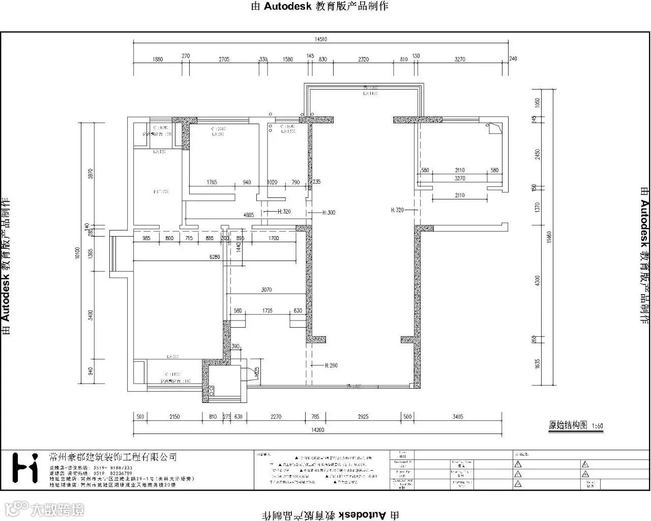
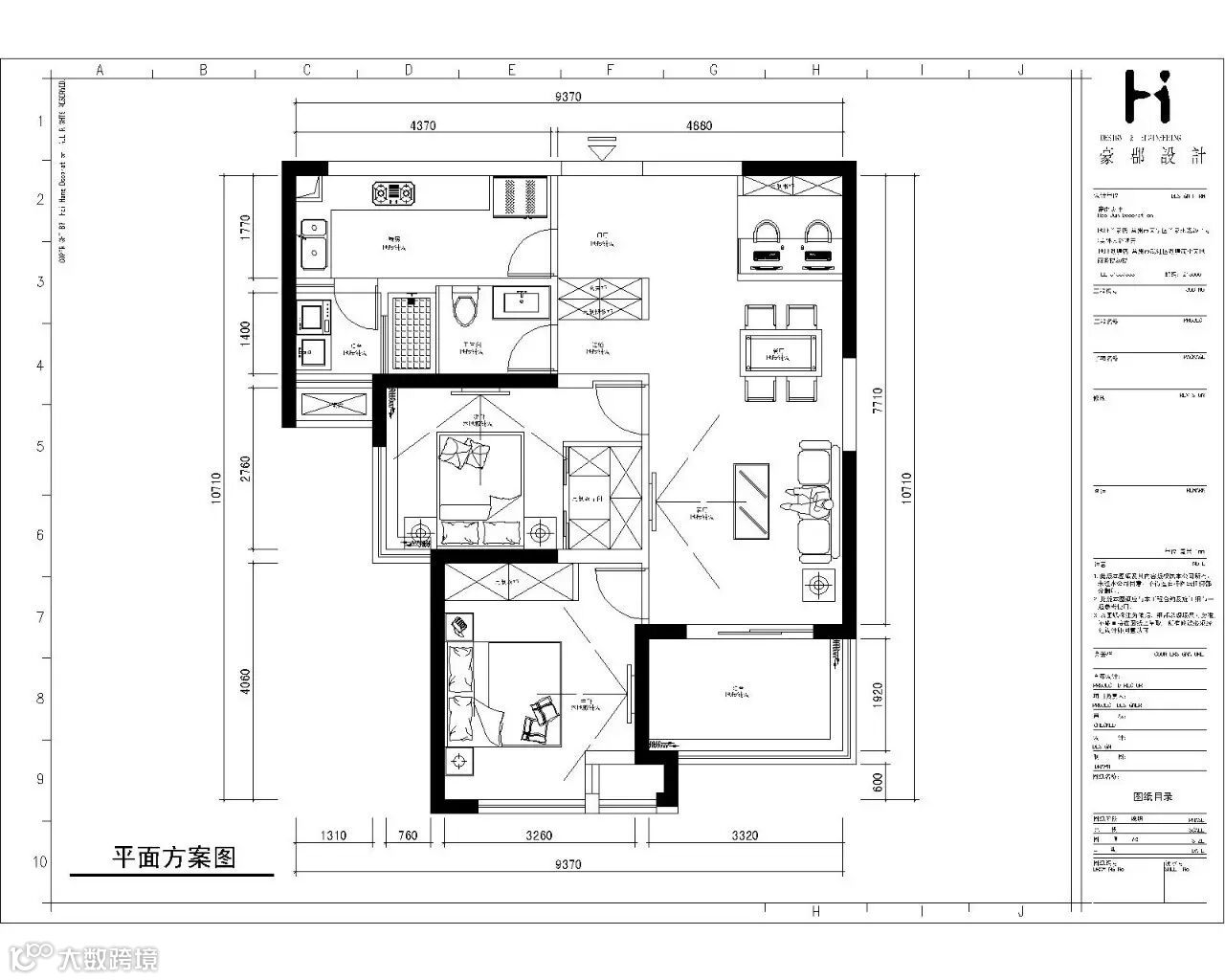
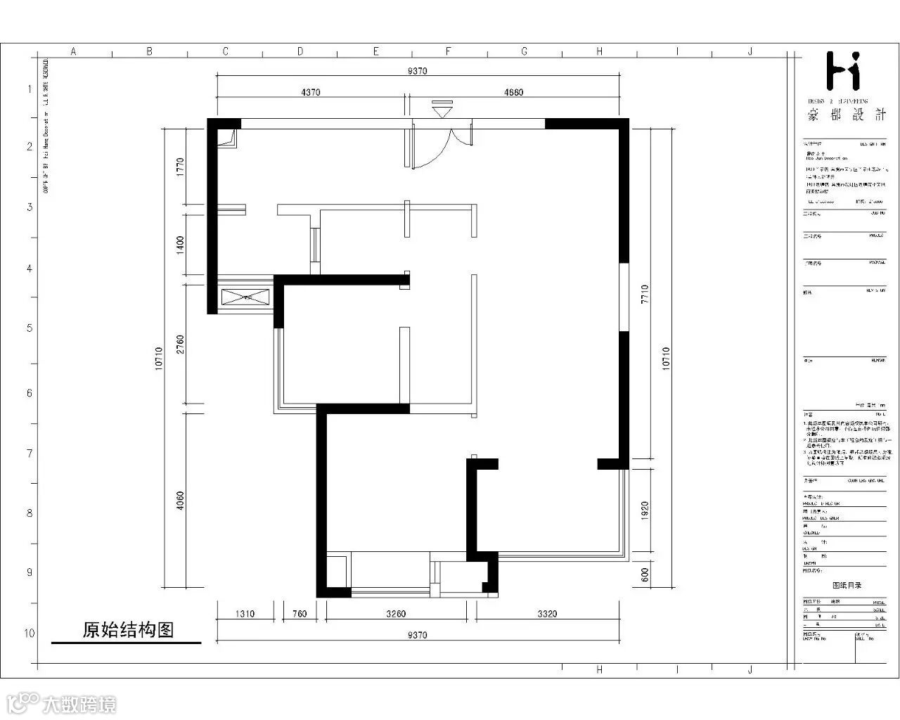
户型三:原始框架图 
平面布置图

户型改动
1. 厨房做成u字形,将厨房门移至餐厅的位置,之前的移门做成鞋柜
2.拆除次卧部分墙体,做双面柜,增大储物空间
3.次卧阳台和客厅阳台用墙体分隔区间
4.主卧打通设备间,腾出位置放浴缸
户型四:原始框架图

平面布置图

户型改动
1.厨房做成u字形,将厨房门移至餐厅的位置,之前的移门做成鞋柜
2.拆除次卧部分墙体,增加储物空间
3.主卧打通设备间,增设梳妆台,内卫仅保留马桶和洗手池

更多精美户型
为您定制
来豪郡装饰
找最专业的设计师

BOUTBEAUTY
关于活动
即日起豪郡装饰“惠装风暴”感恩回馈活动,优惠强势来袭!多重豪礼大放送!给广大业主朋友们送福利啦~活动时间:6月18日~8月28日。优惠力度空前。同时,来店内咨询就有精美礼品相送,更有机会赢取豪华大礼!小伙伴们还不抓紧时间约起来~
九年装修历程,九重豪礼回馈




幸运抽奖礼
签订合同即可参加幸运大抽奖活动
(100%中奖率,以实物为准)
电饭煲
豆浆机
挂烫机
扫地机器人
32寸飞利浦液晶电视

设计团队
(五大总监领衔,设计方案全方位剖析,倾情演绎九年磨砺积淀,服务龙城千家业主)

施工团队
(15位资深金牌项目经理,现场任意挑选,从源头把控施工质量)
豪郡装饰
给业主细致的服务,
一流的工艺,专业的品质。
一心一意为业主打造高质量高性价比的个性化新房,
让每一栋房子都有独特的设计,
豪郡装饰您值得拥有!
我们的目标是
做家装界最好的设计师,
设计界最好的施工队,
装修界最好的微信小编!
豪郡装饰,您值得拥有!

【豪郡装饰】丰富的活动、专业的行家、经验独到的装修人,豪郡装饰助您2016装修无烦恼,更多活动详情,请来两大门店(兰陵店/湖塘店)咨询,或关注【豪郡装饰】官方微信!【豪郡装饰】会为您持续推送活动相关详情!
小伙伴们赶紧约起来!
拨打热线:
TEL:0519-83605988
Q Q: 2923507895
活动最终解释权归豪郡装饰所有。
豪郡装饰

创意美图|设计案例|装修知识|找设计师

赠人玫瑰,手有余香;
欢迎分享,你的小伙伴也可能会需要哦!


